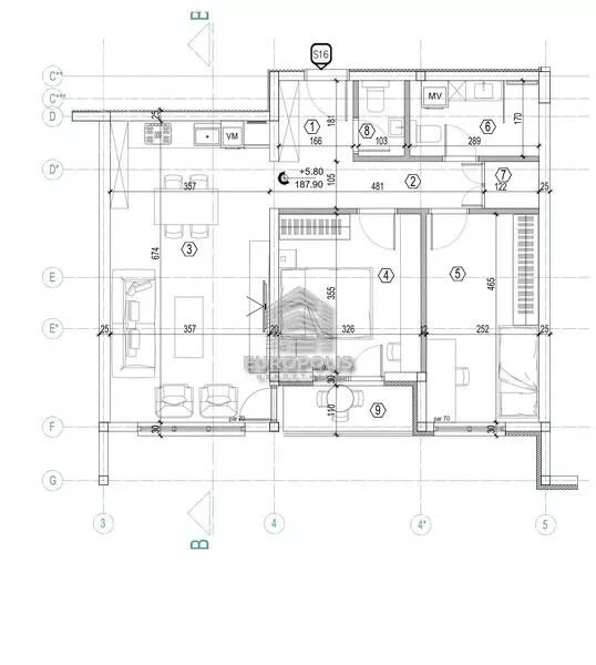
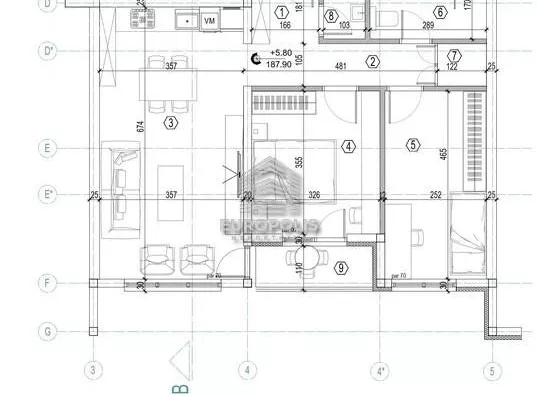
Trosoban stan na prodaju, Miljakovac, 141.394€, 64m²


















141.394 €
2.209 € / m2
- Etažno grejanje
- Novo
- Prostorije: terasa
- Opremljenost: Prazno - internet, interfon, klima
- Oglas oglašava agencija pod reg. brojem 1288
- 1 parking mesto
- 1 lift
- Godina izgradnje: 2025.
- Kablovska
- 1 telefonska linija
Opis oglasa
- Izuzetna novogradnja. - Pravosnažna građevinska dozvola. - Renomirani i pouzdan investitor s kojim gradimo dugoročnu i uspešnu saradnju. - Kupci prvog stana imaju pravo na povraćaj PDV-a. - Cena po kvadratu je 2.200 EUR + PDV. - Odlična pozicioniranost zgrade. - Savršen pogled. - Mir, tišina, izolovanost od buke. - Priroda i zelenilo u okruženju. - Koncept gradnje je baziran na manjem broju stanova (ukupno 22 stambene jedinice). - Svaki stan ima pripadajuće parking mesto (4.000 EUR doplata). - Planirani rok za završetak izgradnje objekta je 31. maj 2026. godine. - Investitor je pravno lice u sistemu PDV-a. - Uspešno učestvovali u realizaciji izgradnje većeg broja objekata. - Pouzdan investitor koji stoji iza svake svoje gradnje, sa dokazanim iskustvom i kvalitetom gradnje. - Podno grejanje, regulacija temperature u svakom stanu zasebno (Valiant). - Sedmokomorna stolarija RAL antracit (zadovoljava kriterijume za dobijanje zelenog pasoša). - Roletne i komarnici istog kvaliteta (SCHUCO). - Hrastov parket prve klase ili po želji kupca pločice od 60 do 120 cm. - Fasada demit/stirodur Od 10 cm debljine, akrilna, izgleda prema 3D rešenju eksterijera. - Termo blok 25 cm debljine za spoljne zidove, a za unutrašnje 12 cm. - Ulazna vrata zgrade ALU, antracit. - Ulazna blind vrata na stanovima (Talaris, Primavera). - Vrata u stanovima od farbanog medijapana (Primavera, Aganda). - Interfon, optika, video nadzor. - U svakom stanu postavljen po 1 klima uređaj (Midea). - Rasveta spoljna i unutrašnja prema idejnom rešenju I 3D dizajnu, sa senzorima pokreta. - Keramičke pločice od 60 do 120 cm, sve prema dizajnu enterijera (Elios Ceramica Italy). - U sanitarnom čvoru postavljen "walk in" tuš, usponski, lavabo, ugradni vodokotlić/wc šolja (Geberit, Rosan, Jaquar). - Bojler slim (Ariston, Gorenje OTG). - Autobusko stajalište u neposrednoj blizini zgrade (linija 48). - Direktna povezanost sa Trgom Slavija i centrom grada. - Dobra povezanost sa svim delovima grada. - Blizina infrastrukturnih sadržaja neophodnih za život. - Za više informacija pozvati. - Topla preporuka! Agencijska nadoknada iznosi 2%. .
*Sačuvaj oglas uz belešku i primaj obaveštenja o njihovom pojeftinjenju ili pojavljivanju sličnih
Prikaz stana na mapi
Parkovi u blizini
- Miljakovačka šuma13 min
- Košutnjak39 min

Obeležja kulture u blizini
- Hajdučka česma11 min
- Mesto pogibije kneza Mihaila Obrenovića11 min
- Konak kneza Miloša12 min

Škole/Fakulteti/Vrtići u blizini
- Osnovna škola (Osnovna škola France Prešern)3 min
- Srednja škola (Mašinska škola Radoje Dakić)4 min
- Vrtić (Dečiji vrtić Čarobna šuma)4 min
- Fakultet (Univerzitet u Beogradu Fakultet sporta i fizičkog vaspitanja)15 min

- Bolnica (Specijalna bolnica za internu medicinu Nova Vita)11 min
- Klinika (Poliklinika Paster Vidikovac)11 min
- Teretana (Teretana Evolution)4 min
- Prodavnica (TSV Diskont)2 min
- Restoran (Restoran Dolcino Sweets & Coffee)6 min
- Kafana (Kafana)7 min
- Taksi stajalište (Taxi stanica)3 min
- Autobuska stanica (Stanka Paunovića)3 min
- Trolejbuska stanica (Kragujevačkih đaka)37 min
- Banka (Poštanska štedionica)3 min
- Pošta (Pošta Beograd 61)4 min
Kontakt oglašivača
Stambeni krediti

- Period otplate od
96 -360 meseca
- NKS 4.75%
EKS 5.74%
Fiksna kamatna stopa
- Bez troškova obrade kredita
stranici kreditnih kalkulatora
Keš krediti
Period otplate
13 meseci