Dvoiposoban stan na prodaju, Medijana, 159.300€, 60m²








159.300 €
2.655 € / m2
- Stan u zgradi
- Oglas oglašava agencija pod reg. brojem 2126
Opis oglasa
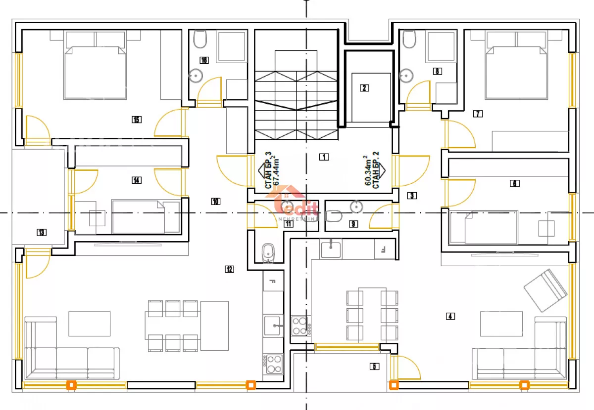
Na prodaju stan površine 60,34 m², na jednoj od najtraženijih lokacija – u blizini parka Svetog Save, osnovne škole i bulevara, a u mirnoj ulici.
Stan se nalazi na 1. spratu i po strukturi je dvoiposoban. Sastoji se od dnevnog boravka sa kuhinjom i trpezarijom, dve spavaće sobe, kupatila, toaleta i terase.
Zahvaljujući funkcionalnom rasporedu, stan je idealan kako za porodičan život, tako i za parove, rad od kuće ili kao investicija za izdavanje (dugoročno ili dnevno).
Zgrada manjeg tipa (Po+P+4) sa ukupno 9 stanova, građena kvalitetnim i savremenim materijalima. Grejanje i hlađenje putem klima uređaja. U završnoj fazi izgradnje, useljenje planirano za jun 2026. godine. Moguća kupovina putem stambenog kredita.
Moguć povrat PDV-a za kupce koji ispunjavaju uslove.
Bez provizije za kupce!
Mogućnost kupovine otvorenog parking mesta – 10.000 €.
Kontakt:
063... (prikaži broj telefona)
EDIT 018 DOO, Registar posrednika br. 2126
*Sačuvaj oglas uz belešku i primaj obaveštenja o njihovom pojeftinjenju ili pojavljivanju sličnih
Prikaz stana na mapi
Parkovi u blizini
- Park Čair8 min
- Park heroja NOB-a11 min
- Park složnih komšija12 min

Obeležja kulture u blizini
- Zgrada Oficirskog doma4 min
- Spomenik Stevanu Sremcu i Kalči11 min
- Spomenik oslobodiocima Niša11 min

Škole/Fakulteti/Vrtići u blizini
- Osnovna škola (Osnovna škola Vožd Karađorđe)4 min
- Srednja škola (Gimnazija Stevan Sremac)5 min
- Vrtić (Dečiji vrtic Dečija zemlja)8 min
- Fakultet (Fakultet za pravne i poslovne studije Dr Lazar Vrkatić)6 min

- Bolnica (Urgentni centar Niš)11 min
- Klinika (Poliklinika Life Impuls)manje od 1 min
- Teretana (Gym Town 2)8 min
- Prodavnica (Metla diskont)2 min
- Restoran (Etno kafana Porta)4 min
- Kafana (Ministarstvo beer bar)5 min
- Taksi stajalište (Cool taksi)14 min
- Autobuska stanica (Crveni pevac)4 min
- Banka (AIK Banka)5 min
- Pošta (Pošta Niš 7)6 min
Kontakt oglašivača
Krediti OTP banke
Saznaj više
Prikazana rata odnosi se na maksimalni period otplate. Kalkulator je informativnog karaktera.
* Nakon isteka 5 godina, prelazi se na varijabilnu kamatnu stopu


