Dvosoban stan na prodaju, Medaković, 154.462€, 50m²








154.462 €
3.089 € / m2
- Centralno grejanje
- Novo
- Prostorije: terasa
- Oglas oglašava agencija pod reg. brojem 1797
- Zgrada poseduje: lođa
Opis oglasa
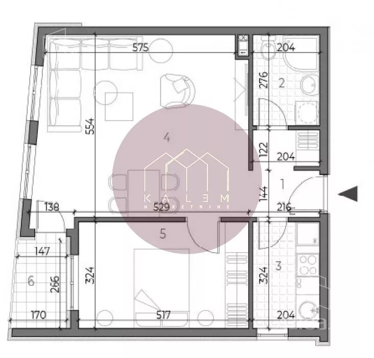
Beograd, Voždovac, Medaković 1 - Medakovićeva 2.0, 50m2, 3/3, CG Predstavljamo vam dvosoban stan u novogradnji u mirnom delu ulice Medakovićeva. Zgrada se sastoji od 4 etaže i poseduje 17 garažnih mesta. Stan se sastoji od: spavaće sobe (11.35m2), dnevnog boravka (24.33m2), kuhinje (4.33m2), trpezarije, hodnika (3.53m2), kupatila (3.67m2) i lođe (2.94m2). Moguća kupovina putem kredita. Useljivo u drugoj polovini 2027. godine. Agent prodaje: Mihailo Đurašković Kontakt telefon: +38... (prikaži broj telefona) Broj licence: 5132 Agencijska provizija 2%. ID oglasa: 42857.
*Sačuvaj oglas uz belešku i primaj obaveštenja o njihovom pojeftinjenju ili pojavljivanju sličnih
Prikaz stana na mapi
Parkovi u blizini
- Park Šumice22 min
- Park Jove Ilića23 min
- Bajronov park26 min

Obeležja kulture u blizini
- Spomenik Franše Depereu10 min
- Kuća Flašar11 min
- Spomenik oslobodilaca Beograda 1806. godine11 min

Škole/Fakulteti/Vrtići u blizini
- Osnovna škola (Osnovna škola Branislav Nušić)7 min
- Srednja škola (Škola za negu lepote)7 min
- Vrtić (Dečiji vrtić Breze)3 min
- Fakultet (Univerzitet Singidunum)7 min

- Bolnica (Specijalna bolnica za cerebralnu paralizu i razvojnu neurologiju)5 min
- Klinika (Poliklinika Equilibrium)10 min
- Teretana (Teretana M Gym)4 min
- Prodavnica (Market Bravo shop)3 min
- Restoran (Restoran i pivnica Kod Papka)3 min
- Kafana (Konoba Barrel)4 min
- Taksi stajalište (Taxi stanica)7 min
- Autobuska stanica (Katarine Ivanović)2 min
- Tramvajska stanica (Vitanovačka)20 min
- Trolejbuska stanica (Medaković 2)10 min
- Banka (Addiko Bank)4 min
- Pošta (Pošta Beograd 145)4 min
Kontakt oglašivača
Krediti OTP banke
Saznaj više
Prikazana rata odnosi se na maksimalni period otplate. Kalkulator je informativnog karaktera.
* Nakon isteka 5 godina, prelazi se na varijabilnu kamatnu stopu


