Trosoban stan na prodaju, Meandri, 191.800€, 68m²










191.800 €
2.821 € / m2
- Stan u zgradi
- Etažno grejanje
- U izgradnji
- Prostorije: kupatilo, toalet, terasa
- Orijentacija ka: jugozapad
- Pogled na: ulicu
- U procesu uknjižavanja
- Oglas oglašava agencija pod reg. brojem 1299
- 1 lift
- Godina izgradnje: 2026.
Opis oglasa
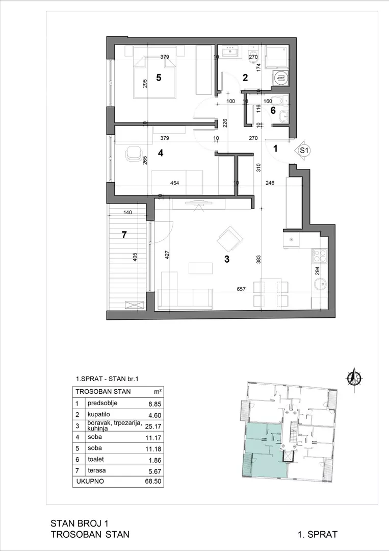
Trosoban stan 68,5 m² – novogradnja, terasa, 1. sprat, jugozapad – Zemun
U ponudi je moderan trosoban stan površine 68,5 m², smešten na prvom spratu kvalitetne novogradnje sa ukupno pet spratova.
Stan ima odličan raspored – prostrana dnevna soba sa trpezarijom i kuhinjom, izlazom na terasu, dok su dve spavaće sobe, kupatilo i odvojeni toalet izdvojeni u posebnom spavaćem bloku, što pruža dodatnu privatnost. Zahvaljujući jugozapadnoj orijentaciji, stan je veoma svetao i prijatan tokom celog dana.
Smešten u srcu Zemuna, ovaj kompleks pruža idealan spoj urbanog života i poslovnih mogućnosti. Okružen je zelenilom i nalazi se u neposrednoj blizini svih važnih sadržaja – škola, vrtića, prodavnica, restorana i javnog prevoza.
Moderna arhitektura i funkcionalan dizajn savršeno se uklapaju u okruženje, pružajući komfor, kvalitet i sve što je potrebno za savremen i praktičan život.
Idealno za porodice, parove ili kao pametna investicija.
Posrednička naknada je u skladu sa Opštim uslovima poslovanja posrednika kompanije "Etagi com" d.o.o.
Three-Room Apartment 68.5 m² – New Construction, Terrace, 1st Floor, Southwest Facing – Zemun A modern three-room apartment of 68.5 m² is available for sale, located on the first floor of a high-quality newly built building with a total of fiv floors. The apartment features an excellent layout – a spacious living room with a dining area and kitchen, with access to a terrace. The two bedrooms, bathroom, and separate toilet are part of a private sleeping area, offering added privacy. Thanks to its southwest orientation, the apartment enjoys plenty of natural light throughout the day. Located in the heart of Zemun, this residential complex offers the perfect blend of urban living and business opportunities. Surrounded by greenery and close to all essential amenities – schools, kindergartens, shops, restaurants, and public transport. Modern archit
Трёхкомнатная квартира 68,5 м² – Новостройка, Терраса, 1 этаж, Юго-западная сторона – Земун
В продаже современная трёхкомнатная квартира площадью 68,5 м², расположенная на первом этаже качественного жилого комплекса новой постройки с четырьмя этажами.
Квартира имеет отличную планировку – просторная гостиная с обеденной зоной и кухней, с выходом на террасу. Две спальни, ванная комната и отдельный туалет находятся в отдельном спальном блоке, что обеспечивает дополнительный комфорт и приватность. Благодаря юго-западной ориентации, квартира очень светлая и уютная в течение всего дня.
Комплекс расположен в самом сердце Земуна и предлагает идеальное сочетание городской жизни и деловых возможностей. В окружении зелени и в непосредственной близости от всей необходимой инфраструктуры – школы, детские сады, магазины, рестораны и общественный транспорт.
Современная архитектура и функциональный дизайн прекрасно вписываются в окружающую среду, обеспечивая комфорт, качество и всё необходимое для современной и практичной жизни.
Отличный выбор для семьи, пары или как разумное вложение.
*Sačuvaj oglas uz belešku i primaj obaveštenja o njihovom pojeftinjenju ili pojavljivanju sličnih
Prikaz stana na mapi
Parkovi u blizini
- Park Sava Kovačević12 min
- Dečje igralište19 min
- Park Jelovac19 min

Obeležja kulture u blizini
- Ičkova kuća9 min
- Livnica Pantelić11 min
- Kula Sibinjanin Janka Gardoš11 min

Škole/Fakulteti/Vrtići u blizini
- Osnovna škola (Osnovna škola Petar Kočić)7 min
- Srednja škola (Specijalna srednja škola Veljko Ramadanović)13 min
- Vrtić (Dečiji vrtić Povratak prirodi)11 min
- Fakultet (Kriminalističko policijski univerzitet)4 min

- Bolnica (Hirurška ordinacija Renova)7 min
- Klinika (Poliklinika O2)5 min
- Teretana (Fitness club Pump It Up)5 min
- Prodavnica (Market Mona)2 min
- Restoran (Restoran Dubočica)4 min
- Kafana (Kafana Biblioteka kod Majora)9 min
- Taksi stajalište (Taxi stanica)2 min
- Autobuska stanica (Rada Končara /Dom Zdravlja/)2 min
- Banka (Eurobank Direktna)10 min
- Pošta (Pošta Beograd 100)9 min
Kontakt oglašivača
Stambeni krediti

- Period otplate od
96 -360 meseca
- NKS 4.75%
EKS 5.74%
Fiksna kamatna stopa
- Bez troškova obrade kredita
stranici kreditnih kalkulatora
Keš krediti
Period otplate
13 meseci