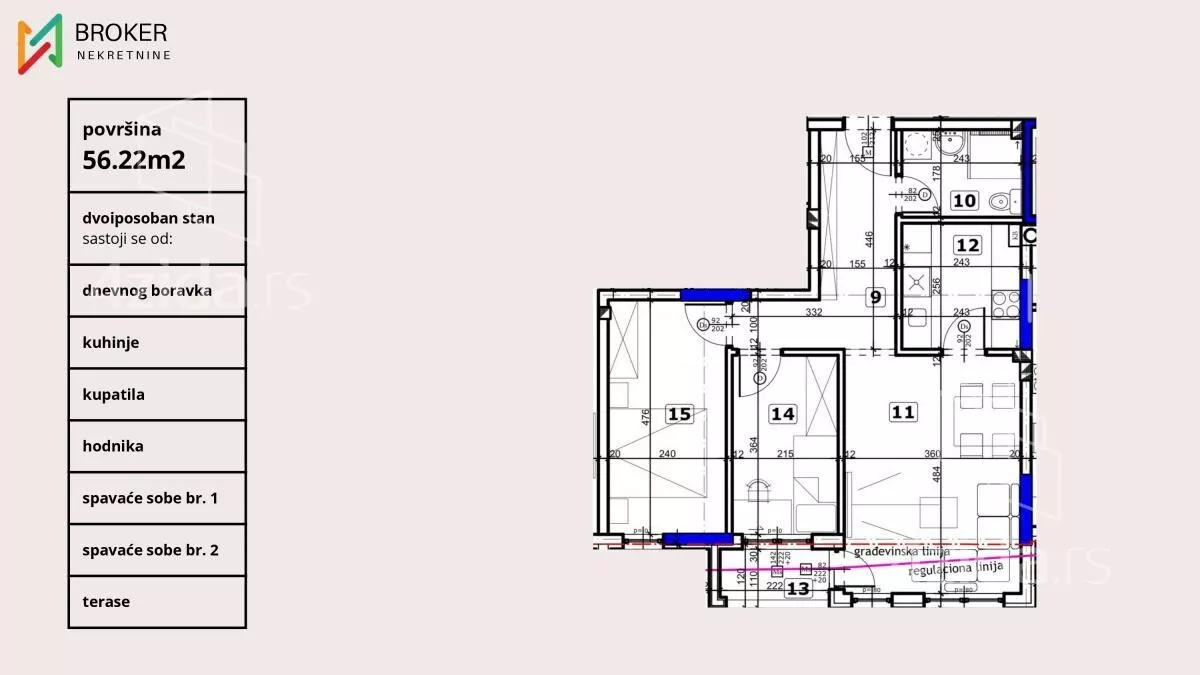
Trosoban stan na prodaju, Margita, 117.500€, 56m²




117.500 €
2.098 € / m2
- Stan u zgradi
- Grejanje na gas
- Novo
- Prostorije: terasa
- Opremljenost: Prazno - internet, interfon
- Oglas oglašava agencija pod reg. brojem 1436
- 1 lift
- Godina izgradnje: 2027.
Opis oglasa
Stan u novogradnji od proverenog investitora, tvoje je samo da poručiš nameštaj i ostalo ti je završeno!
Stan se sastoji od:
- Dnevne sobe sa trpezarijom
- Kuhinje
- Spavaće sobe br.1
- Spavaće sobe br.2
- Hodnika
- Terase
Takođe poseduje:
- Grejanje: GAS
- PVC stolarija (6 komorna, 3 stakla niskoemisiona + klima gard)
- Parker: višekomponentni 13.2mm
- Keramika: prva klasa
Na idealnoj lokaciji u neposrednoj blizini vrtića, marketa, puta za Beograd i ostalih sadržaja za svakodnevni život.
Izražena cena stana je sa uračunatim PDV-om
Mogućnost povrata PDV-a za kupce prvog stana
- Mogućnost kupovine parking mesta po ceni od 7200€ (sa PDVom)
Završetak radova: April 2027
Zgrada poseduje LIFT: DA
Nalazi se na spratu: treći (nije poslednji)
Moguća kupovina putem kredita: DA
Moguća kupovina putem kredita za mlade: NE
Agencijska provizija za posredovanje: 3 % od cene nepokretnosti.
Broker Nekretnine
Broker Nikola
Kancelarija: Karađorđeva 2a
*Sačuvaj oglas uz belešku i primaj obaveštenja o njihovom pojeftinjenju ili pojavljivanju sličnih
Prikaz stana na mapi
Parkovi u blizini
- Park na Trgu kralja Petra19 min
- Narodna bašta Pančevo36 min
- Park Barutana40 min

Obeležja kulture u blizini
- Spomen kompleks Stratište9 min
- Spomenik vojvodi Stevanu Šupljikcu10 min
- Zgrada Stare bolnice11 min

Škole/Fakulteti/Vrtići u blizini
- Osnovna škola (Osnovna škola Vasa Živković)5 min
- Srednja škola (Gimnazija Uroš Predić)6 min
- Vrtić (Dečiji vrtić Crvenkapa)6 min
- Fakultet (Stomatološki fakultet Pančevo)15 min

- Bolnica (Bolnica za očne bolesti Pančevo)10 min
- Klinika (Poliklinika MD)7 min
- Teretana (Be Fit Fitness Club)6 min
- Prodavnica (Aman market)8 min
- Restoran (Restoran Citadela)7 min
- Kafana (Kafana Crni leptir)20 min
- Taksi stajalište (Taxi stanica)23 min
- Autobuska stanica (Gornji Mlin)5 min
- Banka (Eurobank Direktna)6 min
- Pošta (Pošta Pančevo 10)6 min
Kontakt oglašivača
Krediti OTP banke
Saznaj više
Prikazana rata odnosi se na maksimalni period otplate. Kalkulator je informativnog karaktera.
* Nakon isteka 5 godina, prelazi se na varijabilnu kamatnu stopu


