Dvosoban stan na prodaju, Margita, 103.488€, 56m²












103.488 €
1.848 € / m2
- Stan u zgradi
- Podno grejanje
- Novo
- Prostorije: ostava, terasa
- Opremljenost: Prazno - klima
- Uknjiženo
- Oglas oglašava agencija pod reg. brojem 1436
- 1 lift
- Godina izgradnje: 2026.
Opis oglasa
Moderna zgrada u ulici Ive Kurjačkog 17 u Pančevu, pozicionirana u blizini reke, crkve, Osnovne škole, Doma zdravlja i svih potrebnih sadržaja za svakodnevno funkcionisanje.
Izgrađena po najvišim standardima i kvalitetnim materijalima, sa priključkom i grejanjem na Gas obezbediće Vama i Vašoj porodici optimalnu potrošnju bez kompromisa po pitanju energetske efikasnosti.
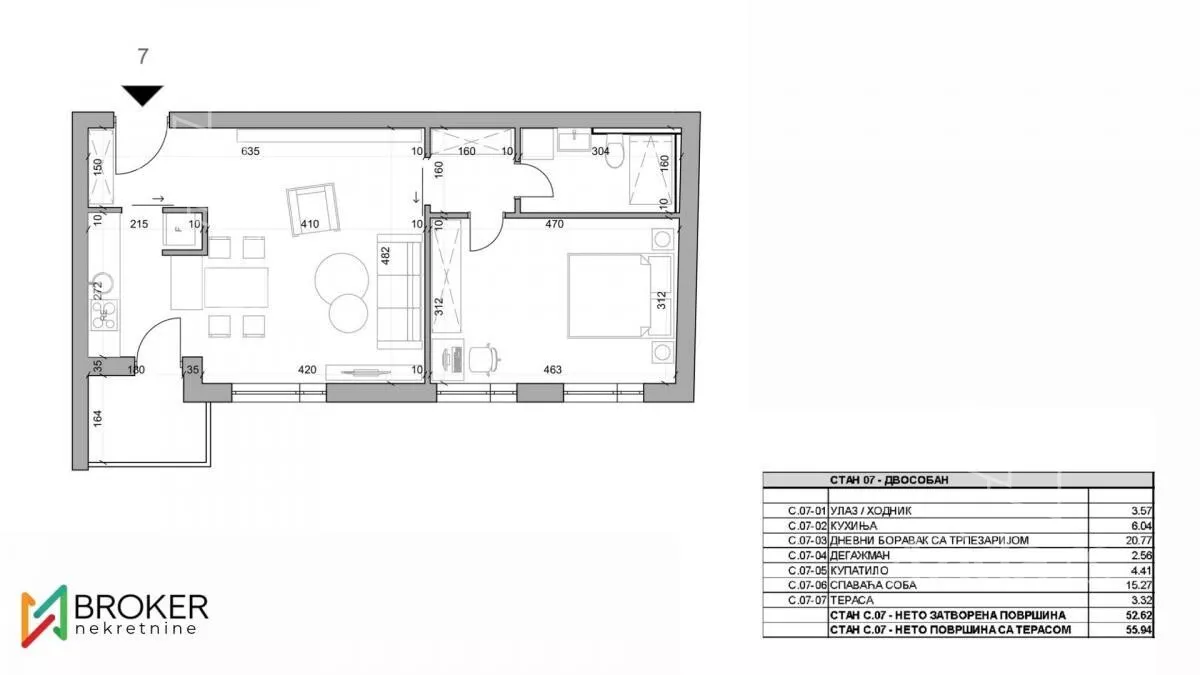
Stan se sastoji od:
- Dnevni boravak sa trpezarijom
- Kuhinje
- Spavaće sobe
- Kupatila
- Degažmana
- Terase
- Hodnika
Takođe poseduje:
- Grejanje: Gas (podno)
- Inverter klimu
- Spoljašnji zidovi: termo blok 20cm, stiropor 15cm.
- Zid između stanova: giter blok 20cm, mineralna vuna 3cm, vlagootporne gipsarske ploče.
- Fasada: Izoterm – kontaktna fasada, stiropor 15cm
- Krov: dvovodni, plitak u blagom nagibu.
- Izolacija krova: termoizolacija od kamene vune 15cm.
- Pod: Parket i keramika
- Moguće je birati da li će podna obloga biti tarket ili pločice
- Stolarija spoljašnja: ALU stolarija - termo blok, na terasama staklo sa UV odbojnicima
- Stolarija unutrašnja: Farbani Medijapan
Orijentisan je ka ulici.
Nalazi se na spratu: 2 (nije poslednji)
Zgrada poseduje lift: DA
Rok za završetak radova: 31.12.2026
Izražena cena stana je sa uračunatim PDV-om.
Cena od 1680+PDV je cena za keš kupce dok cena za kreditne kupce zavisi od visine učešća za stambeni kredit.
Mogućnost povrata PDV-a za kupce prvog stana: DA
Moguća kupovina putem kredita: DA
Mogućnost kupovina garažnog mesta uz stan : DA
Cena garažnog mesta je 9000e + PDV(20%)
Agencijska provizija za posredovanje: 0 % od cene nepokretnosti.
Broker Nekretnine
Broker Nevena
Kancelarija: Karađorđeva 2a
*Sačuvaj oglas uz belešku i primaj obaveštenja o njihovom pojeftinjenju ili pojavljivanju sličnih
Prikaz stana na mapi
Parkovi u blizini
- Park na Trgu kralja Petra18 min
- Narodna bašta Pančevo33 min
- Park Barutana37 min

Obeležja kulture u blizini
- Spomen kompleks Stratište9 min
- Spomenik vojvodi Stevanu Šupljikcu10 min
- Zgrada Stare bolnice11 min

Škole/Fakulteti/Vrtići u blizini
- Osnovna škola (Osnovna škola Vasa Živković)5 min
- Srednja škola (Gimnazija Uroš Predić)6 min
- Vrtić (Dečiji vrtić Crvenkapa)5 min
- Fakultet (Stomatološki fakultet Pančevo)15 min

- Bolnica (Bolnica za očne bolesti Pančevo)10 min
- Klinika (Poliklinika MD)6 min
- Teretana (Be Fit Fitness Club)6 min
- Prodavnica (Aman market)7 min
- Restoran (Restoran Citadela)7 min
- Kafana (Kafana Crni leptir)19 min
- Taksi stajalište (Taxi stanica)21 min
- Autobuska stanica (Gornji Mlin)4 min
- Banka (Eurobank Direktna)6 min
- Pošta (Pošta Pančevo 10)6 min
Kontakt oglašivača
Krediti OTP banke
Saznaj više
Prikazana rata odnosi se na maksimalni period otplate. Kalkulator je informativnog karaktera.
* Nakon isteka 5 godina, prelazi se na varijabilnu kamatnu stopu


