Četvorosoban stan na prodaju, Lekino Brdo, 340.725€, 97m²








340.725 €
3.513 € / m2
- Novo
- Prostorije: kupatila (2), terasa
- Opremljenost: Prazno - interfon, klima
- Oglas oglašava agencija pod reg. brojem 2027
- 1 lift
- Godina izgradnje: 2025.
Opis oglasa
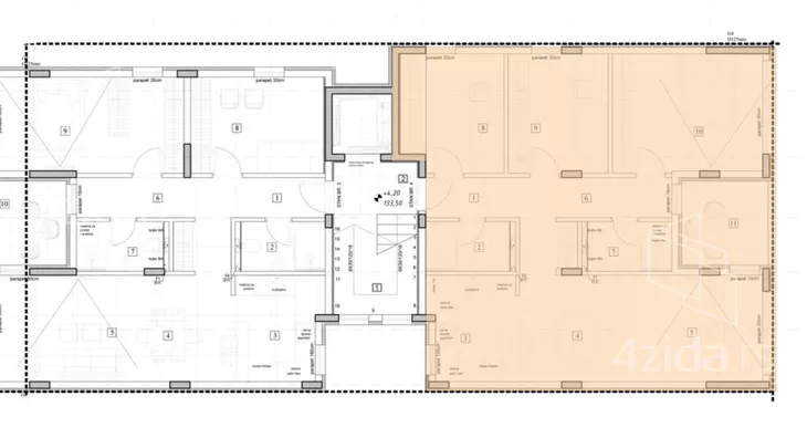
Na prodaju četvorosoban stan u Banjalučkoj ulici, površine 97,35 m², na prvom spratu. Odmah useljiv.
Stan sa pogledom ka dvorištu. Idealan raspored prostorija, sa tri spavaće sobe, kupatilom, velikom kuhinjom i terasom. Prostrana dnevna soba sa trpezarijom koja ima izlaz na terasu je centralni deo za okupljanje i uživanje sa porodicom i prijateljima. Prostorije pogoduju modernom načinu opremanja enterijera, uz odgovarajući prostor za garderobere. Stan se nalazi u središnjem delu zgrade, što mu daje dodatnu toplotnu izolaciju i niže troškove grejanja i hlađenja. Pored ovog stana na prvom spratu, u ponudi je i stan iste strukture na trećem spratu.
Zgrada se nalazi u Banjalučkoj ulici, na samoj granici Lekinog brda i Vračara. Lokacija pruža savršenu ravnotežu između urbanog gradskog života i mirnog porodičnog okruženja. Blizina glavnih saobraćajnica i javnog prevoza omogućava brz dolazak do centra grada, dok istovremeno nudi mir i tišinu porodičnog kraja. Zgrada ima četiri sprata, opremljena je liftom i građena od savremenih materijala, sa pažljivo planiranim detaljima koji garantuju kvalitet i dugotrajnost.
Investitor je renomirana kompanija sa preko 25 godina iskustva i više od 47 uspešno završenih projekata, koja garantuje kvalitetnu gradnju i transparentnost u poslovanju.
Cena je iskazana sa uračunatim PDV-om.
Posrednička provizija agencije iznosi 2% od kupoprodajne cene, u skladu sa važećim uslovima poslovanja.
*Sačuvaj oglas uz belešku i primaj obaveštenja o njihovom pojeftinjenju ili pojavljivanju sličnih
Prikaz stana na mapi
Parkovi u blizini
- Park Šumice10 min
- Park Urbani džep13 min
- Park mira Jelena Šantić20 min

Obeležja kulture u blizini
- Osnovna škola Kralj Petar II Karađorđević8 min
- Vozarev krst9 min
- Kuća Flašar9 min

Škole/Fakulteti/Vrtići u blizini
- Osnovna škola (Specijalna osnovna škola Dušan Dugalić)5 min
- Srednja škola (Osma beogradska gimnazija)4 min
- Vrtić (Dečiji vrtić Sveznalica)2 min
- Fakultet (Univerzitet u Beogradu Fakultet bezbednosti)6 min

- Bolnica (Specijalna bolnica za hemodijalizu Dragačevska Fresenus Medical Care)7 min
- Klinika (Poliklinika Sim Medical Team)6 min
- Teretana (Fitness club Relax)5 min
- Prodavnica (Mini market Agrumi)manje od 1 min
- Restoran (Roštilj i kafanica BBQ Ćevap)4 min
- Kafana (Pivnica JB)11 min
- Taksi stajalište (Taxi stanica)6 min
- Autobuska stanica (Tetovska)9 min
- Tramvajska stanica (Pijaca Zvezdara)24 min
- Trolejbuska stanica (Kruševačka)5 min
- Banka (Addiko Bank)6 min
- Pošta (Pošta Beograd 107)5 min
Kontakt oglašivača
Stambeni krediti
- Period otplate od
96 -360 meseca
- NKS 4.75%
EKS 5.74%
Fiksna kamatna stopa
- Bez troškova obrade kredita
- Period otplate od
96 -360 meseca
- NKS 4.34%
Kombinovana kamatna stopa
- Bez troškova obrade kredita
- Odobrenje kredita do 48h
stranici kreditnih kalkulatora
Keš krediti
Period otplate
13 meseci
