Trosoban stan na prodaju, Josifa Pančića, 130.425€, 70m²
















130.425 €
1.863 € / m2
- Grejanje na norveške radijatore
- Prostorije: kupatilo
- Opremljenost: Prazno - internet, interfon, klima
- Oglas oglašava agencija pod reg. brojem 1294
- 1 parking mesto
- Godina izgradnje: 2025.
- Zgrada poseduje: lođa
- 1 telefonska linija
Opis oglasa
Na samo 3km od Aerodroma Nikola Tesla, na par minuta od Novog Beograda. Savršena lokacija za miran porodični život van grada. U blizini budućeg svetskog sajma Expo 2027 i nacionalnog stadiona. Izlaz na dva auto puta Miloš Veliki i E75.
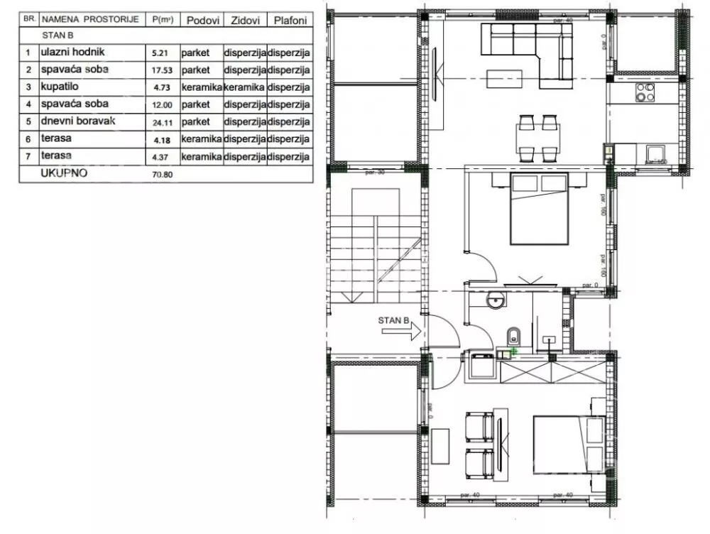
Prodajemo 3.0 stan izuzetno funkcionalnog rasporeda na 2. spratu.
Prostorije: dnevni boravak, 2 spavaće sobe , kupatilo , 2 terase.
-Građevinska dozvola
-Smart sistem
-Energetski efikasan objekat
-Grejanje po potrošnji, norveški radijatori (mogućnost upravljanja preko aplikacije)
-Stolarija višekomorna PVC Gray Brown
-Unutrašnja stolarija – Gray Brown
-Sigurnosna ulazna vrata
-Unutrašnja vrata bela medijapan
-Keramika PRVE klase
-Višeslojni parket TARA concept
-Parking mesto za svaki stan
-Interfon
-Beli eko crep
U potrazi ste za nekretninom koja će vašoj porodici pružiti mir i kvalitet života, daleko od gradske vreve i saobraćaja, a sa odličnom povezanošću sa gradom. Ova zgrada će vam pružiti kvalitetnu novogradnju po najboljoj ceni. Zakažite sastanak i rezervišite apartman na lokaciji koji predstavlja konekciju Beograda sa celim svetom.
Uz stan postoji mugćnos kupovine parking mesta uz doplatu.
CENA JE BEZ PDV-ea.
*Sačuvaj oglas uz belešku i primaj obaveštenja o njihovom pojeftinjenju ili pojavljivanju sličnih
Prikaz stana na mapi
Obeležja kulture u blizini
- Spomenik Nikoli Tesli9 min
- Stara osnovna škola13 min
- Hangar Starog aerodroma na Novom Beogradu20 min

Škole/Fakulteti/Vrtići u blizini
- Osnovna škola (Osnovna škola Vlada Obradović Kameni)8 min
- Srednja škola (Srednja politehnička škola Politehnika)19 min
- Vrtić (Dečiji vrtić Balončići)7 min
- Fakultet (SMATSA školski centar)8 min

- Bolnica (Opšta bolnica Avala)19 min
- Klinika (Poliklinika As Medicus Biorezonanca)15 min
- Teretana (Košava Gym)15 min
- Prodavnica (Gomex market)7 min
- Restoran (Restoran Kod Đuke)14 min
- Taksi stajalište (Taxi stanica)46 min
- Autobuska stanica (Vikend Naselje)5 min
- Banka (Poštanska štedionica)9 min
- Pošta (Pošta Beograd 95)6 min
Kontakt oglašivača
Krediti OTP banke
Saznaj više
Prikazana rata odnosi se na maksimalni period otplate. Kalkulator je informativnog karaktera.
* Nakon isteka 5 godina, prelazi se na varijabilnu kamatnu stopu


