Trosoban stan na prodaju, Josifa Pančića, 126.900€, 70m²
















126.900 €
1.813 € / m2
- Etažno grejanje
- U izgradnji
- Oglas oglašava agencija pod reg. brojem 1294
- Zgrada poseduje: lođa
- 1 telefonska linija
Opis oglasa
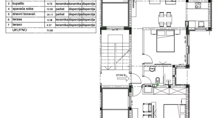
Na samo 3km od Aerodroma Nikola Tesla, na par minuta od Novog Beograda. Savršena lokacija za miran porodični život van grada. U blizini budućeg svetskog sajma Expo 2027 i nacionalnog stadiona. Izlaz na dva auto puta Miloš Veliki i E75. Prodajemo 3.0 stan izuzetno funkcionalnog rasporeda na 1. spratu. Prostorije: dnevni boravak, 2 spavaće sobe , kupatilo , terasa. -Građevinska dozvola -Smart sistem -Energetski efikasan objekat -Podno grejanje -Elektro roletne -Stolarija višekomorna PVC Gray Brown -Unutrašnja stolarija – Gray Brown -Sigurnosna ulazna vrata -Unutrašnja vrata bela medijapan -Keramika PRVE klase -Višeslojni parket TARA concept -Parking mesto za svaki stan -Interfon -Beli eko crep U potrazi ste za nekretninom koja će vašoj porodici pružiti mir i kvalitet života, daleko od gradske vreve i saobraćaja, a sa odličnom povezanošću sa gradom. Ova zgrada će vam pružiti kvalitetnu novogradnju po najboljoj ceni. Zakažite sastanak i rezervišite apartman na lokaciji koji predstavlja konekciju Beograda sa celim svetom. Uz stan postoji mugćnos kupovine parking mesta uz doplatu. CENA JE BEZ PDV-ea.
*Sačuvaj oglas uz belešku i primaj obaveštenja o njihovom pojeftinjenju ili pojavljivanju sličnih
Prikaz stana na mapi
Parkovi u blizini
- Park Republike Argentine37 min

Obeležja kulture u blizini
- Stara osnovna škola9 min
- Spomenik Nikoli Tesli12 min
- Hangar Starog aerodroma na Novom Beogradu15 min

Škole/Fakulteti/Vrtići u blizini
- Osnovna škola (Osnovna škola Vlada Obradović Kameni)9 min
- Srednja škola (Srednja škola Kosta Cukić)14 min
- Vrtić (Dečiji vrtić Dragan Laković)7 min
- Fakultet (SMATSA školski centar)12 min

- Bolnica (Opšta bolnica Avala)16 min
- Klinika (Poliklinika Naturalia)15 min
- Teretana (Jungle Power Fitness)8 min
- Prodavnica (Market Venera)6 min
- Restoran (Restoran Azija)11 min
- Kafana (Kafana Balkan Ekspres)34 min
- Taksi stajalište (Taxi stanica)38 min
- Autobuska stanica (Ledine)8 min
- Banka (Poštanska štedionica)10 min
- Pošta (Pošta Beograd 67)8 min
Kontakt oglašivača
Stambeni krediti

- Period otplate od
96 -360 meseca
- NKS 4.75%
EKS 5.74%
Fiksna kamatna stopa
- Bez troškova obrade kredita
stranici kreditnih kalkulatora
Keš krediti
Period otplate
13 meseci