Dvosoban stan na prodaju, Dušana Krstića, 113.977€, 43m²


113.977 €
2.651 € / m2
- Grejanje na toplotnu pumpu
- Novo
- Prostorije: kupatilo, terasa
- Opremljenost: Prazno - internet, interfon
- Uknjiženo
- Oglas oglašava agencija pod reg. brojem 977
- 1 garažno mesto
- 1 parking mesto
- 1 lift
- Zgrada poseduje: podrum
- 1 telefonska linija
Opis oglasa
U ponudi imamo savremen stambeni kompleks koji kombinuje modernu arhitekturu, visok standard gradnje i atraktivnu lokaciju u naselju Ledine-Surčin.
Investitor ističe brojne prednosti kompleksa:
-perspektivna lokacija sa infrastrukturom i blizinom važnih tačaka grada;
-smart sistem, energetska efikasnost i moderni građevinski standardi;
-podno grejanje, višekomorna PVC stolarija i visokokvalitetna keramika;
-garažno mesto obezbeđeno za svaki stan (uz doplatu);
-zaštita pristupa i kontrola ulaza za stanare.
Sprat: 1 / 3 (prvi sprat)
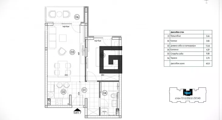
Površina: 43,01 m² (uključujući terasu)
Tip: Dvosoban stan (dnevni boravak sa trpezarijom i kuhinjom, spavaća soba, kupatilo i terasa)
Tip gradnje: Novogradnja u izgradnji
Karakteristike i pogodnosti:
funkcionalan raspored prostorija i kvalitetna priprema za završnu opremu;
lift u zgradi, interfon i video nadzor;
mogućnost ugradnje klimatizacije i internetske/TV opreme;
parking mesto dostupno uz doplatu.
Ovaj stan predstavlja izbalansiranu kombinaciju komfornog stambenog prostora i investicione perspektive – idealan je kako za sopstveni život, tako i za dugoročno ulaganje, posebno uz očekivani razvoj okolne infrastrukture i planirane događaje u regionu.
Cena stana je iskazana bez PDV-a na kojikupac ima pravo povraćaja.
Pronalaženje adekvatne nekretnine za vas, pomoć u pregovorima, provera dokumentacije,izrada ugovora/predugovora o kupoprodaji, bezbedno vođenje celokupnog kupoprodajnog procesa i papirologije
Agencijska provizija 2%
*Sačuvaj oglas uz belešku i primaj obaveštenja o njihovom pojeftinjenju ili pojavljivanju sličnih
Prikaz stana na mapi
Parkovi u blizini
- Park Republike Argentine29 min

Obeležja kulture u blizini
- Stara osnovna škola8 min
- Spomenik Nikoli Tesli13 min
- Hangar Starog aerodroma na Novom Beogradu15 min

Škole/Fakulteti/Vrtići u blizini
- Osnovna škola (Osnovna škola Vlada Obradović Kameni)10 min
- Srednja škola (Srednja škola Kosta Cukić)15 min
- Vrtić (Dečiji vrtić Mega kids)9 min
- Fakultet (SMATSA školski centar)13 min

- Bolnica (Opšta bolnica Avala)15 min
- Klinika (Poliklinika As Medicus Biorezonanca)11 min
- Teretana (Jungle Power Fitness)11 min
- Prodavnica (Prodavnica Mega Sunce)4 min
- Restoran (Pečenjara Ledine)8 min
- Kafana (Kafana Balkan Ekspres)27 min
- Taksi stajalište (Taxi stanica)30 min
- Autobuska stanica (Biodekor)3 min
- Banka (Banca Intesa)8 min
- Pošta (Pošta Beograd 95)7 min
Kontakt oglašivača

Krediti OTP banke
Saznaj više
Prikazana rata odnosi se na maksimalni period otplate. Kalkulator je informativnog karaktera.
* Nakon isteka 5 godina, prelazi se na varijabilnu kamatnu stopu

