Dvosoban stan na prodaju, Univerzijade, 126.000€, 43m²




























126.000 €
2.930 € / m2
- Stan u zgradi
- Grejanje na struju
- Luksuzno
- Prostorije: kupatilo, kuhinja
- Opremljenost: Namešteno - internet, klima, veš mašina, kuhinjski elementi, sudo mašina, frižider, zamrzivač, mikrotalasna rerna, šporet, rerna, ležaj, plakar, ugradni plakar
- Pogled na: ulicu
- Uknjiženo
- Oglas oglašava agencija pod reg. brojem 1299
- Parking u dvorištu zgrade, javni parking van zone
- 1 lift
- Zgrada poseduje: lođa
Opis oglasa
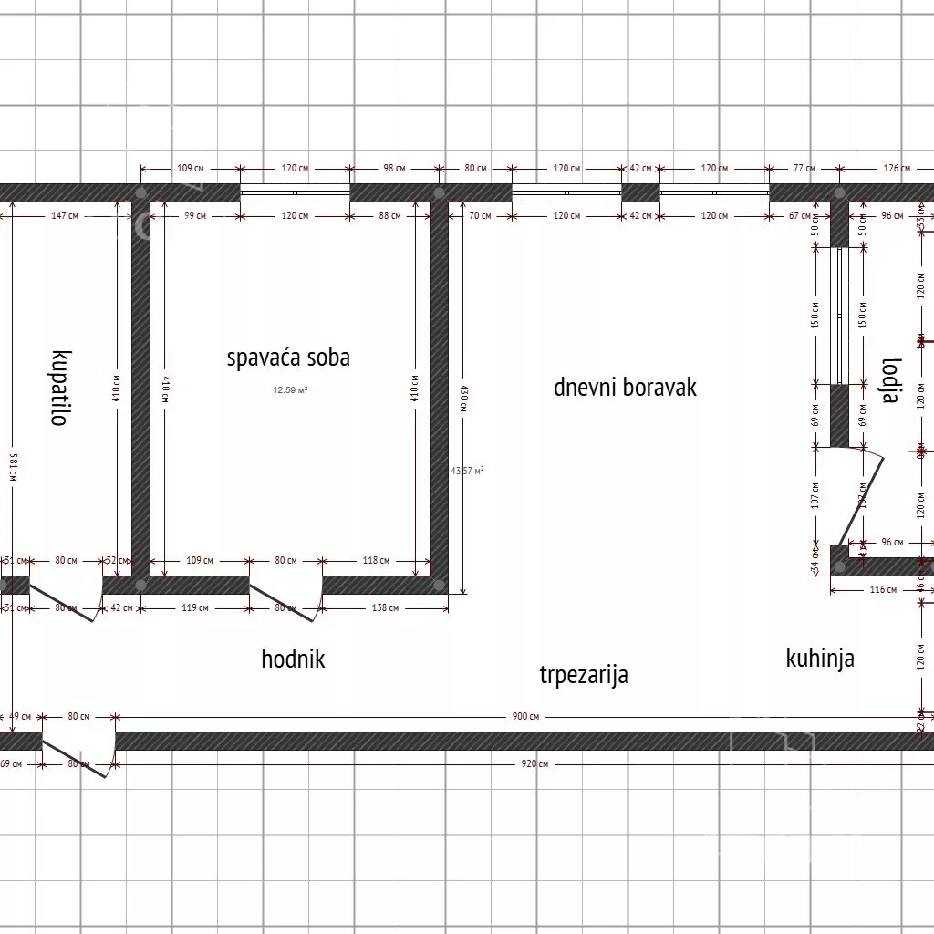
Na prodaju je uknjižen, nov, izuzetno svetao dvosoban stan (2.0), kompletno opremljen, namenjen kupcima koji traže kvalitet, komfor i sigurnu investiciju.
Stan je pažljivo projektovan u kvalitetnoj zgradi sa energetskim pasošem i odličnom termo i zvučnom izolacijom. U dvorišnom delu zgrade se nalazi parking namenjen stanarima.
Nalazi na visokom prizemlju, dvostrano je orijentisan i odiše toplinom i elegancijom. Opremljen je kvalitetnim ugradnim plakarima, modernom kuhinjom i kompletnom belom tehnikom i uredjajima, kvalitetnim hrastovim parketom, keramikom prve klase, kvalitetnom sanitarijom, modernom rasvetom, smart radijatorima za grejanje, što ga čini odmah spremnim za izdavanje ili useljenje — bez dodatnih ulaganja.
Karakteristike koje izdvajaju ovu nekretninu:
- Prostran dnevni boravak sa izlazom na zastakljenu lođu (PVC stolarija, roletne, komarnici), koncept open space sa trpezarijom i kuhinjom sa prirodnom ventilacijom
- Kupatilo sa prirodnom ventilacijom
- Komforna spavaća soba
- Funkcionalan, elegantan i „ušuškan“ enterijer
- Kvalitetna završna obrada i moderan stil
Lokacija u neposrednoj blizini novobeogradskih blokova garantuje visoku potražnju za izdavanje, kako dugoročno, tako i kratkoročno. Odlična povezanost, infrastruktura i sadržaji u okruženju čine ovu nekretninu stabilnim i isplativim ulaganjem.
Savršen izbor za investitore – brz povrat investicije i siguran prihod od zakupa.
💎 Retka prilika na tržištu, po izuzetno konkurentnoj ceni.
📞 Kontaktirajte nas za više informacija i zakazivanje razgledanja.
Posrednička naknada je u skladu sa Opštim uslovima poslovanja kompanije Etagi doo.
Продается внесённая в реестр, новая, исключительно светлая двухкомнатная квартира (2.0), полностью меблированная и оснащённая, идеально подходящая для покупателей, которые ценят качество, комфорт и надежные инвестиции.
Квартира спроектирована с особым вниманием к деталям и расположена в качественном жилом доме с энергетическим паспортом, отличной тепло- и звукоизоляцией. Во дворе здания предусмотрена парковка для жильцов.
Расположена на высоком первом этаже, имеет двустороннюю ориентацию, отличается уютом и элегантностью. Оснащена качественными встроенными шкафами, современной кухней, полной бытовой техникой, дубовым паркетом, первоклассной керамикой, качественной сантехникой, современным освещением и смарт-радиаторами отопления.
Квартира полностью готова к заселению или сдаче в аренду — без дополнительных вложений.
🛋 Преимущества объекта:
- Просторная гостиная с выходом на застеклённую лоджию (ПВХ-окна, рольставни, москитные сетки)
- Концепция open space с обеденной зоной и кухней с естественной вентиляцией
- Ванная комната с естественной вентиляцией
- Уютная спальня
- Функциональный, элегантный и «уютный» интерьер
- Качественная отделка и современный дизайн
Расположение в непосредственной близости от районов Нового Белграда обеспечивает высокий спрос на аренду — как долгосрочную, так и краткосрочную. Отличная транспортная доступность и развитая инфраструктура делают данный объект стабильным и выгодным инвестиционным вложением.
Идеальный выбор для инвесторов — быстрый возврат инвестиций и стабильный арендный доход.
💎 Редкое предложение на рынке по исключительно конкурентной цене.
📞 Свяжитесь с нами для получения дополнительной информации и организации просмотра.
Агентское вознаграждение взимается в соответствии с Общими условиями деятельности компании Etagi d.o.o.
For sale is a registered, brand-new, exceptionally bright two-room apartment (2.0), fully furnished and equipped, designed for buyers seeking quality, comfort, and a secure investment.
The apartment is carefully designed and located in a high-quality residential building with an energy efficiency certificate, excellent thermal and sound insulation. A residents-only parking area is available in the courtyard of the building.
Situated on a high ground floor, the apartment is dual-oriented, offering warmth, elegance, and a pleasant living atmosphere. It features custom built-in wardrobes, a modern kitchen, complete set of appliances, high-quality oak parquet flooring, first-class ceramics, premium sanitary ware, modern lighting, and smart heating radiators.
The property is move-in ready or immediately suitable for rental — with no additional investment required.
Key features of the property:
- Spacious living room with access to a glazed loggia (PVC windows, shutters, mosquito nets)
- Open-space concept with dining area and kitchen with natural ventilation
- Bathroom with natural ventilation
- Comfortable bedroom
- Functional, elegant, and cozy interior
- High-quality finishes and modern design
Located in close proximity to New Belgrade blocks, the apartment ensures strong rental demand, both for long-term and short-term leasing. Excellent connectivity, infrastructure, and nearby amenities make this property a stable and profitable investment.
Perfect choice for investors — fast return on investment and secure rental income.
💎 A rare opportunity on the market at a highly competitive price.
📞 Contact us for more information and to schedule a viewing.
Agency commission is charged in accordance with the General Terms and Conditions of Etagi d.o.o.
*Sačuvaj oglas uz belešku i primaj obaveštenja o njihovom pojeftinjenju ili pojavljivanju sličnih
Prikaz stana na mapi
Parkovi u blizini
- Park Republike Argentine18 min
- Park Blok 7041 min

Obeležja kulture u blizini
- Stara osnovna škola7 min
- Hangar Starog aerodroma na Novom Beogradu13 min
- Spomenik Nikoli Tesli14 min

Škole/Fakulteti/Vrtići u blizini
- Osnovna škola (Škola matematike Moja Škola)5 min
- Srednja škola (Srednja škola Kosta Cukić)13 min
- Vrtić (Dečiji vrtić Mega kids)6 min
- Fakultet (Univerzitet u Beogradu Fakultet dramskih umetnosti)16 min

- Bolnica (Opšta bolnica Avala)13 min
- Klinika (Poliklinika As Medicus Biorezonanca)9 min
- Teretana (Jungle Power Fitness)4 min
- Prodavnica (Aman market)6 min
- Restoran (Pečenjara Ledine)6 min
- Kafana (Kafana Balkan Ekspres)16 min
- Taksi stajalište (Taxi stanica)19 min
- Autobuska stanica (Nedeljka Gvozdenovića)3 min
- Banka (Banca Intesa)7 min
- Pošta (Pošta Beograd 95)16 min
Kontakt oglašivača
Krediti OTP banke
Saznaj više
Prikazana rata odnosi se na maksimalni period otplate. Kalkulator je informativnog karaktera.
* Nakon isteka 5 godina, prelazi se na varijabilnu kamatnu stopu


