Četvorosoban stan na prodaju, Hajduk Stojka, 198.000€, 154m²
OBIĐI 3D TURU




































198.000 €
1.286 € / m2
- Dupleks
- Etažno grejanje
- Novo
- Opremljenost: Prazno - interfon, klima, kanalizacija
- Uknjiženo
- Oglas oglašava agencija pod reg. brojem 167
- 1 parking mesto
- Kanalizacija
- Godina izgradnje: 2023.
- 1 telefonska linija
Opis oglasa
Voždovac, Farmaceutski fakultet - Hajduk Stojka
4.0, 154m2, dva francuska balkona, 2/2, EG, klima, telefon, interfon, parking
Lep, svetao, prostran dupleks u mirnom kraju, okružen zelenilom. Savršen za porodičan život ili za one koji žele udobnost i tišinu, a opet blizu svim gradskim sadržajima. Stan pruža predivan pogled na Košutnjak.
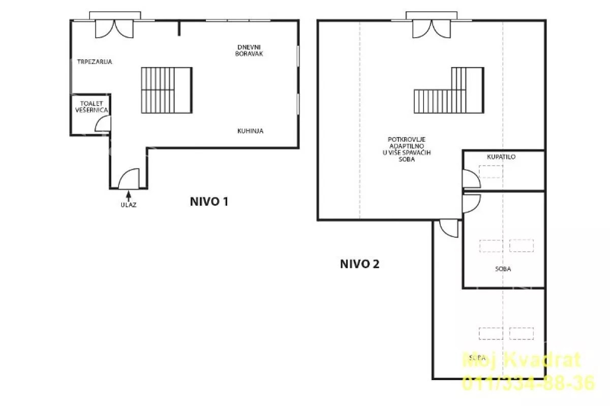
Prostire se na dve etaže, što stanu daje veću vrednost i komfor. Donji nivo stana se sastoji od velikog dnevnog boravka, trpezarije, funkcionalne kuhinje i kupatila. Gornji nivo ima dve spavaće sobe, kupatilo i otvoren prostor pogodan za radnu sobu ili još jednu spavaću sobu.
Ispred i iza zgrade se nalazi parking.
Uknjižen na 104m2, a stvarna merena kvadratura iznosi 154m2.
Agencijska provizija 2%
Agent: Snežana Krstić: 065... (prikaži broj telefona) (licenca br. 4106)
*Sačuvaj oglas uz belešku i primaj obaveštenja o njihovom pojeftinjenju ili pojavljivanju sličnih
Prikaz stana na mapi
Parkovi u blizini
- Banjička šuma50 min

Obeležja kulture u blizini
- Stara mehana u Kumodražu4 min
- Spomen park Jajinci6 min
- Rodna kuća vojvode Stepe Stepanovića8 min

Škole/Fakulteti/Vrtići u blizini
- Osnovna škola (Osnovna škola Vojvoda Stepa)4 min
- Srednja škola (Srednja škola Vasa Stajić)14 min
- Vrtić (Predškolska ustanova Cvetić Srećko)7 min
- Fakultet (Univerzitet u Beogradu Farmaceutski fakultet)6 min

- Bolnica (Centar za imunološka istraživanja Branislav Janković)13 min
- Klinika (Poliklinika Nera)12 min
- Teretana (Fitness studio Fit On)6 min
- Prodavnica (TSV Diskont)12 min
- Restoran (Restoran Oaza)15 min
- Kafana (Kafana Tores)10 min
- Taksi stajalište (Taxi stanica)17 min
- Autobuska stanica (Kalemarska)7 min
- Tramvajska stanica (Saobraćajni Fakultet)43 min
- Trolejbuska stanica (Banjica 2)26 min
- Banka (Erste Bank)10 min
- Pošta (Pošta Beograd 66)15 min
Kontakt oglašivača
Stambeni krediti

- Period otplate od
96 -360 meseca
- NKS 4.75%
EKS 5.74%
Fiksna kamatna stopa
- Bez troškova obrade kredita
stranici kreditnih kalkulatora
Keš krediti
Period otplate
13 meseci