Četvorosoban stan na prodaju, Kumanovska, 490.000€, 105m²






























490.000 €
4.667 € / m2
- Stan u zgradi
- Centralno grejanje
- Luksuzno
- Prostorije: kupatila (2), terase (2)
- Uknjiženo
- Oglas oglašava agencija
- 1 garažno mesto, garaža u sklopu zgrade
- 1 parking mesto
Opis oglasa
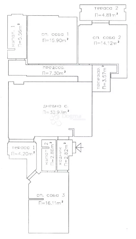
Vračar, Krunski venac, Kumanovska ulica, 4.0, 108 m2 sa terasom, I od VI spratova, CG, lift, interfon, odmah useljiv, LUX renoviran, uknjižen na 105 m2, garažno mesto, starogradnja.
Na jednoj od najprestižnijih lokacija u Beogradu, na uglu Krunske i Kumanovske, u samom srcu Vračara, prodaje se prostran salonski stan od uknjiženih 105 m2 (108 m2 mereno). Nalazi se u na 1. spratu uredjene šestospratnice sa liftom, u mirnom delu, okruženom najvažnijim gradskim sadržajima.
Stan je svetao, komforan i funkcionalno organizovan, sa velikim dnevnim boravkom, kuhinjom sa trpezarijom, tri spavaće sobe, dva kupatila i dve terase. Raspored omogućava udoban porodični život, ali je idealan izbor i za poslovni prostor ili iznajmljivanje, zbog same pozicije i strukture. Kompletno je kvalitetno renoviran.
Postoji mogućnost kupovine garažnog mesta u zgradi, uz doplatu.
Izuzetna nekretnina za kupce koji žele dom na vrhunskoj adresi ili izuzetnu investiciju na Vračaru.
CENA: 490.000 EUR
Agencijska provizija koju plaća kupac iznosi 2 % od dogovorene kupoprodajne cene.
Kontakt telefon agenta: 063... (prikaži broj telefona)
*Sačuvaj oglas uz belešku i primaj obaveštenja o njihovom pojeftinjenju ili pojavljivanju sličnih
Prikaz stana na mapi
Parkovi u blizini
- Park Mike Oklopa2 min
- Park vojvode Petra Bojovića6 min
- Park Mali Tašmajdan6 min

Obeležja kulture u blizini
- Genčićeva kuća4 min
- Spomenik Svetozaru Markoviću2 min
- Kuća pukovnika Elezovića7 min

Škole/Fakulteti/Vrtići u blizini
- Osnovna škola (Osnovna škola Sveti Sava)5 min
- Srednja škola (Četrnaesta beogradska gimnazija)5 min
- Vrtić (Dečiji vrtić Čarolije)manje od 1 min
- Fakultet (Centar Osteopatija)4 min

- Bolnica (Neurološka bolnica Affidea)8 min
- Klinika (Poliklinika Millenium Medic)7 min
- Teretana (Fitness centar Team fit)3 min
- Prodavnica (Aman market)3 min
- Restoran (Koreanski restoran Ahmee)1 min
- Kafana (Kafana Melem za dušu)5 min
- Taksi stajalište (Taxi stanica)3 min
- Autobuska stanica (Tehnički Fakulteti)4 min
- Tramvajska stanica (Vukov spomenik)6 min
- Trolejbuska stanica (Katanićeva)9 min
- Banka (Eurobank Direktna)6 min
- Pošta (Pošta Beograd 17)2 min
Kontakt oglašivača
Krediti OTP banke
Saznaj više
Prikazana rata odnosi se na maksimalni period otplate. Kalkulator je informativnog karaktera.
* Nakon isteka 5 godina, prelazi se na varijabilnu kamatnu stopu


