Dvosoban stan na prodaju, Krnjača, 82.758€, 47m²








82.758 €
1.761 € / m2
- Stan u zgradi
- Etažno grejanje
- Novo
- Oglas oglašava agencija pod reg. brojem 1667
Opis oglasa
ID 1257
Kontakt: Za vise informacija ili dogovor oko razgledanja, pozovite 064... (prikaži broj telefona)
Bez agencijske provizije - direktna cena od investitora.
Pravni nadzor - izrada i overa kupoprodajnog ugovora obezbeđena.
Stambeni objekat nalazi se u naselju Krnjača, opština Palilula, u planski uređenoj zoni namenjenoj porodičnom stanovanju. Objekat je slobodnostojeći, sa obezbeđenim pešačkim i kolskim pristupom. Projektovan je sa komfornom spratnom visinom i pažljivo organizovanim stambenim jedinicama. Poseban akcenat stavljen je na veliki procenat slobodnih i ozelenjenih površina, kao i na parkiranje u okviru parcele, uz očuvanje zelenila, što doprinosi kvalitetnom i mirnom ambijentu za stanovanje.
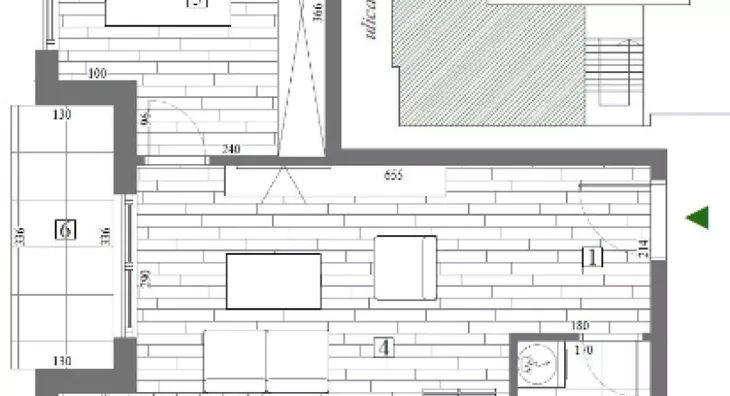
Funkcionalan dvosoban stan sa dobro iskorišćenim prostorom i jasnom organizacijom.
Ulazni deo vodi ka centralnom delu stana, gde se nalazi prostrana dnevna soba, povezana sa kuhinjom, čime je stvoren otvoren i svetao ambijent.
Spavaća soba je izdvojena u mirnijem delu stana i pruža optimalan komfor, dok je kupatilo praktično pozicionirano.
Dodatnu vrednost stanu daje terasa, pogodna za odmor i boravak na otvorenom.
Zahvaljujući optimalnoj kvadraturi i rasporedu prostorija, stan je idealan za samce, parove ili kao investicija.
Za kreditne kupce je cena 1800e po kvadratu + PDV.
Uz samu nekretninu obavezna je kupovina parking mesta u iznosu od 5000e+PDV.
Cena je bez PDV-a - pravo na povraćaj PDV-a imaju kupci prvog stana.
Broj u registru posrednika: 1667.
*Sačuvaj oglas uz belešku i primaj obaveštenja o njihovom pojeftinjenju ili pojavljivanju sličnih
Prikaz stana na mapi
Obeležja kulture u blizini
- Tripod11 min
- Kuća Milutina Milankovića14 min
- Spomenik despotu Stefanu Lazareviću15 min

Škole/Fakulteti/Vrtići u blizini
- Osnovna škola (Osnovna škola Vasa Pelagić)7 min
- Srednja škola (Poljoprivredna škola PK Beograd)10 min
- Vrtić (Dečiji vrtić Mimoza)6 min
- Fakultet (Visoka škola za poslovnu ekonomiju i preduzetništvo)12 min

- Bolnica (Bolnica Sirius Medical)11 min
- Klinika (Naša poliklinika Dr Rodoljub Ristić)15 min
- Teretana (Fitness centar Artfitness)6 min
- Prodavnica (Market Dućan kod nas)6 min
- Restoran (Kafana Bitolj)9 min
- Kafana (Pivnica Hogar)50 min
- Taksi stajalište (Taxi stanica)20 min
- Autobuska stanica (Blok Sutjeska)5 min
- Banka (Poštanska štedionica)7 min
- Pošta (Pošta Beograd 26)4 min
Kontakt oglašivača
Krediti OTP banke
Saznaj više
Prikazana rata odnosi se na maksimalni period otplate. Kalkulator je informativnog karaktera.
* Nakon isteka 5 godina, prelazi se na varijabilnu kamatnu stopu


