Devetosoban stan na prodaju, Knez Mihailova, 1.390.000€, 205m²








































1.390.000 €
6.780 € / m2
- Stan u zgradi
- Centralno grejanje
- Uknjiženo
- Oglas oglašava agencija pod reg. brojem 109
- 1 lift
- 1 telefonska linija
Opis oglasa
Predstavljamo vam ekskluzivnu ponudu na najprestiznijoj poziciji u Beogradu.
Investicija kakva se retko pojavljuje na trzistu.
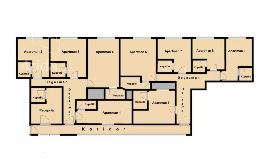
Devet moderno opremljenih apartmana(sedam koji su orijentisani ka Obilicevom
vencu i Knez Mihailovoj ulici) sa recepcijom u srcu prestonice, sa razradjenim biznis
modelom, idealnim za izdavanje „na dan“ ili transformaciju u butique hotel.
Premium mikrolokacija, ambijent kroz koji se prozimaju istorijska, kulturna, turisticka
i poslovna desavanja, kao i broj smestajnih jedinica, ovoj nekretnini omogucavaju
visok povrat investicije(ROI) i kontinuirano popunjene kapacitete.
Nepokretnost je upisana kao dve stambene jedinice, uknjizene povrsine 180m2(bez
tereta i zabelezbi), a ukupne cca 205m2 - sa pristupnom terasom koja je pripojena
grejnoj povrsini.
Prostor je kompletno renoviran i prilagodjen sadasnjoj poslovno-investicionoj
nameni.
Objekat sadrzi devet klimatizovanih apartmana sa sopstvenim kupatilima(16-28m2),
pristupne degazmane, opremljenu recepciju i centralni koridor iz koga se pristupa
svim smestajnim jedinicama.
Apartmani su kompletno opremljeni kvalitetnim komadnim namestajem i pratecom
opremom. Izdvajamo Bosal vrata, karticni prilaz/pin pad, termo i zvucnu izolaciju na
najvisem nivou, sanitarije renomiranih proizvodjaca, protivpozarne detektore i zastitu,
video nadzor. Kreveti u svakoj jedinici su „custom made“ sa Serta dusecima(nivo
Hilton hotela). Dodatne pogodnosti su izvedena struja za rasvetu na spoljnoj fasadi I
eksterni izvori vodosnabdevanja.
Monumentalno zdanje, poznato kao „Ruski car“, delo je srpskih arhitekata Petra
Popovica i Dragise Brasovana(gradjeno od 1922.-1926.godine). Predstavlja pravo
remek delo medjuratne epohe Beograda i jedan je od simbola glavnog grada.
Kupovinom ovakve nekretnine ne osigurava se samo prilika za lukrativnu investiciju,
vec se ostvaruje i mogucnost aktivnog ocuvanja vrednog dela istorijskog nasledja.
Preporuka.
Recepcija sa kupatilom, devet apartmana sa kupatilima, degazmani, koridor. Uknjizen 4/4 Knez Mihailova -imamo slicne NEKRETNINE BEOGRAD http://www.nekretnineobradovic.rs/stan-beograd-realestate/kartica.php?id=8818
*Sačuvaj oglas uz belešku i primaj obaveštenja o njihovom pojeftinjenju ili pojavljivanju sličnih
Prikaz stana na mapi
Parkovi u blizini
- Park Vojvode Vuka4 min
- Univerzitetski park6 min
- Terazijska terasa6 min

Obeležja kulture u blizini
- Spomenik knezu Mihailu Obrenoviću3 min
- Narodno pozorište Beograd3 min
- Spomenik Petru Petroviću Njegošu4 min

Škole/Fakulteti/Vrtići u blizini
- Osnovna škola (Osnovna škola Mihailo Petrović Alas)6 min
- Srednja škola (Srednja škola za ekonomiju, pravo i administraciju EPA)5 min
- Vrtić (Dečiji vrtić Majski cvet)3 min
- Fakultet (Univerzitet u Beogradu Filozofski fakultet)3 min

- Bolnica (Specijalna bolnica Sveti vid)5 min
- Klinika (Poliklinika Endo Top)6 min
- Teretana (Balance Life Studio)5 min
- Prodavnica (Maxi Supermarket)1 min
- Restoran (Tortilla Casa Mexican Grill)1 min
- Kafana (Irish pub Gecko)1 min
- Taksi stajalište (Taxi stanica)4 min
- Autobuska stanica (Obilićev venac)1 min
- Tramvajska stanica (Dorćol /Kneginje Ljubice/)11 min
- Trolejbuska stanica (Trg republike)2 min
- Banka (Poštanska štedionica)3 min
- Pošta (Pošta Beograd 3)3 min
Kontakt oglašivača
Stambeni krediti
- Period otplate od
96 -360 meseca
- NKS 4.34%
Kombinovana kamatna stopa
- Bez troškova obrade kredita
- Odobrenje kredita do 48h
- Period otplate od
96 -360 meseca
- NKS 4.75%
EKS 5.74%
Fiksna kamatna stopa
- Bez troškova obrade kredita
stranici kreditnih kalkulatora
Keš krediti
Period otplate
13 meseci
