Troiposoban stan na prodaju, Klisa, 143.000€, 77m²








143.000 €
1.857 € / m2
- Stan u zgradi
- U izgradnji
- Prostorije: terasa
- Oglas oglašava agencija pod reg. brojem 217
- 1 parking mesto
- Godina izgradnje: 2026.
Opis oglasa
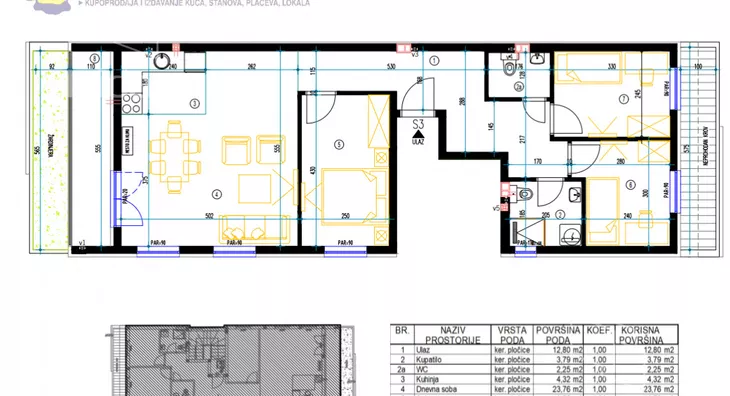
Troiposobni stanovi 77m u izgradnji na Klisi
Lokacija: Klisa (Srbija, Novi Sad, Novi Sad)
Ulica i broj: Klisa
Sobnost: Troiposoban
Kvadratura: 77m2
Stanje objekta: U izgradnji
Nivo u zgradi: 2. sprat
Dodatne informacije
Terasa, Parking, garaža, Internet, Satelitska, kablovska TV
Tekst oglasa
064... (prikaži broj telefona)
Oglašavamo prodaju troiposobnih stanova 77m na II spratu u Novom Sadu naselje Klisa u blizini "Najlon Pijace". U mirnom porodičnom delu grada grade se četiri stambena objekta Pr+Sp+Pk projektovani tako da pruže maksimalni kvalitet stanovanja.U ponudi su stanovi različitih struktura ( 24m,32m,33m 54m,77m). Najmoderniji i najkvaliteniji način gradnje sa premium materijalima činiće vaš budući dom toplim i komfornim za život. Svaki stan dobija svoje parking mesto. Grejanje je na toplotne pumpe. Rok završetka radova je kraj 2026. Cena stana je sa uračunatim PDV-om.
Za više informacija pozovite našeg agenta 064... (prikaži broj telefona) ili dođite do nas Svetozara Miletića 51.
*Sačuvaj oglas uz belešku i primaj obaveštenja o njihovom pojeftinjenju ili pojavljivanju sličnih
Prikaz stana na mapi
Obeležja kulture u blizini
- Spomen ploča Albertu Ajnštajnu i Milevi Marić13 min
- Spomenik Kralju Petru I Karađorđeviću18 min
- Vladičanski dvor18 min

Škole/Fakulteti/Vrtići u blizini
- Osnovna škola (Osnovna škola Dušan Radović)8 min
- Srednja škola (Privatna srednja škola Sveti Nikola)4 min
- Vrtić (Dečiji vrtić Skočko Hop)7 min
- Fakultet (Fakultet za pravne i poslovne studije Dr Lazar Vrkatić)13 min

- Bolnica (Specijalna bolnica za bolesti zavisnosti Dr Boro Lazić)10 min
- Klinika (Poliklinika Uromedica NS)14 min
- Teretana (Fitness centar Mega Gym Novi Sad)13 min
- Prodavnica (Mikromarket)12 min
- Restoran (Restoran Surabaya)22 min
- Kafana (Kafanica Dobro mesto)30 min
- Taksi stajalište (Novus taxi)43 min
- Autobuska stanica (Sentandrejski put - Savska)4 min
- Banka (Poštanska štedionica)7 min
- Pošta (Pošta Novi Sad 21118)12 min
Kontakt oglašivača
Krediti OTP banke
Saznaj više
Prikazana rata odnosi se na maksimalni period otplate. Kalkulator je informativnog karaktera.
* Nakon isteka 5 godina, prelazi se na varijabilnu kamatnu stopu


