Šestosoban stan na prodaju, Otokara Keršovanija, 227.850€, 147m²
















227.850 €
1.550 € / m2
- Stan u zgradi
- Grejanje na gas
- Luksuzno
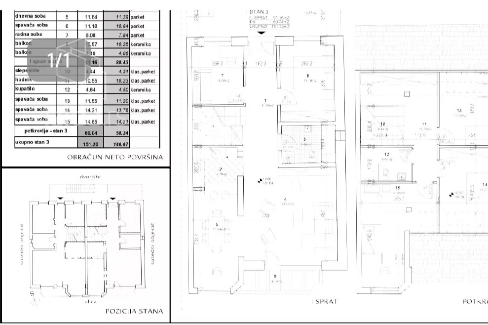
- Prostorije: kupatila (2), kuhinja, terase (2)
- Opremljenost: Prazno - internet
- Pogled na: ulicu, dvorište
- Uknjiženo
- Hitna prodaja
- Kupovina direktno od vlasnika
- 1 garažno mesto, garaža u sklopu zgrade
- 4 parking mesta, parking u dvorištu zgrade
- Godina izgradnje: 2025.
- Zgrada poseduje: dvorište, alarm, video nadzor
- Tip interneta: optički
- Kablovska
- 1 telefonska linija
- Autobuske linije: 1
Opis oglasa
Najbolja opcija koja spaja kuću i stan! Ovaj izuzetan porodični stan, smešten u mirnom delu Klise, nudi savršen spoj udobnosti, funkcionalnosti i privatnosti, idealan za život porodice. Stan je dvostrano orjentisan, sa spavaćim sobama prema dvorištu što obezbeđuje mir i udobnost. Takođe investitor nudi mogućnost da se dogovori uređenje enterijera po želji kupca. Raspored je pažljivo osmišljen, sa prostranim dnevnim boravkom koji je savršen za okupljanja i opuštanje. Jedna od ključnih prednosti ovog stana je obezbeđen parking prostor, kao i privatna garaža, što je izuzetno praktično u današnje vreme i rešava sve brige oko parkiranja. Pravi dragulj ove nekretnine je prostrano i lepo uređeno dvorište. Idealno je za dečiju igru, popodnevni odmor uz kafu ili druženje sa prijateljima i porodicom uz roštilj. Dvorište pruža privatnost i mir, stvarajući oazu za opuštanje daleko od gradske vreve. Posebno bi istakli niske mesečne troškove, obzirom da je grejanje podno na gas i plaća se samo tokom grejne sezone. Lokacija na Klisi nudi mirno okruženje sa lakim pristupom svim bitnim sadržajima kao i centru grada – u blizini se nalaze prodavnice, škole, vrtići i gradski prevoz, što ga čini idealnim mestom za porodični život. Za više informacija pozovite.
*Sačuvaj oglas uz belešku i primaj obaveštenja o njihovom pojeftinjenju ili pojavljivanju sličnih
Prikaz stana na mapi
Parkovi u blizini
- Železnički park39 min

Obeležja kulture u blizini
- Spomen ploča Albertu Ajnštajnu i Milevi Marić10 min
- Spomenik Kralju Petru I Karađorđeviću14 min
- Vladičanski dvor14 min

Škole/Fakulteti/Vrtići u blizini
- Osnovna škola (Osnovna škola Dušan Radović)6 min
- Srednja škola (Privatna srednja škola Sveti Nikola)6 min
- Vrtić (Dečiji vrtić Bubamara)5 min
- Fakultet (Univerzitet u Novom Sadu Akademija umetnosti)13 min

- Bolnica (Specijalna bolnica za bolesti zavisnosti Dr Boro Lazić)6 min
- Klinika (Poliklinika Uromedica NS)11 min
- Teretana (Fitness centar Mega Gym Novi Sad)8 min
- Prodavnica (Mikromarket)2 min
- Restoran (Restoran Surabaya)7 min
- Kafana (Kafanica Dobro mesto)15 min
- Taksi stajalište (Novus taxi)27 min
- Autobuska stanica (Sentandrejski put - Otokara Keršovanija)1 min
- Banka (Poštanska štedionica)6 min
- Pošta (Pošta Novi Sad 21118)6 min
Kontakt oglašivača

Krediti OTP banke
Saznaj više
Prikazana rata odnosi se na maksimalni period otplate. Kalkulator je informativnog karaktera.
* Nakon isteka 5 godina, prelazi se na varijabilnu kamatnu stopu

