Jednoiposoban stan na prodaju, Šumadijska, 87.550€, 36m²














87.550 €
2.432 € / m2
- Stan u zgradi
- Centralno grejanje
- Uknjiženo
- Oglas oglašava agencija pod reg. brojem 951
- 1 lift
Opis oglasa
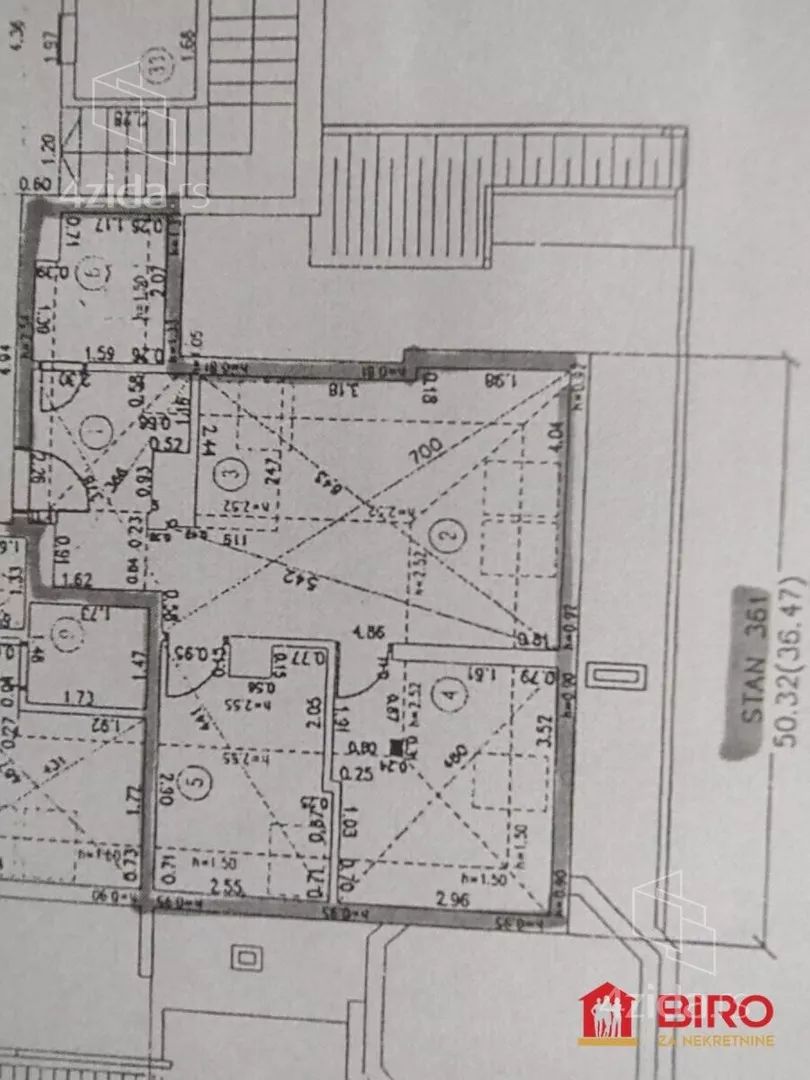
PRODAJA STANA – POTKROVLJE, BLIZINA KEJA – NOVI SAD
Na prodaju funkcionalan stan u potkrovlju zgrade sa liftom, u neposrednoj blizini keja u Novi Sad.
Uknjižena površina stana iznosi 36m², dok je stvarna površina u podu 54m², što pruža dodatni komfor i mogućnost odlične organizacije prostora. Stan je lepo raspoređen i maksimalno iskorišćen.
Struktura:
Dve spavaće sobe
Dnevna soba sa trpezarijom i kuhinjom (open space koncept)
Kupatilo
Stan nikada nije useljavan i nalazi se u izvornom stanju, što novim vlasnicima daje priliku da ga urede prema sopstvenim željama i potrebama. Uz minimalna ulaganja, može postati savršen dom ili odlična investicija za izdavanje, zahvaljujući atraktivnoj lokaciji.
Odlična prilika za kupce koji žele nekretninu sa potencijalom na jednoj od najtraženijih lokacija u gradu.
Cena: 87.550 €
Agencijska šifra: 1013133
Kontakt telefoni: 065... (prikaži broj telefona) , 065... (prikaži broj telefona)
Za više informacija i zakazivanje razgledanja, pozovite.
(Biro za nekretnine d.o.o., Novi Sad, upisan u Reg. posrednika br. 951)
*Sačuvaj oglas uz belešku i primaj obaveštenja o njihovom pojeftinjenju ili pojavljivanju sličnih
Prikaz stana na mapi
Parkovi u blizini
- Park srpsko-azerbejdžanskog prijateljstva5 min
- Dunavski park9 min
- Molinarijev park25 min

Obeležja kulture u blizini
- Spomenik Kralju Petru I Karađorđeviću4 min
- Spomenik Jovanu Jovanoviću Zmaju6 min
- Vladičanski dvor6 min

Škole/Fakulteti/Vrtići u blizini
- Osnovna škola (Osnovna škola Đura Daničić)5 min
- Srednja škola (Saobraćajna škola Pinki)1 min
- Vrtić (Dečiji vrtić Sea Star)3 min
- Fakultet (Univerzitet u Novom Sadu Akademija umetnosti)8 min

- Bolnica (Bolnica za bolesti zavisnosti Vita)3 min
- Klinika (Poliklinika Novakov)5 min
- Teretana (Teretana Energym)2 min
- Prodavnica (Aman market)manje od 1 min
- Restoran (Restoran Project 72 Wine & Deli)3 min
- Kafana (Kafana Rujna zora)3 min
- Taksi stajalište (MB Taxi)22 min
- Autobuska stanica (Marka Miljanova - Kosovska)4 min
- Banka (OTP banka)8 min
- Pošta (Pošta Novi Sad 21111)6 min
Kontakt oglašivača
Krediti OTP banke
Saznaj više
Prikazana rata odnosi se na maksimalni period otplate. Kalkulator je informativnog karaktera.
* Nakon isteka 5 godina, prelazi se na varijabilnu kamatnu stopu


