Četvorosoban stan na prodaju, Kalenić, 610.000€, 122m²








610.000 €
5.000 € / m2
- Podno grejanje
- Novo
- Prostorije: terasa
- Opremljenost: Prazno - internet, klima
- Uknjiženo
- Oglas oglašava agencija pod reg. brojem 1873
- 1 garažno mesto
- 1 lift
- Kablovska
- 1 telefonska linija
Opis oglasa
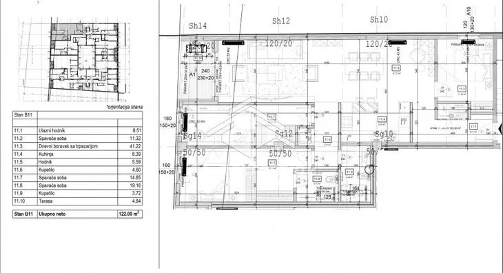
Prodaja: Luksuzan Četvorosoban Stan - 122m2
U prilici smo da vam ponudimo prostran stan od 122m2 koji obuhvata:
- Dnevni boravak povezan sa trpezarijom i kuhinjom
- Tri spavaće sobe
- Dva kupatila
- Terasu
- Mogućnost kupovine garažnog mesta uz doplatu
O Zgradi
Ovaj izvanredan arhitektonski projekat savršeno se uklapa u okolinu, sa fasadom koja kombinuje ciglu, kamen i staklo, pružajući jedinstven i elegantan vizuelni identitet.
Unutrašnjost je pažljivo osmišljena sa naglaskom na prostranost, a veliki foaje deli objekat na dve lamele, poboljšavajući funkcionalnost prostora. U središtu zgrade nalazi se atrijumski vrt površine 130m2, koji stanarima pruža mirnu oazu za opuštanje.
Karakteristike Stana i Zgrade:
- Sprat: 3/5
- Podno grejanje (toplotna pumpa)
- Aluminijumska stolarija
- Podovi: Tarkett
- Energetski pasoš dostupan
- Dva lifta
- Kalorimetar
- Godina izgradnje: 2024.
- Mogućnost kupovine parking mesta
Inspiracija - Njujorška Cartier Zgrada
Zgrada u Lozničkoj ulici osmišljena je po uzoru na čuvenu Cartier zgradu u Njujorku, koja spaja tradicionalnu englesku i savremenu njujoršku arhitekturu. Građena od najkvalitetnije cigle, prirodnog kamena i stakla, zgrada je okružena zelenilom, pružajući stanarima mirnu oazu u srcu Vračara, u blizini poznate Mileševske ulice.
Za više informacija ili zakazivanje razgledanja, kontaktirajte nas.
Agencijska provizija iznosi 2% od kupoprodajne cene.
ID oglasa: 43225
*Sačuvaj oglas uz belešku i primaj obaveštenja o njihovom pojeftinjenju ili pojavljivanju sličnih
Prikaz stana na mapi
Parkovi u blizini
- Park Ćirila i Metodija9 min
- Park vojvode Petra Bojovića9 min
- Čuburski park12 min

Obeležja kulture u blizini
- Spomenik Vuku Karadžiću4 min
- Spomenik Puškinu4 min
- Spomenik Ćirilu i Metodiju9 min

Škole/Fakulteti/Vrtići u blizini
- Osnovna škola (Osnovna škola Jovan Miodragović)5 min
- Srednja škola (Srednja škola Arhimed)5 min
- Vrtić (Dečiji vrtić Diznilend)2 min
- Fakultet (Univerzitet u Beogradu Geografski fakultet)5 min

- Bolnica (Specijalna bolnica za oftalmologiju Miloš Klinika)3 min
- Klinika (Poliklinika Panacea)5 min
- Teretana (Fitness studio Be fit)2 min
- Prodavnica (IDEA)2 min
- Restoran (Bar Loznička 11)manje od 1 min
- Kafana (Pab Pivodrom)3 min
- Taksi stajalište (Taxi stanica)5 min
- Autobuska stanica (Pijaca „Kalenić“)7 min
- Tramvajska stanica (Vukov spomenik)10 min
- Trolejbuska stanica (Vojvode Dragomira)7 min
- Banka (Addiko Bank)7 min
- Pošta (Pošta Beograd 34)5 min
Kontakt oglašivača
Stambeni krediti

- Period otplate od
96 -360 meseca
- NKS 4.75%
EKS 5.74%
Fiksna kamatna stopa
- Bez troškova obrade kredita
stranici kreditnih kalkulatora
Keš krediti
Period otplate
13 meseci