Četvorosoban stan na prodaju, Kalenić, 715.000€, 131m²






715.000 €
5.458 € / m2
- Stan u zgradi
- Centralno grejanje
- Novo
- Prostorije: terasa
- Opremljenost: Prazno - internet, interfon, kanalizacija
- Uknjiženo
- Oglas oglašava agencija pod reg. brojem 1152
- 1 garažno mesto
- 1 lift
- Kanalizacija
- Godina izgradnje: 2024.
- Kablovska
- 1 telefonska linija
Opis oglasa
U prilici smo da vam ponudimo veoma kvalitetan objekat u modernom arhitektonskom stilu, koji se nalazi u strogom centru grada. Realizovan je u urbanom skladu forme i gradskog života, sagrađen od najkvalitetnijih materijala koje market može da ponudi. Stanovi su veoma prostrani i glamurozni, fasada je bazirana na kamenu i fasadnoj cigli. Ulaz u zgradu je popločan mermerom, interfon je sa video nadzorom. U svakom stanu, kao i u celom objektu, stepenište je popločano granitom, kao i unutrašnjost zgrade. Objekat je opremljen hidrauličnim, bešumnim liftovima koji povezuju garaže sa stanovima. Zvučna izolacija je urađena u svakom stanu, visina plafona je 2,80m, a stanovi su sa klima uređajima, sanitarijama prve klase stranih renomiranih proizvođača, Bosal pancir ulaznim vratima, dok je spoljna stolarija kombinacija aluminijuma i drveta. Bojenje enterijera sa kvalitetnim disperzionim bojama je po izboru kupca.
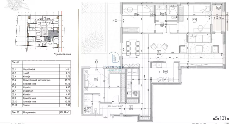
Stan se sastoji od dnevnog boravka sa trpezarijom, kuhinje, tri spavaće sobe, dva kupatila, toaleta, ulaznog hodnika, degažmana, terase
Lepota ovog stana je u tome što odaje ambijent porodične idile i svojim konceptom omogućava ugodan život u njemu.
Postoji mogućnost kupovine garažnog mesta u objektu.
Agencijska provizija iznosi 2% od kupoprodajne cene.
Kontaktirajte nas za više informacija.
*Sačuvaj oglas uz belešku i primaj obaveštenja o njihovom pojeftinjenju ili pojavljivanju sličnih
Prikaz stana na mapi
Parkovi u blizini
- Park vojvode Petra Bojovića2 min
- Park Mike Oklopa8 min
- Park Ćirila i Metodija9 min

Obeležja kulture u blizini
- Spomenik vojvodi Petru Bojoviću3 min
- Kuća vojvode Petra Bojovića3 min
- Kuća pukovnika Elezovića4 min

Škole/Fakulteti/Vrtići u blizini
- Osnovna škola (Osnovna škola Jovan Miodragović)5 min
- Srednja škola (Četrnaesta beogradska gimnazija)4 min
- Vrtić (Dečiji vrtić Kućica)4 min
- Fakultet (Centar Osteopatija)3 min

- Bolnica (Eterna Medical System)3 min
- Klinika (Poliklinika Millenium Medic)2 min
- Teretana (Fitness centar Fitness Tribe)2 min
- Prodavnica (Mali Kalenić - voće i povrće)1 min
- Restoran (Restoran Bella Via)2 min
- Kafana (Pejton Pub)5 min
- Taksi stajalište (Taxi stanica)3 min
- Autobuska stanica (GO Vračar)2 min
- Tramvajska stanica (Vukov spomenik)9 min
- Trolejbuska stanica (Katanićeva)4 min
- Banka (Eurobank Direktna)2 min
- Pošta (Pošta Beograd 20)3 min
Kontakt oglašivača
Stambeni krediti

- Period otplate od
96 -360 meseca
- NKS 4.75%
EKS 5.74%
Fiksna kamatna stopa
- Bez troškova obrade kredita
stranici kreditnih kalkulatora
Keš krediti
Period otplate
13 meseci