Dvosoban stan na prodaju, Južni Telep, 112.030€, 42m²












112.030 €
2.667 € / m2
- Stan u zgradi
- Etažno grejanje
- U izgradnji
- Prostorije: terasa
- Oglas oglašava agencija pod reg. brojem 1949
- 1 lift
- Godina izgradnje: 2027.
Opis oglasa
NEKRETNINE NOVI SAD - ID OGLASA 1002993
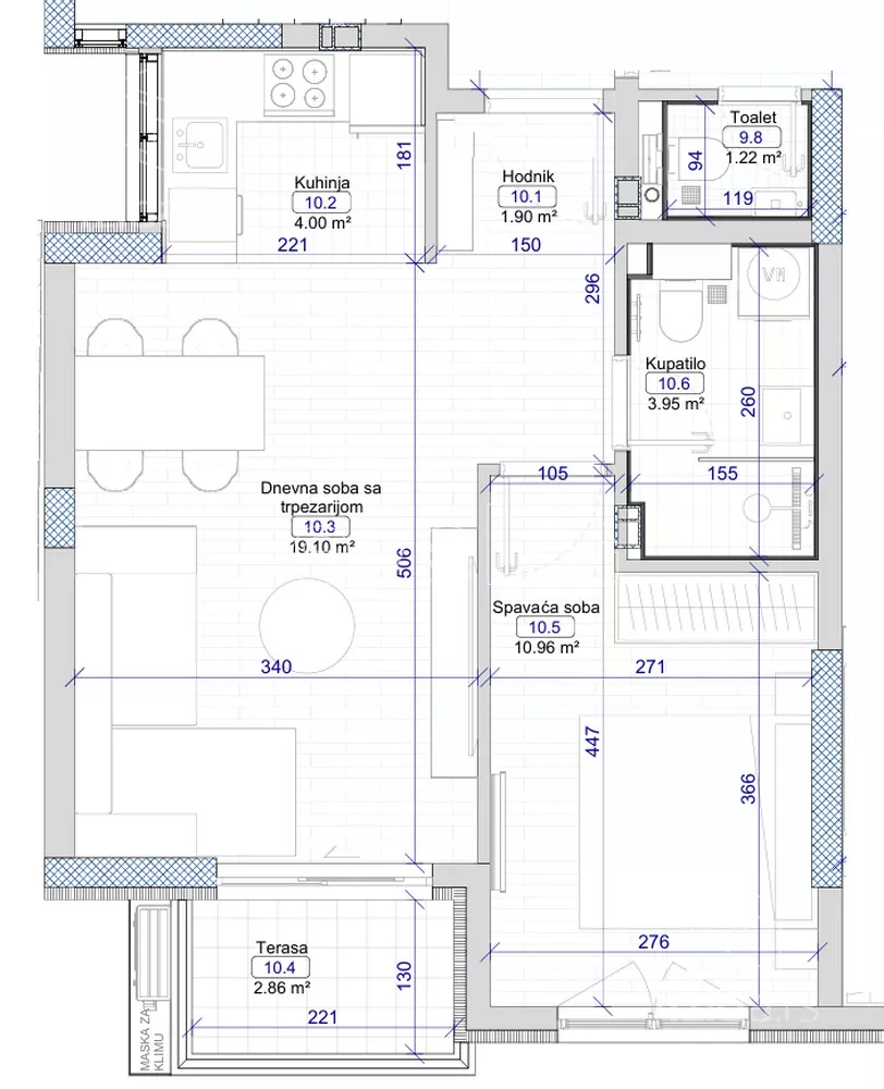
TELEP - JUŽNI, DVOSOBAN STAN 42 m2
LEVEL PROPERTY, agencija za
nekretnine Vam predstavlja prodaju dvosobnog stana u kvalitetnoj
novogradnji sa rokom završetka jesen 2027.god. na Telepu. Drugi sprat, lift, terasa,
grejanje centralno na gas sa kalorimetrima i razvedenim podnim grejanjem. Mogućnost
kupovine parking mesta u dvorištu zgrade.
Poštovani klijenti, u skladu sa Zakonom o posredovanju u prometu i zakupu nepokretnosti i Opštim uslovima poslovanja posrednika, prezentacija i razgledanje predmetne nepokretnosti kao i svih nekretnina iz agencijske ponude, moguće je samo uz potpisan Ugovor o posredovanju. Kupac je u obavezi da, u slučaju zaključenja kupoprodaje, isplati posredniku ugovorenu posredničku naknadu- agencijsku proviziju u ugovorenom iznosu, a u skladu sa Ugovorom o posredovanju. Vaš agent za nekretnine: Nenad Dalmacija, licenca broj 2043, mob: 065... (prikaži broj telefona) .Vaša agencija za nekretnine LEVEL PROPERTY, registar posrednika broj 1949, Novi Sad, Dimitrija Tucovića 1, lokal broj 3, tel: 021... (prikaži broj telefona) .
*Sačuvaj oglas uz belešku i primaj obaveštenja o njihovom pojeftinjenju ili pojavljivanju sličnih
Prikaz stana na mapi
Kontakt oglašivača
Krediti OTP banke
Saznaj više
Prikazana rata odnosi se na maksimalni period otplate. Kalkulator je informativnog karaktera.
* Nakon isteka 5 godina, prelazi se na varijabilnu kamatnu stopu






















