Dvosoban stan na prodaju, Jajinci, 125.000€, 49m²


















125.000 €
2.551 € / m2
- Centralno grejanje
- Novo
- Prostorije: kupatilo, terasa
- Opremljenost: Prazno - interfon
- Oglas oglašava agencija pod reg. brojem 2027
- 1 garažno mesto
Opis oglasa
Na prodaju stan u luksuznoj novogradnji – Vila Cerije, opština Banjica, potez ka Jajincima.
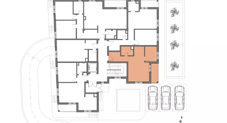
Vila Cerije je mala, intimna stambena zgrada sa svega 15 ekskluzivnih stanova, smeštena u mirnom i zelenilom okruženom delu Banjice. Ovaj sofisticirani kompleks spaja udobnost, privatnost i moderan dizajn, pružajući vrhunski kvalitet stanovanja za one koji žele miran i kvalitetan život.
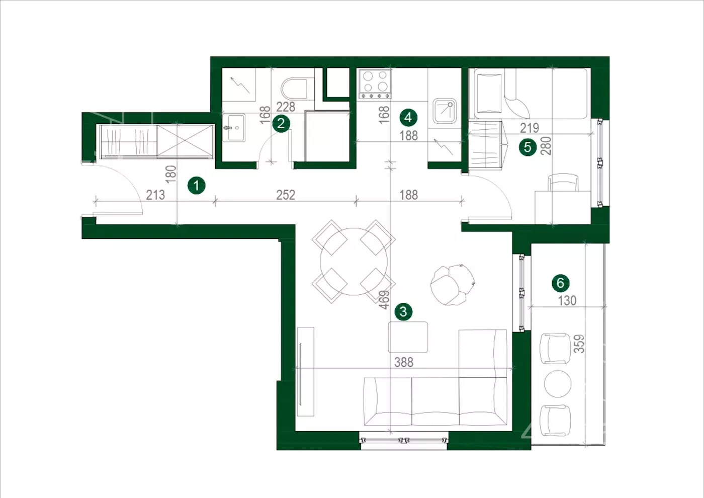
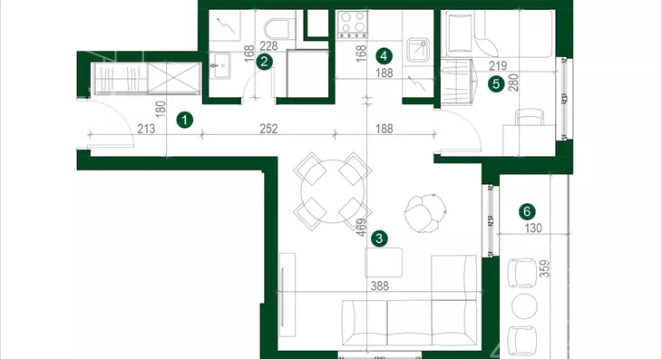
U ponudi je stan površine 49,21 m², na drugom spratu, sa funkcionalnim rasporedom koji čine pretprostor, dnevna soba sa trpezarijom, kuhinja, kupatilo, spavaća soba i terasa. Savremena gradnja, pažljivo birani materijali i završne obrade, podno grejanje i pametna rešenja osiguravaju maksimalnu udobnost i dugoročnu vrednost.
➡️ Mogućnost privatnog dvorišta uz doplatu za stan koji se nalazi u prizemlju.
➡️ Identičan stan iste kvadrature i rasporeda dostupan je i na drugom spratu.
U oglašenu cenu stana uračunat je PDV. Isključivo keš kupci. Kupac stana je oslobođen plaćanja agencijske provizije.
Planirano useljenje je u januaru 2026. godine.
Investitor SAAS Construction poznat je po vrhunskoj stručnosti, preciznosti i pouzdanosti u izvođenju, što garantuje sigurnost i kvalitet svake faze projekta.
*Sačuvaj oglas uz belešku i primaj obaveštenja o njihovom pojeftinjenju ili pojavljivanju sličnih
Prikaz stana na mapi
Parkovi u blizini
- Miljakovačka šuma35 min

Obeležja kulture u blizini
- Stara mehana u Kumodražu5 min
- Rodna kuća vojvode Stepe Stepanovića9 min
- Spomen park Jajinci9 min

Škole/Fakulteti/Vrtići u blizini
- Osnovna škola (Osnovna škola Jajinci)9 min
- Srednja škola (Srednja škola Vasa Stajić)13 min
- Vrtić (Predškolska ustanova Cvetić Srećko)4 min
- Fakultet (Univerzitet u Beogradu Farmaceutski fakultet)8 min

- Bolnica (Hirurška bolnica Aesculap)6 min
- Klinika (Poliklinika Nera)11 min
- Teretana (Fitness studio Fit On)9 min
- Prodavnica (Gomex market)5 min
- Restoran (Restoran Oaza)12 min
- Kafana (Kafana Tores)28 min
- Taksi stajalište (Taxi stanica)30 min
- Autobuska stanica (Milutina Miljkovića)3 min
- Trolejbuska stanica (Banjica 2)31 min
- Banka (Eurobank Direktna)11 min
- Pošta (Pošta Beograd 89)14 min
Kontakt oglašivača
Stambeni krediti

- Period otplate od
96 -360 meseca
- NKS 4.75%
EKS 5.74%
Fiksna kamatna stopa
- Bez troškova obrade kredita
stranici kreditnih kalkulatora
Keš krediti
Period otplate
13 meseci
