Jednoiposoban stan na prodaju, Mačvanska, 151.000€, 38m²



































151.000 €
3.974 € / m2
- Grejanje na TA peć
- Uobičajeno stanje
- Prostorije: kupatilo
- Opremljenost: Prazno - interfon
- Uknjiženo
- Oglas oglašava agencija pod reg. brojem 2064
- Zgrada poseduje: podrum
Opis oglasa
Na jednoj od najtraženijih lokacija u gradu, u Mačvanskoj ulici, na svega 150 m od Hrama Svetog Save, prodaje se potpuno samostalan stan koji funkcioniše kao mala kuća — idealno za one koji traže mir i privatnost u srcu Vračara.
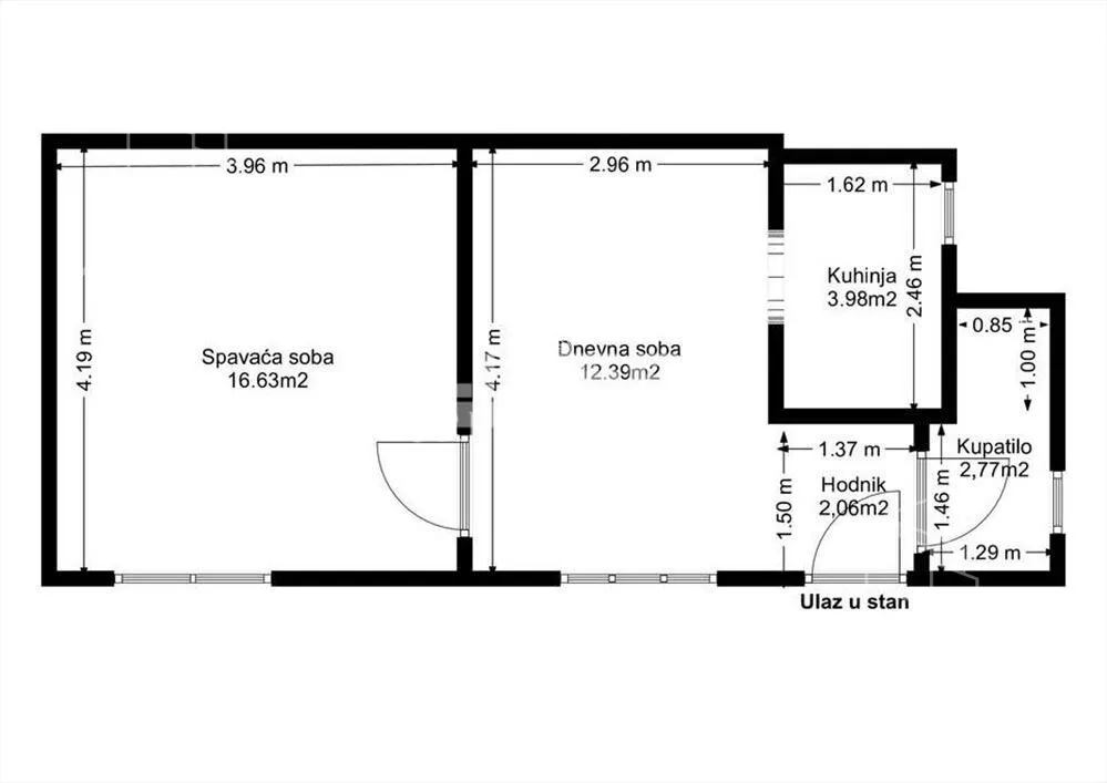
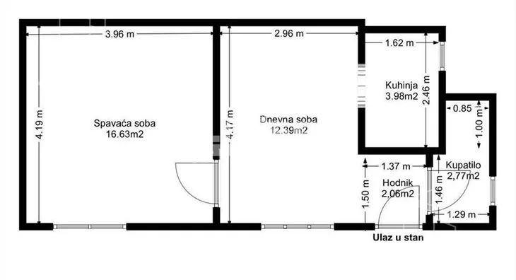
Stan je površine 38 m², nalazi se u prizemlju, a uz njega dolazi velika terasa od 43 m², koja se nalazi direktno iznad stana, a do koje se dolazi spoljašnjim stepenicama. Stan ima i sopstveno dvorište ispred ulaza.
Raspored:
Predsoblje
Odvojena spavaća soba
Dnevni boravak sa kuhinjom
Kupatilo
Dvorište
Terasa
Karakteristike:
Odlična lokacija — Hram, parkovi, škola, prevoz, prodavnice
Renovirano, odmah useljivo
Grejanje na struju – niski mesečni troškovi
Infostan: oko 1.000 RSD
Mirno okruženje
Ovaj stan predstavlja odličnu alternativu klasičnom stanovanju na Vračaru, jer nudi udobnost stana, ali i komfor koji se obično dobija samo uz kuću.
Urban Nest Real Estate d.o.o. Beograd.
Reg. br. 2064
064... (prikaži broj telefona)
*Sačuvaj oglas uz belešku i primaj obaveštenja o njihovom pojeftinjenju ili pojavljivanju sličnih
Prikaz stana na mapi
Parkovi u blizini
- Čuburski park3 min
- Svetosavski plato7 min
- Park mira Jelena Šantić9 min

Obeležja kulture u blizini
- Spomenik Petru Kočiću5 min
- Hram Svetog Save8 min
- Spomenik Svetom Savi7 min

Škole/Fakulteti/Vrtići u blizini
- Osnovna škola (Osnovna škola Jovan Miodragović)7 min
- Srednja škola (Prva škola integrativne medicine Alvita Plus)6 min
- Vrtić (Dečiji vrtić Beli zeka)5 min
- Fakultet (Univerzitet u Beogradu Stomatološki fakultet)5 min

- Bolnica (Specijalna hirurška bolnica Hirurgija Dr Drašković)8 min
- Klinika (Poliklinika InterTim)7 min
- Teretana (Fitness centar Kick & fit)3 min
- Prodavnica (Soulfood market)manje od 1 min
- Restoran (Caffe restoran Baltazar)2 min
- Kafana (Pejton Pub)5 min
- Taksi stajalište (Taxi stanica)2 min
- Autobuska stanica (Pijaca „Kalenić“)6 min
- Tramvajska stanica (Karađorđev Park)10 min
- Trolejbuska stanica (Mačvanska)2 min
- Banka (Erste Bank)4 min
- Pošta (Pošta Beograd 20)7 min
Kontakt oglašivača
Krediti OTP banke
Saznaj više
Prikazana rata odnosi se na maksimalni period otplate. Kalkulator je informativnog karaktera.
* Nakon isteka 5 godina, prelazi se na varijabilnu kamatnu stopu

