Petosoban stan na prodaju, Braničevska, 1.181.900€, 223m²
OBIĐI 3D TURU










































1.181.900 €
5.300 € / m2
- Penthaus
- Novo
- Prostorije: terasa
- Opremljenost: Prazno - kanalizacija
- Oglas oglašava agencija pod reg. brojem 167
- 1 lift
- Kanalizacija
- Godina izgradnje: 2025.
Opis oglasa
Vračar, Hram Svetog Save - Braničevska
5.0, 223m2, terasa, 3/4, podno grejanje, toplotne pumpe, lift
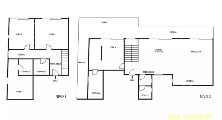
U ponudi penthouse na trećoj etaži i povučenom spratu u luksuznoj novogradnji, svetao i dvostrano orijetisan. Može se koristiti kao dva stana sa posebnim ulazima.
Moderan i funkcionalan koncept stana po principu open space, sastoji se od dva nivoa.
Donji nivo: hodnik, master spavaća soba (sa kupatilom), dve spavaće sobe, kupatilo.
Gornji nivo: dnevni boravak sa trpezarijom i kuhinjom, toalet, spavaća soba sa kupatilom, terasa.
Sistem grejanja i hlađenja na toplotne pumpe i podno grejanje. Završen tehnički prijem.
Mogućnost kupovine garažnog mesta po ceni od 36.000€ + PDV.
U cenu stana je uračunat PDV.
Građevinska dozvola.
Odmah useljiv.
Agencijska provizija 2%
Agent Lazar Karadžić: 065... (prikaži broj telefona) (licenca br. 3343)
*Sačuvaj oglas uz belešku i primaj obaveštenja o njihovom pojeftinjenju ili pojavljivanju sličnih
Prikaz stana na mapi
Parkovi u blizini
- Park mira Jelena Šantić5 min
- Karađorđev park5 min
- Svetosavski plato9 min

Obeležja kulture u blizini
- Kuća Flašar4 min
- Spomenik Internacionalnim brigadama4 min
- Spomenik žrtvama bombardovanja Beograda4 min

Škole/Fakulteti/Vrtići u blizini
- Osnovna škola (Privatna osnovna škola Vladislav Petković Dis)6 min
- Srednja škola (Prva škola integrativne medicine Alvita Plus)5 min
- Vrtić (Dečiji vrtić Lepa Vitas)manje od 1 min
- Fakultet (Univerzitet u Beogradu Stomatološki fakultet)4 min

- Bolnica (Specijalna bolnica za dermatovenerologiju Ioanna)3 min
- Klinika (Poliklinika Medikom)1 min
- Teretana (BodyForce Fitness&Health Center)1 min
- Prodavnica (Shop&Go)1 min
- Restoran (Food & bar Crveni rak)1 min
- Kafana (Tatar Bar)2 min
- Taksi stajalište (Taxi stanica)4 min
- Autobuska stanica (Neimar)4 min
- Tramvajska stanica (Karađorđev Park)9 min
- Trolejbuska stanica (Mačvanska)11 min
- Banka (Banca Intesa)10 min
- Pošta (Pošta Beograd 23)6 min
Kontakt oglašivača
Stambeni krediti

- Period otplate od
96 -360 meseca
- NKS 4.75%
EKS 5.74%
Fiksna kamatna stopa
- Bez troškova obrade kredita
stranici kreditnih kalkulatora
Keš krediti
Period otplate
13 meseci



















