Četvorosoban stan na prodaju, Patrijarha Varnave, 1.188.000€, 180m²
Beograd, Vračar, Neimar, Hram Svetog Save
Prikaži mapuŠifra oglasa: 4zida-12249Oglas ažuriran: pre 13 sati




1.188.000 €
6.600 € / m2
180 m²
4 sobe
1/6 spratova
- Stan u zgradi
- Centralno grejanje
- Luksuzno
- Prostorije: terasa
- Uknjiženo
- Oglas oglašava agencija pod reg. brojem 380
- 1 lift
Opis oglasa
Uknjižena extra lux zgrada ,sa izuzetnom mogućnošću da se finalni radovi u stanovima zavrsavaju po zelji kupca, kupac bira materijale bez limita u ceni.
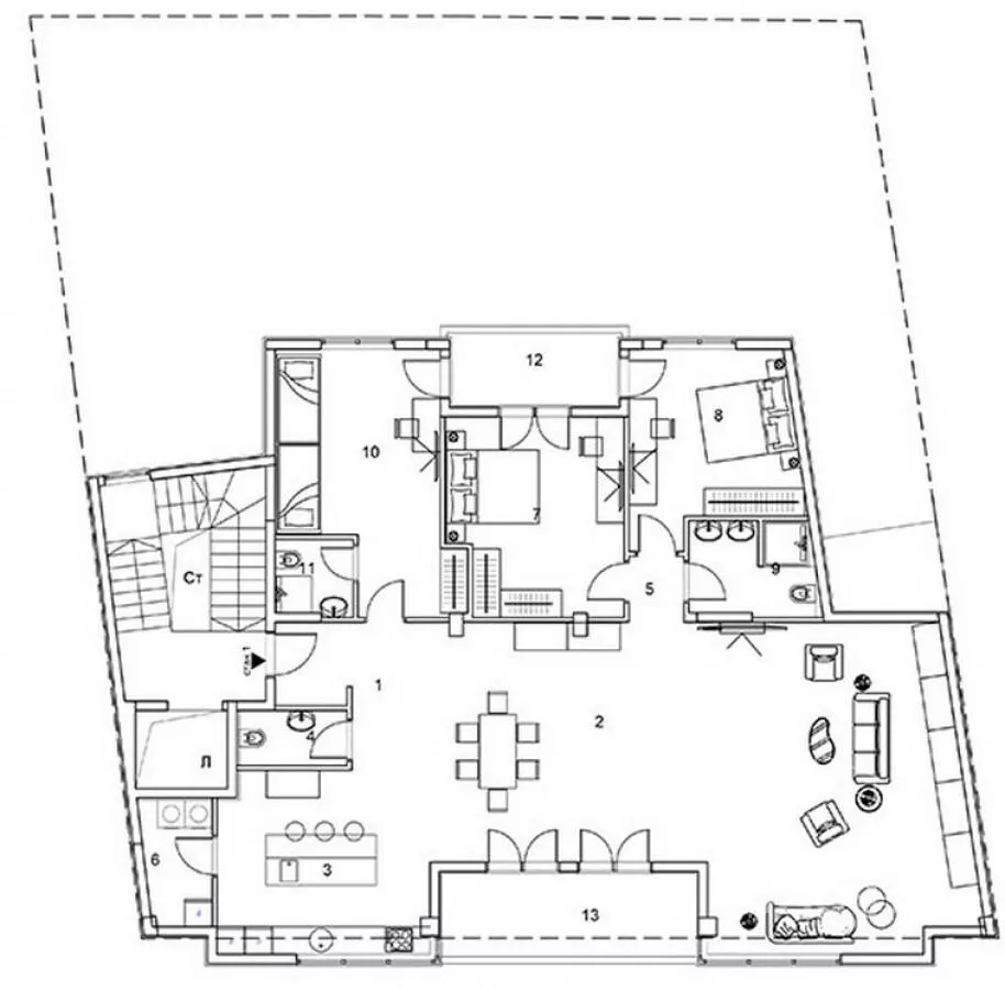
Stan čini dnevni boravak, trpezarija, 3 spavace sobe, kuhinja, ostava/perionica, 2 kupatila, WC, 2 terase. Centralno grejanje sa kalorimetrima, po potrošnji.
U cenu stana je uračunat PDV. Retko u ponudi. Ag. ponuda 2%.
*Sačuvaj oglas uz belešku i primaj obaveštenja o njihovom pojeftinjenju ili pojavljivanju sličnih
Prikaz stana na mapi
Pogledaj sve stanove na prodaju na samo 15min hoda od Hrama Svetog Save
Kontakt oglašivača
▾Reklama▾
Stambeni krediti

- Period otplate od
96 -360 meseca
- NKS 4.75%
EKS 5.74%
Fiksna kamatna stopa
- Bez troškova obrade kredita
384 € / mesečno
Saznaj višePogledaj detaljnije i menjaj uslove kreditiranja na
stranici kreditnih kalkulatora
stranici kreditnih kalkulatora
Keš krediti
RSDIznos kredita
Period otplate
13 meseciOsiguranje domaćinstva online
Osiguraj svoje domaćinstvo u slučaju požara...

