Četvorosoban stan na prodaju, Patrijarha Varnave, 1.188.000€, 180m²
Beograd, Vračar, Neimar, Hram Svetog Save
Prikaži mapuŠifra oglasa: 4zida-12143Oglas ažuriran: pre 2 sata




1.188.000 €
6.600 € / m2
180 m²
4 sobe
1/6 spratova
- Stan u zgradi
- Centralno grejanje
- Luksuzno
- Prostorije: terasa
- Uknjiženo
- Oglas oglašava agencija pod reg. brojem 380
- 1 lift
Opis oglasa
Uknjižena extra lux zgrada ,sa izuzetnom mogućnošću da se finalni radovi u stanovima zavrsavaju po zelji kupca, kupac bira materijale bez limita u ceni.
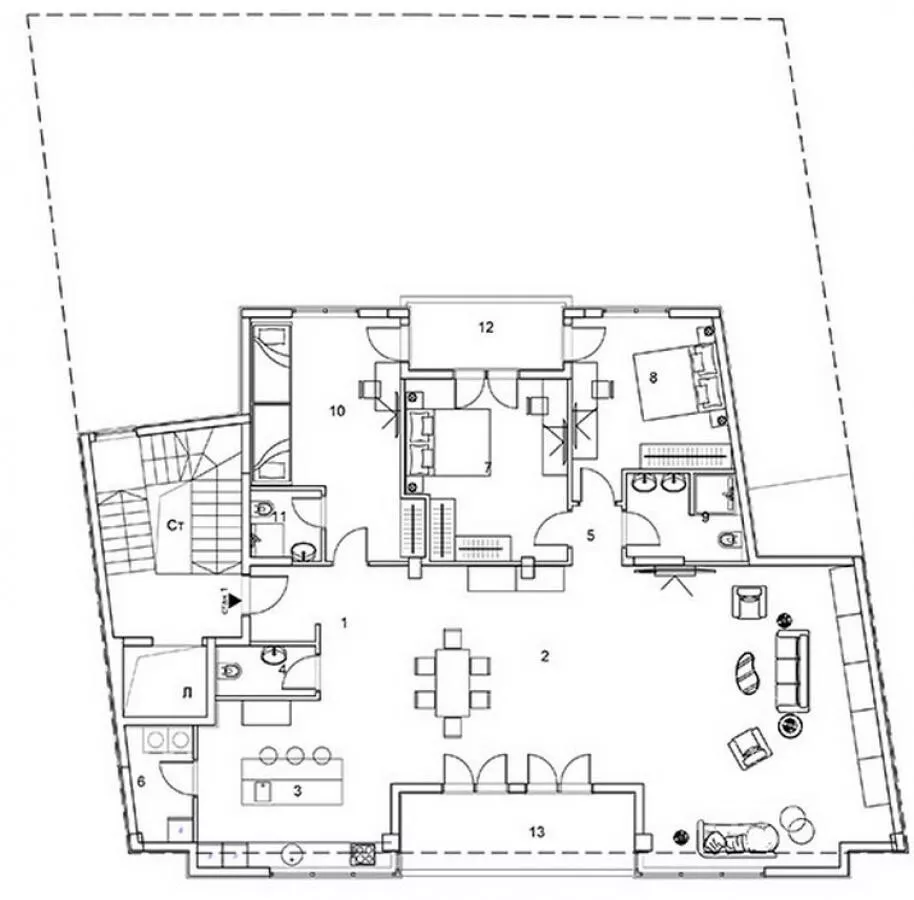
Stan čini dnevni boravak, trpezarija, 3 spavace sobe, kuhinja, ostava/perionica, 2 kupatila, WC, 2 terase. Centralno grejanje sa kalorimetrima, po potrošnji.
U cenu stana je uračunat PDV. Retko u ponudi. Ag. ponuda 2%.
*Sačuvaj oglas uz belešku i primaj obaveštenja o njihovom pojeftinjenju ili pojavljivanju sličnih
Prikaz stana na mapi
Pogledaj sve stanove na prodaju na samo 15min hoda od Hrama Svetog Save
Parkovi u blizini
- Čuburski park5 min
- Svetosavski plato5 min
- Park mira Jelena Šantić9 min

Obeležja kulture u blizini
- Čuburska avlija iznad potoka 1928.4 min
- Hram Svetog Save6 min
- Spomenik Svetom Savi6 min

Škole/Fakulteti/Vrtići u blizini
- Osnovna škola (Privatna osnovna škola Vladislav Petković Dis)5 min
- Srednja škola (Gimnazija Vladislav Petković Dis)5 min
- Vrtić (Dečiji vrtić Beli zeka)7 min
- Fakultet (Univerzitet u Beogradu Stomatološki fakultet)5 min

Zdravlje
- Bolnica (Specijalna hirurška bolnica Hirurgija Dr Drašković)6 min
- Klinika (Poliklinika InterTim)7 min
- Teretana (Fittpro team - centar za redukciju telesne težine)1 min
Hrana i piće
- Prodavnica (IDEA Organic)manje od 1 min
- Restoran (Restoran Ultimatum)manje od 1 min
- Kafana (Pejton Pub)7 min
Prevoz
- Taksi stajalište (Taxi stanica)3 min
- Autobuska stanica (Internacionalnih Brigada)7 min
- Tramvajska stanica (Karađorđev Park)9 min
- Trolejbuska stanica (Mačvanska)3 min
Ostale ustanove
- Banka (Banca Intesa)3 min
- Pošta (Pošta Beograd 20)6 min
Kontakt oglašivača
▾Reklama▾
Stambeni krediti

- Period otplate od
96 -360 meseca
- NKS 4.75%
EKS 5.74%
Fiksna kamatna stopa
- Bez troškova obrade kredita
1.377 € / mesečno
Saznaj višePogledaj detaljnije i menjaj uslove kreditiranja na
stranici kreditnih kalkulatora
stranici kreditnih kalkulatora
Keš krediti
RSDIznos kredita
Period otplate
13 meseciOsiguranje domaćinstva online
Osiguraj svoje domaćinstvo u slučaju požara...

