Četvorosoban stan na prodaju, Internacionalnih Brigada, 617.727€, 134m²





617.727 €
4.610 € / m2
- Stan u zgradi
- Grejanje na toplotnu pumpu
- Luksuzno
- Prostorije: kupatila (2), toalet, kuhinja, terasa
- Opremljenost: Prazno - internet, klima
- Uknjiženo
- Oglas oglašava agencija pod reg. brojem 1097
- Javni parking u zoni, javni parking van zone
- 1 lift
- Zgrada poseduje: video nadzor
- Tip interneta: optički
- Kablovska
- 1 telefonska linija
Opis oglasa
U prilici smo da vam ponudimo izuzetno luksuzan stan u novogradnji na Vračaru.
Stan je smešten na prvom spratu četvorospratne stambene zgrade sa liftom.
Položaj ove nekretnine je odličan, samo nekoliko koraka od istorijski značajnog Hrama Svetog Save.
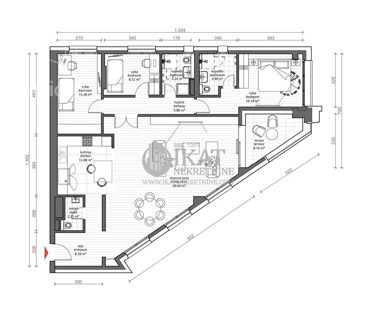
Prostrani stan se prostire na 134 km2, obuhvatajući tri spavaće sobe, dva kupatila i dodatni toalet.
Poseduje i odvojenu kuhinju kao i prostranu terasu.
Prostrani dnevni boravak, površine 50m2 sa trpezarijom, oblikovan je s ciljem da ponudi neponovljivo iskustvo udobnosti i stila.
Završni radovi u stanu odišu izuzetnim kvalitetom, sa naglaskom na inovativnim tehnološkim rešenjima.
Stanari imaju mogućnost kupovine garažnog mesta, što doprinosi dodatnom komforu u urbanom životu.
Svaki stan poseduje toplotnu pumpu koja obezbeđuje podno grejanje, dok fan coil sistem omogućava efikasno hlađenje i održavanje prijatne temperature tokom cele godine.
Dnevna soba je dosta osunčana prirodnom svetlošću zahvaljujući staklenim panelima koji se prostiru od poda do plafona, naglašavajući visinu plafona od impresivnih 2,8 metara.
Svi klasični uređaji poput klima uređaja, bojlera i radijatora su diskretno integrisani zahvaljujući naprednim tehničkim rešenjima, što rezultira nižim energetskim troškovima u poređenju sa standardnim rešenjima u novogradnji.
Sistem centralne pripreme tople vode obezbeđuje dodatni nivo komfora.
Svaka stambena jedinica podržava SMART HOME tehnologiju, omogućavajući stanarima da intuitivno kontrolišu različite aspekte svog doma.
Dodatna pogodnost uz svaki stan uključuje i ostavu, pružajući dodatni prostor za skladištenje i organizaciju.
Oprema je pažljivo odabrana od najuglednijih proizvođača.
Troslojni parket Lamar, vrhunska granitna keramika Porcelanosa prve klase, Hansgrohe slavine, Wicona aluminijumska stolarija, Hunter Douglas žaluzine.
Ulazna vrata Bosal i elegantni hromirani radijatori za peškire samo su neki od luksuznih detalja.
Dobra povezanost sa ostatkom grada putem više linija gradskog prevoza.
Neposredna blizina niza elitnih kafića, restorana, prodavnica, škola, vrtića, fakulteta.
Istaknuta cena je bez PDV-a.
Za kupce prvog stana, mogućnost oslobađanja plaćanja PDV-a.
Uknjiženo.
Agencijska provizija 2% od dogovorene kupoprodajne cene uključuje: istraživanje neophodno za pronalaženje adekvatne nekretnine, pomoć u pregovorima, provera dokumentacije, apliciranje za stambeni kredit, izrada ugovora/predugovora o kupoprodaji, organizacija primopredaje, zapisnik o primopredaji, pomoć pri prijavi poreza na apsolutna prava i eventualno oslobođenje od istog, promena korisnika struje, infostana, vode, gasa... i sve ostalo što podrazumeva Zakon o posredovanju u prometu i zakupu nepokretnosti.
Kontakt telefoni : 011... (prikaži broj telefona) ; 060... (prikaži broj telefona) ; 011... (prikaži broj telefona)
Za više informacija posetite naš sajt https://www.ikatnekretnine.com/
We have the opportunity to offer you an extremely luxurious apartment in a new building in Vračar.
The apartment is located on the first floor of a four-story residential building with an elevator.
The location of this property is excellent, just a few steps from the historically significant Church of St. Sava.
The spacious apartment covers 134 km2, including three bedrooms, two bathrooms and an additional toilet.
It also has a separate kitchen and a spacious terrace.
The spacious living room, 50m2 with dining area, is designed to offer a unique experience of comfort and style.
The finishing works in the apartment exude exceptional quality, with an emphasis on innovative technological solutions.
Tenants have the option of purchasing a garage space, which contributes to additional comfort in urban life.
Each apartment has a heat pump that provides underfloor heating, while the fan coil system enables efficient cooling and maintaining a pleasant temperature throughout the year.
The living room is flooded with natural light thanks to the floor-to-ceiling glass panels, accentuating the ceiling height of an impressive 2.8 meters.
All classic devices such as air conditioners, boilers and radiators are discreetly integrated thanks to advanced technical solutions, resulting in lower energy costs compared to standard solutions in new construction.
The system of central hot water preparation provides an additional level of comfort.
Each residential unit supports SMART HOME technology, allowing residents to intuitively control various aspects of their home.
An added amenity with each apartment includes a walk-in closet, providing additional storage and organization space.
The equipment is carefully selected from the most reputable manufacturers.
Three-layer Lamar parquet, first-class Porcelanos granite ceramics, Hansgrohe faucets, Wicona aluminum carpentry, Hunter Douglas blinds.
Bosal front doors and elegant chrome towel radiators are just some of the luxurious details.
Good connection with the rest of the city via several lines of public transport.
Close proximity to a number of elite cafes, restaurants, shops, schools, kindergartens, colleges.
Registered.
The agency commission of 2% of the agreed purchase price includes: research necessary to find an adequate property, help in negotiations, checking documents, applying for a home loan, drafting a contract/preliminary purchase contract, organization of handover, minutes of handover, help in declaring tax on absolute rights and possible exemption from it, changing the user of electricity, infostation, water, gas... and everything else that the Law on Intermediation in Traffic and Leasing of Real Estate entails.
Contact phones: 011... (prikaži broj telefona) ; 060... (prikaži broj telefona) ; 011... (prikaži broj telefona)
Мы рады предложить Вам исключительно роскошную квартиру в новом доме на Врачаре.
Квартира расположена на первом этаже четырехэтажного жилого дома с лифтом.
Расположение этого объекта недвижимости превосходное, всего в нескольких шагах от исторически значимого храма Святого Саввы.
Просторные апартаменты площадью 134 кв. м включают три спальни, две ванные комнаты и дополнительный туалет.
Также имеется отдельная кухня и просторная терраса.
Просторная гостиная площадью 50 м2 с обеденной зоной спроектирована так, чтобы обеспечить непревзойденный комфорт и стиль.
Отделочные работы в квартире отличаются исключительным качеством, акцент сделан на инновационные технологические решения.
Арендаторы имеют возможность приобрести гаражное место, что добавляет дополнительный комфорт городской жизни.
В каждой квартире установлен тепловой насос, обеспечивающий подогрев пола, а система фанкойлов обеспечивает эффективное охлаждение и поддержание комфортной температуры в течение всего года.
Гостиная залита естественным светом благодаря стеклянным панелям от пола до потолка, подчеркивающим впечатляющую высоту потолка в 2,8 метра.
Все классические приборы, такие как кондиционеры, водонагреватели и радиаторы, незаметно интегрированы благодаря передовым техническим решениям, что обеспечивает снижение затрат на электроэнергию по сравнению со стандартными решениями в новых зданиях.
Центральная система горячего водоснабжения обеспечивает дополнительный уровень комфорта.
Каждая жилая единица поддерживает технологию УМНЫЙ ДОМ, позволяющую жильцам интуитивно управлять различными аспектами своего дома.
Дополнительным удобством в каждой квартире является кладовая, обеспечивающая дополнительное пространство для хранения и организации вещей.
Оборудование тщательно отбирается у самых авторитетных производителей.
Трехслойный паркет Lamar, высококачественная гранитная керамика Porcelanosa, смесители Hansgrohe, алюминиевые столярные изделия Wicona, жалюзи Hunter Douglas.
Входные двери Bosal и элегантные хромированные полотенцесушители — это лишь некоторые из роскошных деталей.
Хорошее сообщение с остальной частью города посредством нескольких линий общественного транспорта.
В непосредственной близости находится множество элитных кафе, ресторанов, магазинов, школ, детских садов и университетов.
Зарегистрирован.
Комиссия агентства в размере 2% от согласованной цены покупки включает в себя: исследования, необходимые для поиска подходящего объекта недвижимости, помощь в переговорах, проверку документации, подачу заявления на получение жилищного кредита, составление договора купли-продажи/предварительного договора купли-продажи, организацию передачи, протокол передачи, помощь в подаче заявления на налог на абсолютные права и возможное освобождение от него, смену пользователя электроэнергии, инфостена, воды, газа... и все остальное, что включено в Закон о посредничестве при купле-продаже и аренде недвижимости.
Контактные номера: 011... (prikaži broj telefona) ; 060... (prikaži broj telefona) ; 011... (prikaži broj telefona)
*Sačuvaj oglas uz belešku i primaj obaveštenja o njihovom pojeftinjenju ili pojavljivanju sličnih
Prikaz stana na mapi
Parkovi u blizini
- Park mira Jelena Šantić4 min
- Karađorđev park7 min
- Svetosavski plato11 min

Obeležja kulture u blizini
- Spomenik Internacionalnim brigadama6 min
- Spomenik žrtvama bombardovanja Beograda6 min
- Spomenik Lamartinu6 min

Škole/Fakulteti/Vrtići u blizini
- Osnovna škola (Privatna osnovna škola Vladislav Petković Dis)3 min
- Srednja škola (Gimnazija Vladislav Petković Dis)3 min
- Vrtić (Dečiji vrtić Beli zeka)4 min
- Fakultet (Univerzitet u Beogradu Stomatološki fakultet)6 min

- Bolnica (Specijalna hirurška bolnica Hirurgija Dr Drašković)4 min
- Klinika (Poliklinika Medikom)4 min
- Teretana (Yoga studio Jesam)3 min
- Prodavnica (Shop&Go)3 min
- Restoran (Restoran Kulinarska tajna)manje od 1 min
- Kafana (Tatar Bar)4 min
- Taksi stajalište (Taxi stanica)3 min
- Autobuska stanica (Neimar)3 min
- Tramvajska stanica (Karađorđev Park)10 min
- Trolejbuska stanica (Mačvanska)11 min
- Banka (Banca Intesa)11 min
- Pošta (Pošta Beograd 23)5 min
Kontakt oglašivača
Stambeni krediti

- Period otplate od
96 -360 meseca
- NKS 4.75%
EKS 5.74%
Fiksna kamatna stopa
- Bez troškova obrade kredita
stranici kreditnih kalkulatora
Keš krediti
Period otplate
13 meseci