Trosoban stan na prodaju, Hotel YU, 330.000€, 85m²








































330.000 €
3.882 € / m2
- Stan u zgradi
- Centralno grejanje
- Renovirano
- Prostorije: kuhinja, terasa
- Opremljenost: Namešteno - internet, interfon, TV, klima, veš mašina, sudo mašina, frižider, rerna, ležaj, plakar, kanalizacija
- Uknjiženo
- Oglas oglašava agencija pod reg. brojem 1564
- 1 lift
- Kanalizacija
- Zgrada poseduje: lođa, video nadzor
- Kablovska
- 1 telefonska linija
Opis oglasa
Predstavljamo vam raritet na tržištu – trosoban stan kod hotela Jugoslavija, sa direktnim, neometanim pogledom na Dunav iz svake sobe! Ovakva orijentacija je odlična, a tokom celog dana sunčeva svetlost je garantovana.
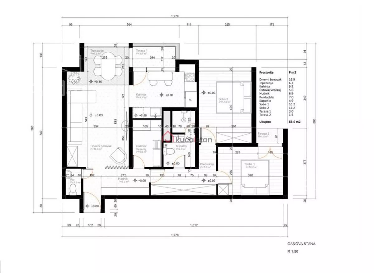
Struktura:
- Dnevna soba
- Kuhinja
- Trpezarija
- Dve spavače sobe
- Kupatilo
- Dve terase
Lokacija – apsolutni premium.
Nekoliko koraka od reke, biciklističkih staza i savršenih šetališta. Neposredna blizina svih bitnijih delova Novog Beograda. Pozicioniran u jednoj od najtraženijih zona za stanovanje i izdavanje.
Investicioni potencijal – ogroman.
Na mestu hotela Jugoslavija niče luksuzan kompleks koji će drastično podići cenu kvadrata u okruženju. Kupovinom ovog stana ulazite u zonu sigurnog rasta vrednosti i idealnu priliku za dugoročno ulaganje.
Ovaj stan je retka ponuda za ozbiljne kupce koji traže nešto specijalno – pogled, lokaciju i perspektivu kakva se ne pojavljuje često.
Agencija: Kuća i stan DOO,
Hadži Prodanova 14/1,
Beograd/Vračar,
Reg. br. agencije: 1564
*Sačuvaj oglas uz belešku i primaj obaveštenja o njihovom pojeftinjenju ili pojavljivanju sličnih
Prikaz stana na mapi
Parkovi u blizini
- Gradski park21 min
- Park Kalvarija30 min
- Dečje igralište36 min

Obeležja kulture u blizini
- Spomenik Konfuciju6 min
- Spomenik Žambilu Zambajevu7 min
- Kuća Dimitrija Davidovića7 min

Škole/Fakulteti/Vrtići u blizini
- Osnovna škola (Osnovna škola Kralj Aleksandar I)6 min
- Srednja škola (Ekonomska škola Nada Dimić)7 min
- Vrtić (Dečiji vrtić Luna)4 min
- Fakultet (Megatrend Univerzitet Pravni fakultet)7 min

- Bolnica (Bolnica za oftalmologiju Oculus)6 min
- Klinika (Poliklinika Beograd)4 min
- Teretana (Trening centar Performa fitness & spa)4 min
- Prodavnica (Maxi Supermarket)5 min
- Restoran (Fast casual restoran Holy Smokes)4 min
- Kafana (Splav Bahus Inn)5 min
- Taksi stajalište (Taxi stanica)10 min
- Autobuska stanica (Hotel Jugoslavija)manje od 1 min
- Tramvajska stanica (Blok 21)29 min
- Trolejbuska stanica (Studentski trg)49 min
- Banka (Addiko Bank)8 min
- Pošta (Pošta Beograd 128)4 min
Kontakt oglašivača
Krediti OTP banke
Saznaj više
Prikazana rata odnosi se na maksimalni period otplate. Kalkulator je informativnog karaktera.
* Nakon isteka 5 godina, prelazi se na varijabilnu kamatnu stopu


