Dvoiposoban stan na prodaju, Grbavica, 129.780€, 63m²
Novi Sad, Gradske lokacije, Grbavica
Prikaži mapuŠifra oglasa: 4zida-1000148Oglas ažuriran: pre 2 dana














129.780 €
2.060 € / m2
63 m²
2.5 soba
2/4 sprata
- Stan u zgradi
- Grejanje na gas
- Uobičajeno stanje
- Prostorije: terasa
- Uknjiženo
- Oglas oglašava agencija pod reg. brojem 1692
- Godina izgradnje: 1900.
Opis oglasa
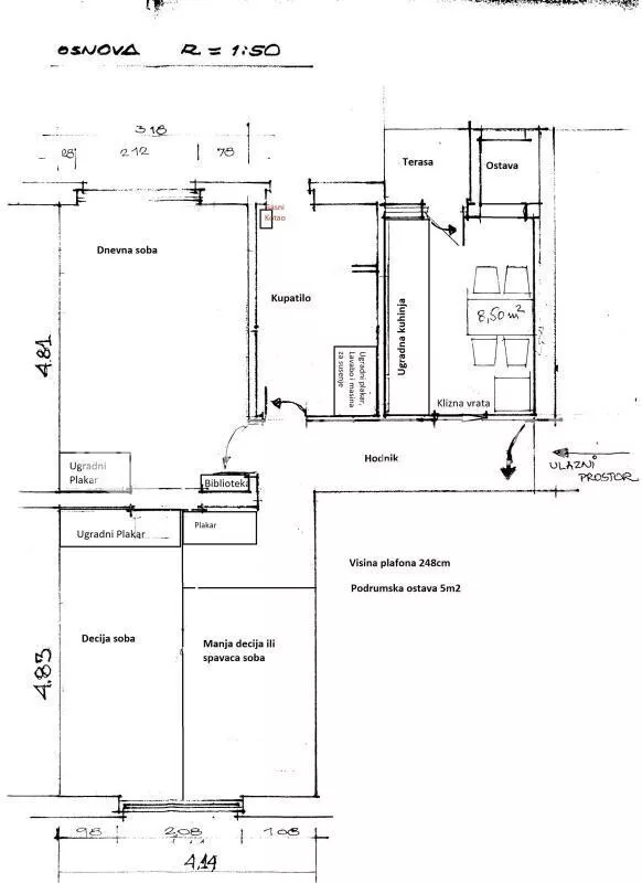
Praktičan trosoban stan do 63m2, u mirnom delu Grbavice.Stan je na drugom, spratu zgrade starije gradnje,bez lifta.Uredan, renoviran i na vrlo traženoj lokaciji, zbog blizine Futoške ulice, Bulevara Oslobođenja i Centra.Grejanje je na gas, što je vrlo ekonomomično za buduće vlasnike jer se plaća samo u sezoni i po potrošnji.Uknjižen i bez tereta. 060... (prikaži broj telefona)
*Sačuvaj oglas uz belešku i primaj obaveštenja o njihovom pojeftinjenju ili pojavljivanju sličnih
Prikaz stana na mapi
Parkovi u blizini
- Futoški park13 min
- Limanski park18 min
- Dunavski park31 min

Obeležja kulture u blizini
- Jodna Banja9 min
- Matičarsko zdanje12 min
- Dvorac Eđšeg7 min

Škole/Fakulteti/Vrtići u blizini
- Osnovna škola (Osnovna škola Sonja Marinković)5 min
- Srednja škola (Medicinska škola 7. april)6 min
- Vrtić (Dečiji vrtić Zmaj)5 min
- Fakultet (Fakultet za pravne i poslovne studije Dr Lazar Vrkatić)8 min

Zdravlje
- Bolnica (Specijalna bolnica za reumatske bolesti Novi Sad)9 min
- Klinika (Poliklinika Vejnović)7 min
- Teretana (Fitness centar Royal Gym)4 min
Hrana i piće
- Prodavnica (Voće i povrće Pinćir BIO)1 min
- Restoran (Play concept bar & restaurant)4 min
- Kafana (Pab Pow Wow)10 min
Prevoz
- Taksi stajalište (Gradski Taxi)13 min
- Autobuska stanica (Cara Dušana - Medicinska škola)9 min
Ostale ustanove
- Banka (Raiffeisen Bank)7 min
- Pošta (Pošta Novi Sad 21102)6 min
Kontakt oglašivača
▾Reklama▾
Stambeni krediti

- Period otplate od
96 -360 meseca
- NKS 4.75%
EKS 5.74%
Fiksna kamatna stopa
- Bez troškova obrade kredita
576 € / mesečno
Saznaj višePogledaj detaljnije i menjaj uslove kreditiranja na
stranici kreditnih kalkulatora
stranici kreditnih kalkulatora
Keš krediti
RSDIznos kredita
Period otplate
13 meseciOsiguranje domaćinstva online
Osiguraj svoje domaćinstvo u slučaju požara...

