Dvoiposoban stan na prodaju, Grbavica, 181.400€, 69m²






































181.400 €
2.629 € / m2
- Stan u zgradi
 - Prostorije: terasa
 - Uknjiženo
 - Oglas oglašava agencija pod reg. brojem 46
 
- 1 lift
 
Opis oglasa
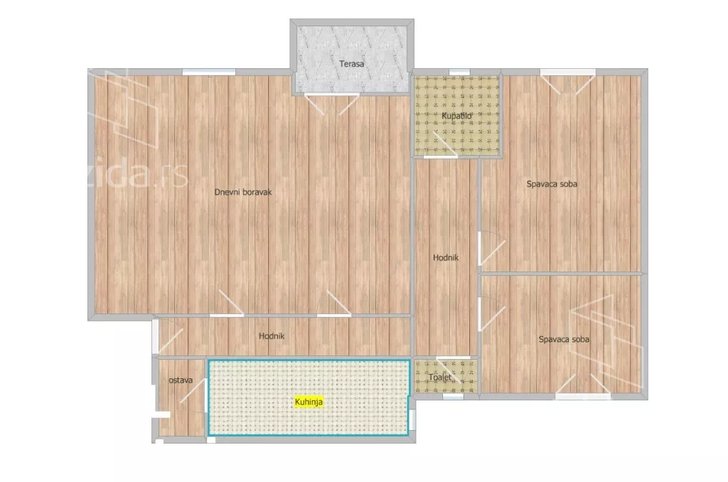
Izuzetna gradnja, fasadna cigla. Izuzetna lokacija, tik uz Limansku pijacu+++Agencijska oznaka stana 1101278, Izuzetna gradnja, fasadna cigla. Izuzetna lokacija, tik uz Limansku pijacu+++Agencijska oznaka stana 1064430, cena stana je 181.400 e +3 % agencijske provizije, Novi Sad, Grbavica ( Liman), 69 m2, trosoban, treći sprat. dvostrano orijentisan,konforan u kvalitetnoj zgradi,svetao. Odlična kvalitetna porodična nekretnina u izuzetnoj gradnji, zgrade od fasadne cigle. Odličan raspored. Velika dnevna soba sa trpezarijom, dve spavaće sobe, odvojena kuhinja sa prozorom i špajzom..Posebno kupatilo i toalet, oba sa prirodnom ventilacijom. U podrumu ulaza ostava. Stan lako pregrađivanjem dnevne sobe koja je izuteno prostrana ima mogućnost za još jednom spavaćom sobom, I time postaje četvorosoban. Lokacija jedna od omiljenih među novosađanima. Obod Grbavice na granici sa Limanom.
Stan uknjižen jedan kroz jedan,mogućnost kupovine isključivo gotovinom....     Kontakt  Aleksandra Krnajski  
							064...	(prikaži broj telefona)
						, Novi Sad, Grbavica ( Liman), 69 m2, trosoban, treći sprat. dvostrano orijentisan,konforan u kvalitetnoj zgradi,svetao. Odlična kvalitetna porodična nekretnina u izuzetnoj gradnji, zgrade od fasadne cigle. Odličan raspored. Velika dnevna soba sa trpezarijom, dve spavaće sobe, odvojena kuhinja sa prozorom i špajzom..Posebno kupatilo i toalet, oba sa prirodnom ventilacijom. U podrumu ulaza ostava. Stan lako pregrađivanjem dnevne sobe koja je izuteno prostrana ima mogućnost za još jednom spavaćom sobom, I time postaje četvorosoban. Lokacija jedna od omiljenih među novosađanima. Obod Grbavice na granici sa Limanom.
Stan uknjižen jedan kroz jedan,mogućnost kupovine isključivo gotovinom....     Kontakt  Aleksandra Krnajski  
							064...	(prikaži broj telefona)
						
*Sačuvaj oglas uz belešku i primaj obaveštenja o njihovom pojeftinjenju ili pojavljivanju sličnih
Prikaz stana na mapi
Parkovi u blizini
- Futoški park13 min
 - Limanski park18 min
 - Dunavski park31 min
 

Obeležja kulture u blizini
- Jodna Banja9 min
 - Matičarsko zdanje12 min
 - Dvorac Eđšeg7 min
 

Škole/Fakulteti/Vrtići u blizini
- Osnovna škola (Osnovna škola Sonja Marinković)5 min
 - Srednja škola (Medicinska škola 7. april)6 min
 - Vrtić (Dečiji vrtić Zmaj)5 min
 - Fakultet (Fakultet za pravne i poslovne studije Dr Lazar Vrkatić)8 min
 

- Bolnica (Specijalna bolnica za reumatske bolesti Novi Sad)9 min
 - Klinika (Poliklinika Vejnović)7 min
 - Teretana (Fitness centar Royal Gym)4 min
 
- Prodavnica (Voće i povrće Pinćir BIO)1 min
 - Restoran (Play concept bar & restaurant)4 min
 - Kafana (Pab Pow Wow)10 min
 
- Taksi stajalište (Gradski Taxi)13 min
 - Autobuska stanica (Cara Dušana - Medicinska škola)9 min
 
- Banka (Raiffeisen Bank)7 min
 - Pošta (Pošta Novi Sad 21102)6 min
 
Kontakt oglašivača
Stambeni krediti

- Period otplate od
96 -360 meseca 
- NKS 4.75%
EKS 5.74%
Fiksna kamatna stopa 
- Bez troškova obrade kredita
 
stranici kreditnih kalkulatora
Keš krediti
Period otplate
13 meseci
