Dvosoban stan na prodaju, Nemanjina, 108.000€, 54m²










108.000 €
2.000 € / m2
- Stan u zgradi
- Grejanje na struju
- U procesu uknjižavanja
- Oglas oglašava agencija pod reg. brojem 1403
Opis oglasa
Prilika koja se ne propušta!
Predstavljamo vam novu luksuznu stambenu zgradu u izgradnji, na samo nekoliko koraka od prelepog parka – idealno mesto za život u harmoniji sa prirodom i gradom.
Ovaj prestižni projekat donosi spa centar u sklopu zgrade (zatvoreni bazen i saune), kreiran da vam svakodnevno pruža osećaj odmora i relaksacije. Na raspolaganju je i mogućnost kupovine prostrane ostave za maksimalnu funkcionalnost, kao i mogućnost kupovine parking mesta.
Stanovi su dostupni u različitim površinama i rasporedima, a odlikuje ih vrhunska završna obrada, luksuzni materijali i moderan dizajn. Svaki detalj je pažljivo osmišljen da zadovolji najviše estetske i funkcionalne standarde.
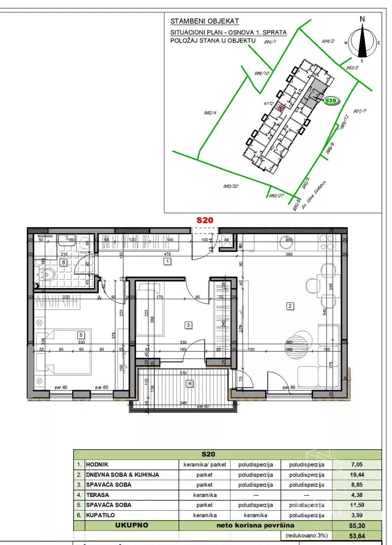
Površine stanova su: 24m2, 26m2, 37m2, 39m2, 54m2.
Iz ponude posebno izdvajamo prelep komforan stan od 54m2, idealan za one koji vole komfor.
Cena stana je 2.000eura/m2 + 10%pdv.
Kupac prvog stana ostvaruje povraćaj PDV-a.
Cena parking mesta je 8.400 eura.
Doplata za spa centar je 2.700 eura + pdv.
Kupac ne plaća agencijsku proviziju.
Za dodatne informacije kontaktirajte nas: 065... (prikaži broj telefona) .
*Sačuvaj oglas uz belešku i primaj obaveštenja o njihovom pojeftinjenju ili pojavljivanju sličnih
Prikaz stana na mapi
Parkovi u blizini
- Japanski vrt11 min

Obeležja kulture u blizini
- Izvor lekovite vode Topla voda2 min
- Izvor lekovite vode Slatina9 min
- Izvor lekovite vode Jezero13 min

Škole/Fakulteti/Vrtići u blizini
- Osnovna škola (Osnovna škola Popinski borci)8 min
- Srednja škola (Ugostiteljsko-turistička škola)4 min
- Vrtić (Dečiji vrtić Veseljko)30 min
- Fakultet (Univerzitet u Kragujevcu Fakultet za hotelijerstvo i turizam)5 min

- Bolnica (Specijalna bolnica Merkur Vrnjačka Banja)7 min
- Klinika (Poliklinika SVS Medicus)37 min
- Teretana (Teretana Colosseum)35 min
- Prodavnica (SL market Swisslion Takovo)2 min
- Restoran (Restoran Istra)3 min
- Kafana (Pivnica Sonata)1 min
- Taksi stajalište (Palma Taxi)2 min
- Banka (NLB Komercijalna banka)manje od 1 min
- Pošta (Pošta Vrnjačka Banja)4 min
Kontakt oglašivača
Stambeni krediti

- Period otplate od
96 -360 meseca
- NKS 4.75%
EKS 5.74%
Fiksna kamatna stopa
- Bez troškova obrade kredita
stranici kreditnih kalkulatora
Keš krediti
Period otplate
13 meseci