Trosoban stan na prodaju, Gradske lokacije, 101.700€, 58m²


























101.700 €
1.753 € / m2
- Stan u zgradi
 - U izgradnji
 - Prostorije: terasa
 - Oglas oglašava agencija pod reg. brojem 1758
 
Opis oglasa
Agencijska šifra: 1017748
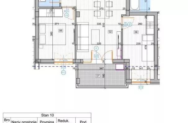
Na prodaju je odličan trosoban stan u potpuno novoj zgradi u samom centru Vrbasa, neposredno pored gimnazije. Zgrada je upravo završena, a prvi stanari su se već počeli useljavati.
Stan je izuzetno funkcionalnog rasporeda i orijentisan dvorišno ka jugu, što mu obezbeđuje obilje prirodne svetlosti i prijatnu atmosferu tokom cele godine. Sastoji se od dnevnog boravka, kuhinje u sklopu dnevnog boravka, dve spavaće sobe, kupatila i pripadajuće višenamenske prostorije površine 5m2 koja se nalazi odmah uz stan i koja je uračunata u označenu cenu. Podno grejanje na gas obezbeđuje visok nivo komfora i niske troškove stanovanja.
Uz stan postoji mogućnost kupovine jedne ili više garaža i/ili parking mesta po potrebi.
Zgrada je u završnoj fazi administrativnog postupka dobijanja upotrebne dozvole, a sama kupovina će biti moguća odmah po njenom izdavanju.
Kontakt: 062... (prikaži broj telefona) Rade
*Sačuvaj oglas uz belešku i primaj obaveštenja o njihovom pojeftinjenju ili pojavljivanju sličnih
Prikaz stana na mapi
Parkovi u blizini
- Park Vrbas40 min
 

Obeležja kulture u blizini
- Dvorac Hercl13 min
 - Tomanova vila13 min
 - Dvorac Tabori14 min
 

Škole/Fakulteti/Vrtići u blizini
- Osnovna škola (Osnovna škola 20. oktobar)15 min
 - Srednja škola (Srednja stručna škola 4. juli)14 min
 - Vrtić (Dečiji vrtić Zvezdica)10 min
 

- Bolnica (Opšta bolnica Vrbas)12 min
 - Klinika (Poliklinika Novakov)50 min
 - Teretana (Fitness centar Mega Gym Novi Sad)47 min
 
- Prodavnica (Samba kafa)21 min
 - Restoran (Restoran Jesenjin)31 min
 - Kafana (Gradska kafana)40 min
 
- Taksi stajalište (Taxi stanica)34 min
 - Autobuska stanica27 min
 
- Banka (Eurobank Direktna)14 min
 - Pošta (Pošta Vrbas)12 min
 
Kontakt oglašivača
Stambeni krediti

- Period otplate od
96 -360 meseca 
- NKS 4.75%
EKS 5.74%
Fiksna kamatna stopa 
- Bez troškova obrade kredita
 
stranici kreditnih kalkulatora
Keš krediti
Period otplate
13 meseci
