Dvosoban stan na prodaju, Gradske lokacije, 104.076€, 74m²
















104.076 €
1.406 € / m2
- Stan u zgradi
- Centralno grejanje
- U izgradnji
- Prostorije: kupatilo, toalet, terasa
- U procesu uknjižavanja
- Oglas oglašava agencija pod reg. brojem 1422
Opis oglasa
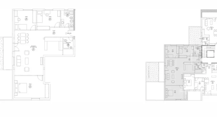
Na prodaju stan u izgradnji od 74,34 m2 u Staroj Pazovi, u ulici Zmaj Jovinoj. Stan је po strukturi dvosobni, nalazi se na prvom spratu. Sastoji se od ulaza , kuhinje i trpezarije , dnevne sobe , terase , wc-a , kupatila , hodnika , ostave i dve spavaće sobe.
Očekivani završetak radova je april 2026-te godine.
U cenu stana je uključeno oko 20m2 dodatnog prostora - terase koja nije u kvadraturi stana.
Cena je 1400 evra + pdv.
https: //nekretninetesic. rs/property/stan-u-izgradnji-7434-m2-stara-pazova-zmaj-jovina/
*Sačuvaj oglas uz belešku i primaj obaveštenja o njihovom pojeftinjenju ili pojavljivanju sličnih
Prikaz stana na mapi
Parkovi u blizini
- Park Stara Pazova11 min

Obeležja kulture u blizini
- Ambar sa kotobanjom porodice Lepšanović13 min
- Ambar sa kotobanjom porodice Galečić14 min
- Dvorac Šlos15 min

Škole/Fakulteti/Vrtići u blizini
- Osnovna škola (Osnovna škola Heroj Janko Čmelik)4 min
- Srednja škola (Ekonomsko-trgovinska škola Vuk Karadžić)8 min
- Vrtić (Dečiji vrtić Poletarac)6 min
- Fakultet (SMATSA školski centar)29 min

- Bolnica (Klinika za lečenje bolesti zavisnosti MedTim)18 min
- Klinika (Poliklinika Nova Pazova)16 min
- Teretana (Fitness centar Beogym)18 min
- Prodavnica (Supermarket Medius)4 min
- Restoran (Restoran Central Bar)9 min
- Autobuska stanica (Autobusko stajalište Lasta)12 min
- Banka (Poštanska štedionica)7 min
- Pošta (Pošta Stara Pazova)7 min
Kontakt oglašivača
Krediti OTP banke
Saznaj više
Prikazana rata odnosi se na maksimalni period otplate. Kalkulator je informativnog karaktera.
* Nakon isteka 5 godina, prelazi se na varijabilnu kamatnu stopu


