Dvoiposoban stan na prodaju, Vojvode Mišića, 137.940€, 76m²










137.940 €
1.815 € / m2
- Stan u zgradi
- Grejanje na gas
- U izgradnji
- Prostorije: kupatilo, toalet
- U procesu uknjižavanja
- Oglas oglašava agencija pod reg. brojem 1707
- 1 lift
- Zgrada poseduje: lođa
Opis oglasa
🏗️ NA PRODAJU DVOIPOSOBAN STAN U IZGRADNJI – VOJVODE MIŠIĆA, ŠABAC 🏡
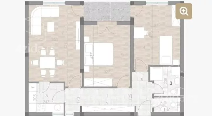
Prodaje se dvoiposoban stan površine 75.89 m² u izgradnji, u ulici Vojvode Mišića, na atraktivnoj lokaciji u blizini centra grada.
Treći sprat u zgradi sa liftom.
Stan se sastoji od:
Predsoblja (12.02 m²)
Toaleta (2.02 m²)
Kupatila (4.62 m²)
Dve spavaće sobe (14.49 m² i 14.59 m²)
Kuhinje (5.29 m²)
Dnevne sobe (20.78 m²)
Lođe (4.29 m²)
Grejanje na gas.
Zgrada spratnosti Po+P+4+Ps biće opremljena liftom i sadrži 33 moderno projektovane stambene jedinice.
📍 Lokacija: Vojvode Mišića, Šabac
💶 Cena: 1.650 €/m² + PDV
🏢 STAN 015 DOO, reg. br. 1707
📞 064... (prikaži broj telefona)
*Sačuvaj oglas uz belešku i primaj obaveštenja o njihovom pojeftinjenju ili pojavljivanju sličnih
Prikaz stana na mapi
Parkovi u blizini
- Gradski park Šabac12 min
- Veliki park18 min
- Šuma Letnjikovac30 min

Obeležja kulture u blizini
- Zgrada Polugimnazije4 min
- Spomenik žrtvama Balkanskih i Prvog svetskog rata5 min
- Spomenik dr Lazi Kostiću6 min

Škole/Fakulteti/Vrtići u blizini
- Osnovna škola (Osnovna škola Jevrem Obrenović)6 min
- Srednja škola (Ekonomsko-trgovinska škola)4 min
- Vrtić (Dečiji vrtić Bambi)4 min
- Fakultet (Visoka medicinska i poslovno-tehnološka škola strukovnih studija)6 min

- Bolnica (Opšta bolnica Dr Laza K. Lazarević Šabac)7 min
- Klinika (Poliklinika MD)7 min
- Teretana (Teretana Casper)9 min
- Prodavnica (VUM market)manje od 1 min
- Restoran (Restoran Estrada)7 min
- Kafana (Pivnica Kum)9 min
- Taksi stajalište (Taxi stanica)7 min
- Autobuska stanica (Bolnica)3 min
- Banka (AIK Banka)6 min
- Pošta (Pošta Šabac 3)5 min
Kontakt oglašivača
Stambeni krediti

- Period otplate od
96 -360 meseca
- NKS 4.75%
EKS 5.74%
Fiksna kamatna stopa
- Bez troškova obrade kredita
stranici kreditnih kalkulatora
Keš krediti
Period otplate
13 meseci
