Troiposoban stan na prodaju, Gradske lokacije, 153.550€, 83m²
























153.550 €
1.850 € / m2
- Stan u zgradi
- Etažno grejanje
- U izgradnji
- Prostorije: kupatilo, toalet, ostava
- Opremljenost: Prazno - internet
- Pogled na: dvorište
- Uknjiženo
- Oglas oglašava agencija pod reg. brojem 1736
- 1 lift
- Godina izgradnje: 2024.
- Zgrada poseduje: lođa
- Kablovska
- 1 telefonska linija
Opis oglasa
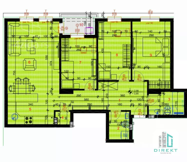
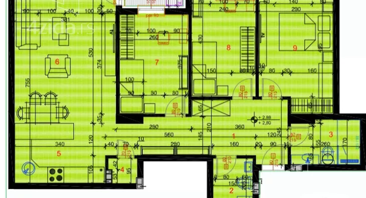
U ponudi uskoro useljiv troiposoban stan, površine 83m2, dvorišno orijentisan.
Struktura: predsoblje, wc, kupatilo,hodnik, tri spavaće sobe, kuhinja sa ostavom, trpezarija i dnevna soba, kupatilo i lođa.
Zgrada je spratnosti prizemlje + 3 sprata + mansarda.
Stan se nalazi na drugom spratu.
Grejanje je na struju, radijatori (elektrokotao se nalazi u ostavi stana i grejanje se plaća po potrošnji).
Prilikom izgradnje posebna pažnja je bila usmerena na toplotnu i zvučnu izolaciju.
Spoljašnja izolacija 10cm stiropor, urađena je međuspratna zvučna izolacija, zvučna izolacija između stanova, izolacija hodnika. Zgrada poseduje bešumni lift.
PVC Rehau stolarija unutra bela, spolja antracit, sa roletnama i komarnicima.
Cena stana je izražena sa PDV-om.
Postoji mogućnost refundacije PDV-a za kupca prvog stana.
Mogućnost kupovine putem stambenog kredita (zgrada je na više od 80% izgrađenosti).
Cena garažnog mesta, koje se nalazi u prizemlju zgrade, iznosi 10.000 evra + PDV.
U toku uređenje saobraćajnog priključka i završni radovi.
Useljenje u februaru 2026. godine.
Agencijska provizija iznosi 3% od kupoprodajne cene
*Sačuvaj oglas uz belešku i primaj obaveštenja o njihovom pojeftinjenju ili pojavljivanju sličnih
Prikaz stana na mapi
Parkovi u blizini
- Narodna bašta Pančevo7 min
- Park Barutana11 min
- Park na Trgu kralja Petra18 min

Obeležja kulture u blizini
- Kompleks Svilara9 min
- Zgrada Stare bolnice9 min
- Spomenik vojvodi Stevanu Šupljikcu7 min

Škole/Fakulteti/Vrtići u blizini
- Osnovna škola (Specijalna osnovna škola Mara Mandić)4 min
- Srednja škola (Privatna ekonomsko menadžerska škola Pančevo)4 min
- Vrtić (Dečiji vrtić Ljiljan)9 min
- Fakultet (Stomatološki fakultet Pančevo)6 min

- Bolnica (Opšta bolnica Pančevo)8 min
- Klinika (Poliklinika Dr Putnik)7 min
- Teretana (Fitnes klub Forma)3 min
- Prodavnica (Maxi Supermarket)10 min
- Restoran (Restoran Zen)11 min
- Kafana (Publika pub)16 min
- Taksi stajalište (Taxi stanica)5 min
- Autobuska stanica (Bolnica)8 min
- Banka (UniCredit Bank)4 min
- Pošta (Pošta Pančevo 3)6 min
Kontakt oglašivača
Krediti OTP banke
Saznaj više
Prikazana rata odnosi se na maksimalni period otplate. Kalkulator je informativnog karaktera.
* Nakon isteka 5 godina, prelazi se na varijabilnu kamatnu stopu


