Četvorosoban stan na prodaju, Vojvođanska, 135.000€, 73m²








135.000 €
1.849 € / m2
- Stan u zgradi
- Podno grejanje
- Novo
- Prostorije: kupatila (2), terasa
- Opremljenost: internet
- U procesu uknjižavanja
- Oglas oglašava agencija pod reg. brojem 1299
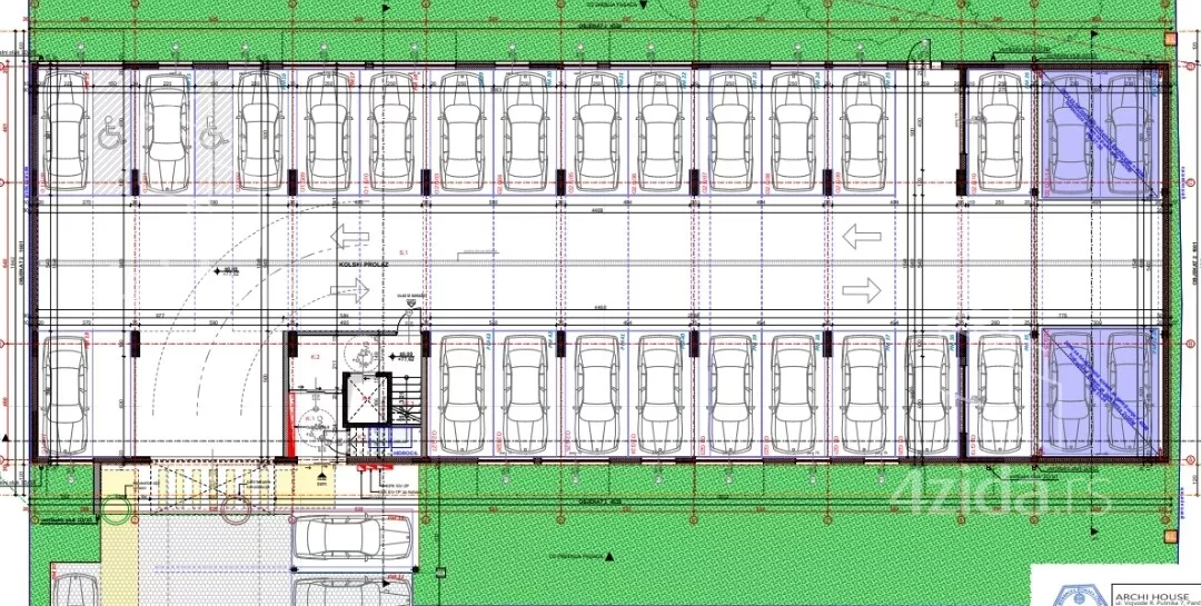
- 1 garažno mesto, garaža u sklopu zgrade
- Parking u dvorištu zgrade
- 1 lift
- Kablovska
- 1 telefonska linija
Opis oglasa
Prodaje se moderan stan površine 73 m² na Novoj Misi, novogradnja!
Stan se sastoji od 3 spavaće sobe, kupatila, terase i prostranog dnevnog boravka povezanog sa kuhinjom.
U okviru zgrade nalazi se garaža, a obezbeđeno je jedno parking mesto u dvorištu.
Kupci prve nekretnine ostvaruju pravo na povraćaj PDV-a u iznosu od 10%.
Zgrada poseduje lift i izgrađena je od visokokvalitetnih materijala koji osiguravaju udobno i dugotrajno stanovanje.
Oprema stana uključuje blindirana ulazna vrata, granitnu keramiku prve klase, ugradne vodokotliće, etažno grejanje i invertorsku klimu.
Objekat poseduje energetski pasoš, što garantuje minimalne troškove grejanja i hlađenja.
Planiran završetak avgust 2026.
Posrednička naknada je u skladu sa Opštim uslovima poslovanja posrednika kompanije "Etagi com" d.o.o.
*Sačuvaj oglas uz belešku i primaj obaveštenja o njihovom pojeftinjenju ili pojavljivanju sličnih
Prikaz stana na mapi
Parkovi u blizini
- Park Barutana31 min
- Park na Trgu kralja Petra33 min
- Narodna bašta Pančevo35 min

Obeležja kulture u blizini
- Spomenik vojvodi Stevanu Šupljikcu9 min
- Zgrada Stare bolnice10 min
- Spomen kompleks Stratište17 min

Škole/Fakulteti/Vrtići u blizini
- Osnovna škola (Osnovna škola Sveti Sava)6 min
- Srednja škola (Poljoprivredna škola Josif Pančić)7 min
- Vrtić (Dečiji vrtić Petar Pan)7 min
- Fakultet (Stomatološki fakultet Pančevo)15 min

- Bolnica (Opšta bolnica Pančevo)10 min
- Klinika (Poliklinika Dr Putnik)6 min
- Teretana (Fitnes klub Start Up)9 min
- Prodavnica (DTL Podunavlje)3 min
- Restoran (Restoran Arch)4 min
- Kafana (Publika pub)35 min
- Taksi stajalište (Taxi stanica)24 min
- Autobuska stanica (Sportski Centar)3 min
- Banka (Poštanska štedionica)8 min
- Pošta (Pošta Pančevo 9)10 min
Kontakt oglašivača
Krediti OTP banke
Saznaj više
Prikazana rata odnosi se na maksimalni period otplate. Kalkulator je informativnog karaktera.
* Nakon isteka 5 godina, prelazi se na varijabilnu kamatnu stopu


