Dvosoban stan na prodaju, Mine Karadžić, 78.000€, 51m²




























78.000 €
1.529 € / m2
- Stan u zgradi
- Grejanje na gas
- Novo
- Prostorije: kupatilo, terasa
- Opremljenost: Namešteno - klima, veš mašina, kuhinjski elementi, sudo mašina, frižider, zamrzivač, šporet, rerna, ležaj
- Pogled na: ulicu
- Uknjiženo
- Kupovina direktno od vlasnika
- 1 lift
- Godina izgradnje: 2024.
Opis oglasa
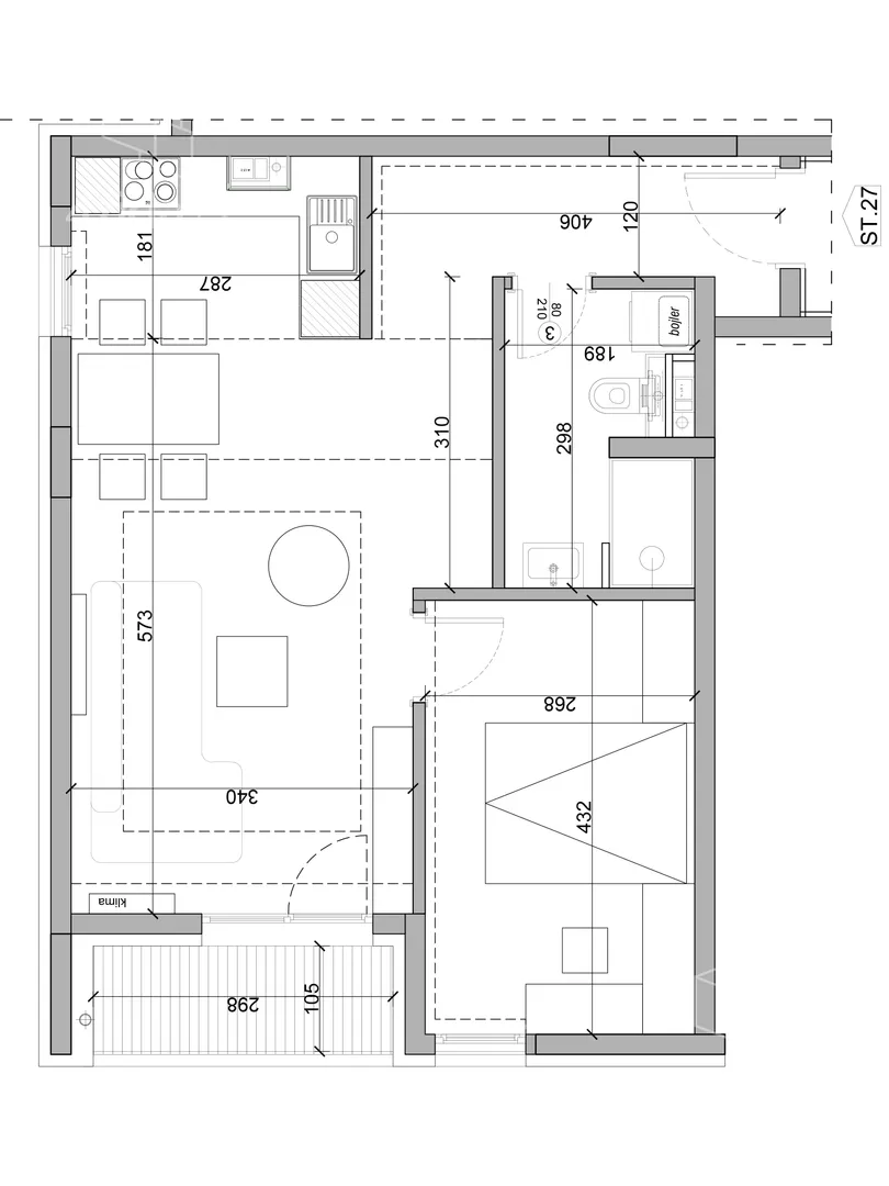
Prodaje se nov dvosoban stan površine 51 m² u novogradnji (2024. god) u Loznici, naselje Lagator, ulica Mine Karadžić.
Stan se nalazi na 4. spratu od ukupno 5, u zgradi sa liftom.
Dvostrano orijentisan, svetao i funkcionalan. Nov i neuseljavan.
Prodaje se sa nameštajem. U stanu je urađen spušten plafon u svim prostorijama.
Kvadratura: 51 m²
Struktura: dvosoban
Sprat: 4/5
Lift: da
Lokacija: Lagator – ul. Mine Karadžić
Stan je uknjižen 1/1 na vlasnika nekretnine.
Cena: 78.000 €
Telefon: 062... (prikaži broj telefona)
060... (prikaži broj telefona)
*Sačuvaj oglas uz belešku i primaj obaveštenja o njihovom pojeftinjenju ili pojavljivanju sličnih
Prikaz stana na mapi
Parkovi u blizini
- Školski park Loznica17 min
- Železnički park23 min

Obeležja kulture u blizini
- Spomenik Stepi Stepanoviću5 min
- Spomenik Vuku Karadžiću7 min
- Spomenik dr Milenku Marinu9 min

Škole/Fakulteti/Vrtići u blizini
- Osnovna škola (Osnovna škola Jovan Cvijić)5 min
- Srednja škola (Tehnička škola Loznica)6 min
- Vrtić (Dečiji vrtić Čarolija)6 min

- Bolnica (Opšta bolnica Loznica)5 min
- Klinika (Specijalistička lekarska ordinacija iz oblasti opšte hirurgije S-MEDIC)5 min
- Teretana (Fitness centar Sparta Pilates)11 min
- Prodavnica (Maxi Supermarket)1 min
- Restoran (Restoran Boomerang)5 min
- Kafana (Kafana Sad ili nikad)12 min
- Taksi stajalište (Taxi stanica)16 min
- Autobuska stanica2 min
- Banka (3 Banka)manje od 1 min
- Pošta (Pošta Loznica 3)4 min
Kontakt oglašivača
Stambeni krediti
- Period otplate od
96 -360 meseca
- NKS 4.34%
Kombinovana kamatna stopa
- Bez troškova obrade kredita
- Odobrenje kredita do 48h
- Period otplate od
96 -360 meseca
- NKS 4.50%
EKS 5.74%
Fiksna kamatna stopa
- Bez troškova obrade kredita
stranici kreditnih kalkulatora
Keš krediti
Period otplate
13 meseci