Trosoban stan na prodaju, Gradske lokacije, 108.000€, 72m²


108.000 €
1.500 € / m2
- Stan u zgradi
- Grejanje na gas
- U izgradnji
- Prostorije: kupatilo, toalet, terasa
- Nije uknjiženo
- Oglas oglašava agencija pod reg. brojem 266
- Parking u dvorištu zgrade
- 1 lift
Opis oglasa
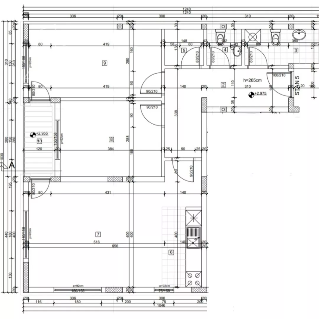
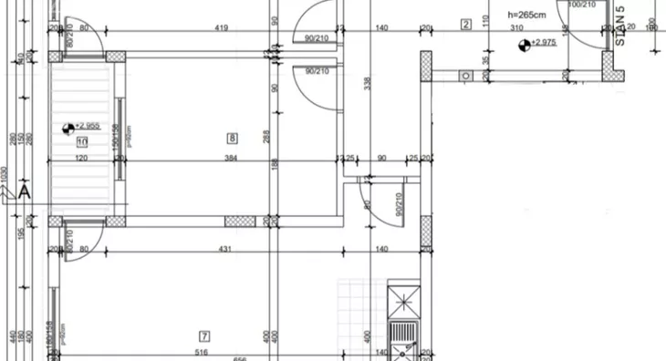
Nekretnine KRUNA prodaju trosoban stan u izgradnji, na odličnoj lokaciji u Rasadniku, na 1. spratu stambene zgrade.
Kvadratura: 72,68 m²
Ukupna cena stana: 109.000 € + PDV
Struktura stana:
- hodnik
- kupatilo
- toalet
- ostava
- open space dnevni boravak sa kuhinjom i trpezarijom
- dve spavaće sobe
- terasa
Posebna prednost stana je što sve tri sobe imaju izlaz na terasu, što stan čini izuzetno svetlim i komfornim.
Grejanje je na gas. Stan je projektovan sa modernim i funkcionalnim rasporedom, idealan za porodično stanovanje. Lokacija je mirna i veoma tražena, u blizini marketa, škole, vrtića i svih sadržaja potrebnih za svakodnevni život.
Planirani završetak radova: kraj 2027. godine.
Odlična prilika za kupovinu stana u novogradnji, kako za život tako i za investiciju.
Postoji mogućnost kupovine parking mesta po ceni od 5.000 € + PDV.
Za više informacija i razgledanje pozovite nas:
063... (prikaži broj telefona)
037... (prikaži broj telefona)
*Sačuvaj oglas uz belešku i primaj obaveštenja o njihovom pojeftinjenju ili pojavljivanju sličnih
Prikaz stana na mapi
Parkovi u blizini
- Park minijatura Srbija21 min
- Zabavni park Šarengrad30 min

Obeležja kulture u blizini
- Zgrada Okružnog načelstva5 min
- Spomenik mira6 min
- Spomenik kosovskim junacima6 min

Škole/Fakulteti/Vrtići u blizini
- Osnovna škola (Osnovna škola Jovan Popović)10 min
- Srednja škola (Gimnazija Kruševac)6 min
- Vrtić (Dečiji vrtić Dečiji klub)6 min
- Fakultet (Alfa BK Univerzitet)13 min

- Bolnica (Služba radiološke dijagnostike Kruševac)6 min
- Klinika (Poliklinika Multimedika)6 min
- Teretana (Cafe bar & gym Mr. Hill)39 min
- Prodavnica (Supermarket Univerexport)4 min
- Restoran (Restoran Zhong He)2 min
- Kafana (Gradska kafana)5 min
- Autobuska stanica (Spomenik)6 min
- Banka (Raiffeisen Bank)4 min
- Pošta (Pošta 37000 (šalter))4 min
Kontakt oglašivača
Krediti OTP banke
Saznaj više
Prikazana rata odnosi se na maksimalni period otplate. Kalkulator je informativnog karaktera.
* Nakon isteka 5 godina, prelazi se na varijabilnu kamatnu stopu


