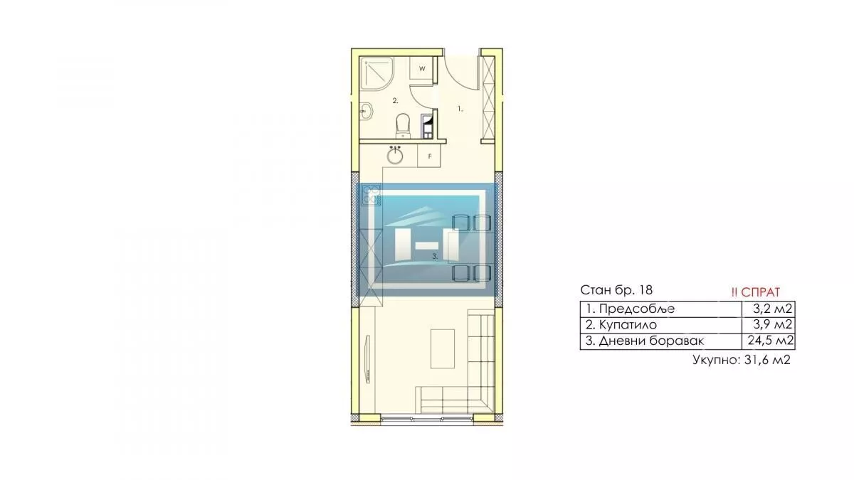
Garsonjera na prodaju, Gradske lokacije, 42.660€, 31m²


42.660 €
1.376 € / m2
- Stan u zgradi
- Grejanje na struju
- Novo
- Prostorije: terasa
- Opremljenost: Prazno - kanalizacija
- Oglas oglašava agencija pod reg. brojem 22
- 1 lift
- Kanalizacija
- Godina izgradnje: 2026.
Opis oglasa
Započeta je izgradnja nove stambene zgrade koja objedinjuje moderan dizajn, funkcionalnost i udobnost savremenog života.
U ponudi su stanovi različitih struktura i kvadratura – od 31,6m² do 67,4m², idealni kako za mlade parove i pojedince, tako i za porodice koje žele mir, sigurnost i kvalitetan dom.
Cena: 1.350 €/m² sa PDV-om
Parking mesto uključeno u cenu!
Mogućnost kupovine garažnog mesta u podrumu zgrade!
KVALITET I SIGURNOST KOJI SE OSEĆAJU
Gradnja se izvodi po najvišim standardima:
• Termo blok + stiropor izolacija 10cm – odlična toplotna i zvučna zaštita
• Podno grejanje – keramika na podovima za savršen komfor
• Grejanje na gas za stanove preko 50m², kotao na struju za manje stanove
• Ugrađen vodomer i visoka energetska efikasnost
• Klima uređaj u svakom stanu
• Lift u zgradi
• PVC stolarija vrhunskog kvaliteta i alu roletne sa elektro podizačima
LOKACIJA KOJA NUDI MIR I BLIZINU SVEGA
Zgrada se nalazi u mirnom delu grada, savršenom za porodičan život, a ipak na samo 500 metara od centra.
Bolnica, škole, marketi, apoteke, pošta i svi bitni sadržaji nalaze se u neposrednoj blizini – sve što vam je potrebno, dostupno je pešice.
ZAŠTO OVAJ PROJEKAT?
✔ Pouzdan investitor sa iskustvom
✔ Izuzetna energetska efikasnost i niski troškovi održavanja
✔ Parking mesto obezbeđeno uz svaki stan, osim za garsonjere
✔ Mogućnost kupovine garaže
✔ Savršena kombinacija kvaliteta, lokacije i cene
✔ Odlična investicija – i za život i za izdavanje
Useljenje po završetku radova, a rezervacije su već u toku!
Ne čekajte – rezervišite svoj novi dom na vreme!
064... (prikaži broj telefona)
065... (prikaži broj telefona)
035... (prikaži broj telefona)
*Sačuvaj oglas uz belešku i primaj obaveštenja o njihovom pojeftinjenju ili pojavljivanju sličnih
Prikaz stana na mapi
Parkovi u blizini
- Park Đurđevo brdo22 min

Obeležja kulture u blizini
- Spomenik Jovanči Miciću8 min
- Crkva Svete Bogorodice38 min
- Spomenik Despotu Stefanu40 min

Škole/Fakulteti/Vrtići u blizini
- Osnovna škola (Osnovna škola Boško Đuričić)4 min
- Srednja škola (Privatna srednja škola Dositej Obradović)5 min
- Vrtić (Dečiji vrtić Pionir)10 min
- Fakultet (Univerzitet u Kragujevcu Fakultet pedagoških nauka u Jagodini)5 min

- Bolnica (Sanitas Klinik)7 min
- Klinika (Poliklinika CT05)9 min
- Teretana (Cafe bar & gym Mr. Hill)30 min
- Prodavnica (Aman market)6 min
- Restoran (Restoran Belički kej)7 min
- Kafana (Irish pub Jagodina)9 min
- Taksi stajalište (Maxi Taxi)32 min
- Banka (Raiffeisen Bank)11 min
- Pošta (Pošta Jagodina 2)8 min
Kontakt oglašivača

Stambeni krediti
- Period otplate od
96 -360 meseca
- NKS 4.50%
EKS 5.74%
Fiksna kamatna stopa
- Bez troškova obrade kredita
- Period otplate od
96 -360 meseca
- NKS 4.34%
Kombinovana kamatna stopa
- Bez troškova obrade kredita
- Odobrenje kredita do 48h
stranici kreditnih kalkulatora
Keš krediti
Period otplate
13 meseci
















