Dvosoban stan na prodaju, Gradske lokacije, 80.595€, 59m²




80.595 €
1.366 € / m2
Za ovaj oglas se neko interesovao. Pozovi ranije kako ne bi propustio priliku.
- Stan u zgradi
- Grejanje na gas
- Novo
- Prostorije: terasa
- Oglas oglašava agencija pod reg. brojem 2006
- 1 lift
- Godina izgradnje: 2026.
Opis oglasa
EKSKLUZIVNA NOVOGRADNJA – POVRAĆAJ PDV-a!
Tražite savršeno mesto za život ili sigurnu investiciju?
Predstavljamo vam modernu zgradu u izgradnji, na izuzetnoj lokaciji – blizu centra, a ipak uvučena od buke i gužve, idealna za mir, komfor i kvalitetan život.
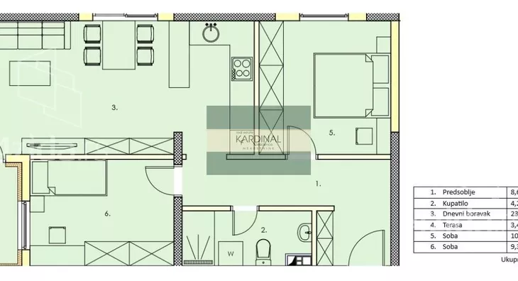
Strukturu stana čine:
-predsoblje
-kupatilo
-dnevni boravak
-terasa
-dve spavaće sobe
Ukupna površina stana je 59,7 m2.
Cena po kvadratnom metru iznosi 1.350 € sa PDV-om..
Trenutno dostupni stanovi nalaze se u prizemlju, na drugom, trećem i četvrtom spratu.
GLAVNE PREDNOSTI:
✔ Povraćaj PDV-a – ogromna ušteda za kupce!
✔ Sopstveni gasni kotao – maksimalna kontrola i niska cena grejanja
✔ Savremena zgrada od 5 spratova
✔ Parking ispred zgrade – uvek siguran i dostupan prostor
✔ Vrhuska lokacija – blizina centra, prodavnica, prevoza, a ipak zaklonjeno i mirno
✔ U izgradnji, mogućnost biranja strukture i rasporeda
✔ Rok završetka: 2027. godina
Investirajte pametno – izaberite dom u kojem se luksuz, funkcionalnost i praktičnost spajaju u idealnu celinu.
Broj stanova je ograničen – rezervišite svoj na vreme!
Zakažite razgledanje u terminu kada Vama najviše odgovara!
0
038... (prikaži broj telefona)
,
0
038... (prikaži broj telefona)
Dostupni smo Vam non stop!
24 / 7 / 365
i subotom i nedeljom i praznicima!
*Sačuvaj oglas uz belešku i primaj obaveštenja o njihovom pojeftinjenju ili pojavljivanju sličnih
Prikaz stana na mapi
Parkovi u blizini
- Park Đurđevo brdo24 min

Obeležja kulture u blizini
- Spomenik Jovanči Miciću7 min
- Crkva Svete Bogorodice36 min
- Spomenik Despotu Stefanu37 min

Škole/Fakulteti/Vrtići u blizini
- Osnovna škola (Osnovna škola 17. oktobar)6 min
- Srednja škola (Privatna srednja škola Dositej Obradović)8 min
- Vrtić (Dečiji vrtić Pionir)manje od 1 min
- Fakultet (Univerzitet u Kragujevcu Fakultet pedagoških nauka u Jagodini)7 min

- Bolnica (Opšta bolnica Jagodina)6 min
- Klinika (Poliklinika CT05)3 min
- Teretana (Cafe bar & gym Mr. Hill)26 min
- Prodavnica (Maxi Supermarket)4 min
- Restoran (Restoran Mali raj)4 min
- Kafana (Kafana Legenda)3 min
- Taksi stajalište (Maxi Taxi)33 min
- Banka (Raiffeisen Bank)3 min
- Pošta (Pošta Jagodina 1)7 min
Kontakt oglašivača
Za ovaj oglas se neko interesovao. Pozovi ranije kako ne bi propustio priliku.
Krediti OTP banke
Saznaj više
Prikazana rata odnosi se na maksimalni period otplate. Kalkulator je informativnog karaktera.
* Nakon isteka 5 godina, prelazi se na varijabilnu kamatnu stopu


