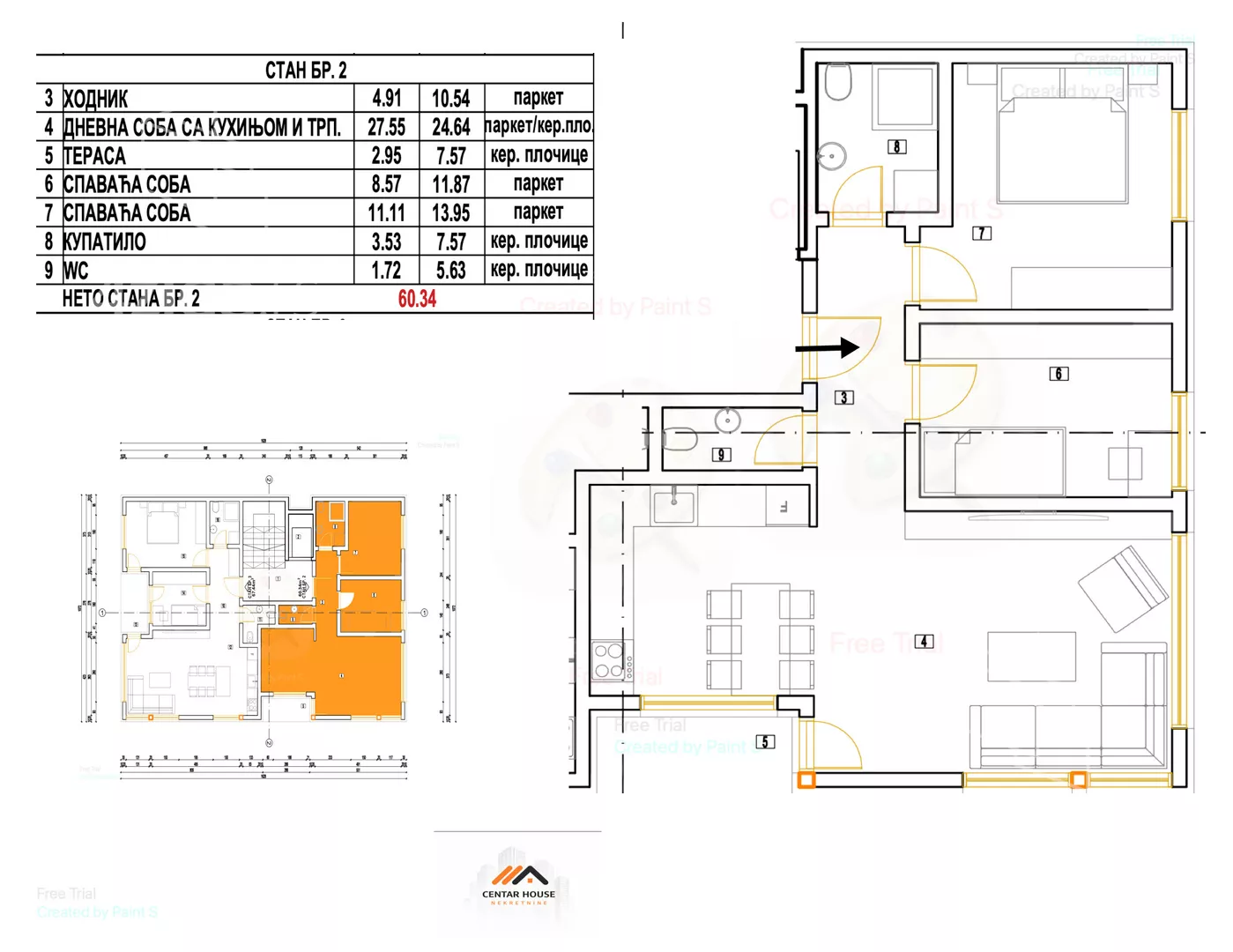
Dvoiposoban stan na prodaju, Gradska Bolnica, 159.000€, 60m²






159.000 €
2.650 € / m2
- Stan u zgradi
- Podno grejanje
- U izgradnji
- Prostorije: kupatila (2), terasa
- Opremljenost: Prazno - internet
- U procesu uknjižavanja
- Oglas oglašava agencija pod reg. brojem 2136
- 1 parking mesto, parking u dvorištu zgrade
- 1 lift
- Godina izgradnje: 2026.
- Zgrada poseduje: podrum
- Tip interneta: optički
Opis oglasa
Prodaja stana direktno od investitora. Stan je dvoiposobne strukture na prvom spratu u zgradi koja se gradi u blizini Medicinskog fakulteta.
Sastoji se iz dnevne sobe sa kuhinjom i trpezarijom, kupatilo, toalet, dve spavaće sobe i terasa. Prodaje se po ceni od 2400 eu plus PDV za keš kupce i 2500 plus PDV za kreditne kupce.
Zgradaje trenutno na 70 % izgrađenosti tako da stan može uvek da se pogleda i uživo.
Završetak radova se planira za 6 meseci.
Za sva dodatna pitanja slobodno pozovite.
*Sačuvaj oglas uz belešku i primaj obaveštenja o njihovom pojeftinjenju ili pojavljivanju sličnih
Prikaz stana na mapi
Parkovi u blizini
- Park Svetog Save10 min
- Park složnih komšija13 min
- Park Čair20 min

Obeležja kulture u blizini
- Zgrada Pasterovog zavoda5 min
- Zgrada Oficirskog doma9 min
- Ćele kula7 min

Škole/Fakulteti/Vrtići u blizini
- Osnovna škola (Osnovna škola Ćele kula)6 min
- Srednja škola (Medicinska škola Dr Milenko Hadžić)5 min
- Vrtić (Dečiji vrtić Plavi čuperak)5 min
- Fakultet (Univerzitet u Nišu Medicinski fakultet)4 min

- Bolnica (Opšta bolnica Sava Surgery)4 min
- Klinika (Poliklinika Naissa)4 min
- Teretana (Strongman fitness center)6 min
- Prodavnica (IDEA)3 min
- Restoran (Restoran Izvor)9 min
- Kafana (Kafana Dva jarana)16 min
- Taksi stajalište (Duga taksi)14 min
- Autobuska stanica (Vojna bolnica)5 min
- Banka (UniCredit Bank)5 min
- Pošta (Pošta Niš 8)6 min
Kontakt oglašivača

Krediti OTP banke
Saznaj više
Prikazana rata odnosi se na maksimalni period otplate. Kalkulator je informativnog karaktera.
* Nakon isteka 5 godina, prelazi se na varijabilnu kamatnu stopu

