Dvosoban stan na prodaju, Gospodara Vučića, 167.630€, 41m²








167.630 €
4.089 € / m2
- Stan u zgradi
- Centralno grejanje
- Novo
- Oglas oglašava agencija pod reg. brojem 1667
- Zgrada poseduje: lođa
Opis oglasa
ID 1170
Kontakt: Za više informacija ili dogovor oko razgledanja, pozovite 069... (prikaži broj telefona)
Bez agencijske provizije - direktna cena od investitora
Pravni nadzor - izrada i overa kupoprodajnog ugovora obezbeđena
Prodajemo stan u izgradnji renomiranog investitora, u neposrednoj blizini Gospodara Vučića.
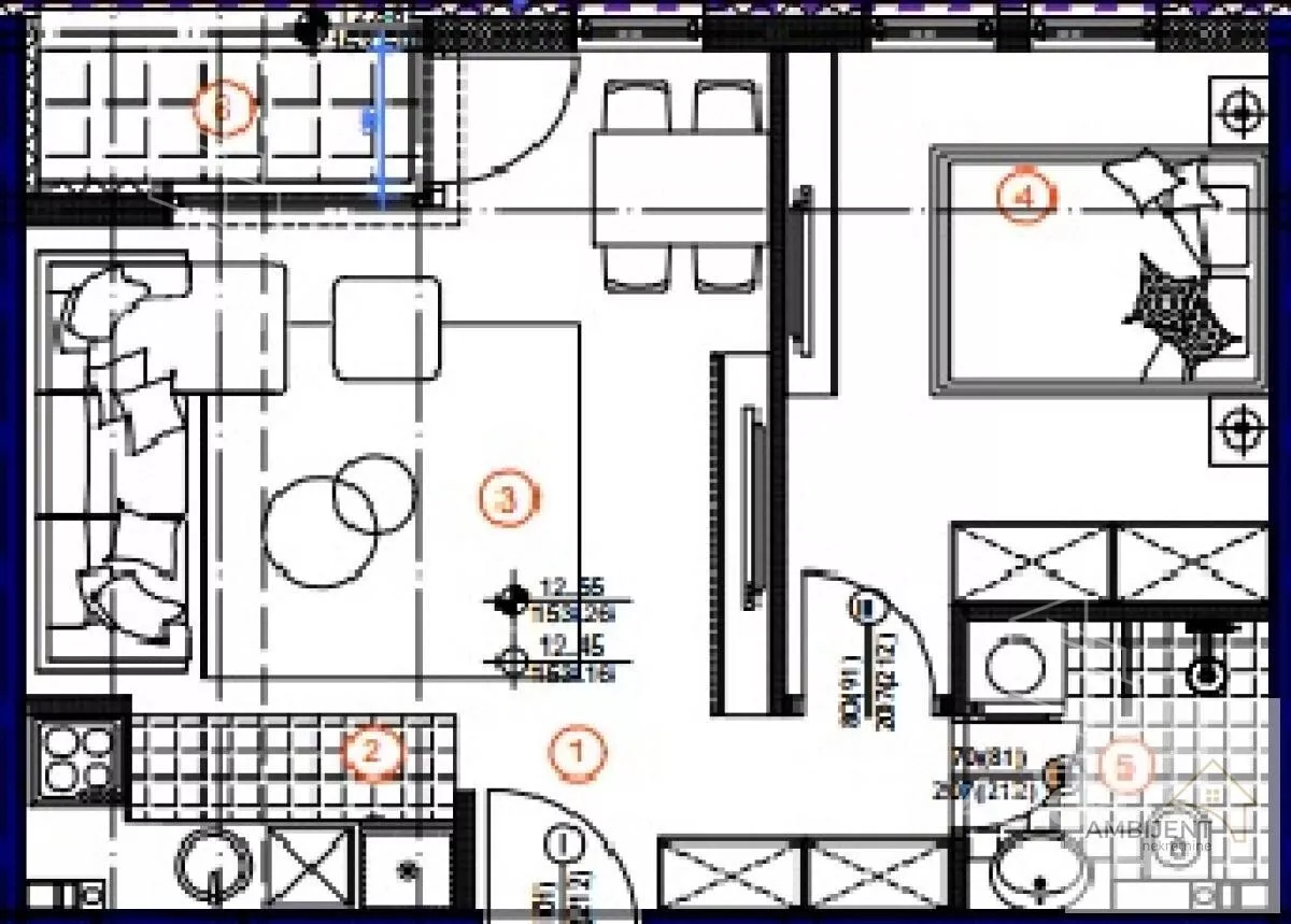
Stan se sastoji od: predsoblja, kuhinje, dnevnog boravka sa trpezarijom,sobe,kupatila i lođe.
Materijali i oprema su vrhunskog kvaliteta, poznatih proizvođača:
Prozori Profilati Italija
Roletne aluminijumske, termoizolacione, sa aluminijumskim vođicama i mogućnošću ugradnje komarnika
Elektropogon na taster
Boja aluminijuma RAL, drvo svetli hrast
Fasada sa kamenom vunom debljine 10 cm (Knauf Classic)
Keramika Marazzi
Zgrada se nalazi na izuzetnoj lokaciji, u blizini Osnovne škole Dositej Obradović, na svega 6 minuta vožnje od mega šoping centra.
Idealna nekretnina za udoban i komforan život u mirnom okruženju sa svim potrebnim sadržajima u blizini.
Cena je bez PDV-a pravo na provraćaj imaju kupci prvog stana.
Broj u registru posrednika: 1667
*Sačuvaj oglas uz belešku i primaj obaveštenja o njihovom pojeftinjenju ili pojavljivanju sličnih
Prikaz stana na mapi
Parkovi u blizini
- Park Urbani džep8 min
- Park Šumice13 min
- Čuburski park15 min

Obeležja kulture u blizini
- Osnovna škola Kralj Petar II Karađorđević4 min
- Vozarev krst7 min
- Kuća Flašar7 min

Škole/Fakulteti/Vrtići u blizini
- Osnovna škola (Specijalna osnovna škola Dušan Dugalić)3 min
- Srednja škola (Druga ekonomska škola)9 min
- Vrtić (Dečiji vrtić Azbukica)6 min
- Fakultet (Univerzitet u Beogradu Fakultet bezbednosti)11 min

- Bolnica (Internistička ordinacija Endopraxis)8 min
- Klinika (Poliklinika Sim Medical Team)8 min
- Teretana (Fitnes centar Next Step)2 min
- Prodavnica (Koka-Mar - prodaja jaja)2 min
- Restoran (Restoran Žuta greda)1 min
- Kafana (Pivnica JB)3 min
- Taksi stajalište (Auto taxi Ševarlić Dimitrije)3 min
- Autobuska stanica (Đerdapska)2 min
- Tramvajska stanica (Pijaca Zvezdara)19 min
- Trolejbuska stanica (Grčića Milenka)2 min
- Banka (Addiko Bank)6 min
- Pošta (Pošta Beograd 107)9 min
Kontakt oglašivača
Krediti OTP banke
Saznaj više
Prikazana rata odnosi se na maksimalni period otplate. Kalkulator je informativnog karaktera.
* Nakon isteka 5 godina, prelazi se na varijabilnu kamatnu stopu


