Dvosoban stan na prodaju, Slovenska, 158.000€, 53m²


































158.000 €
2.981 € / m2
- Stan u zgradi
- Grejanje putem mermernih radijatora
- Renovirano
- Oglas oglašava agencija pod reg. brojem 1984
- 1 garažno mesto
- Zgrada poseduje: podrum
Opis oglasa
U ponudi komforan, kompletno renoviran i opremljen stan u mirnom delu Zemuna, u blizini železničke stanice Zemun i auto puta.
Zgrada je okružena zelenilom i cvećem, ulaz je renoviran.
Stan poseduje i veliki zidani podrum površine 10m2.
U cenu stana ulazi i montažna garaža i parking mesto ispred garaže.
Na nekoliko minuta hoda su dva vrtića i osnovna škola "Gavrilo Princip".
Odlična saobraćajna povezanost (autobusi 18, 45, 78, 612).
Svaka preporuka!
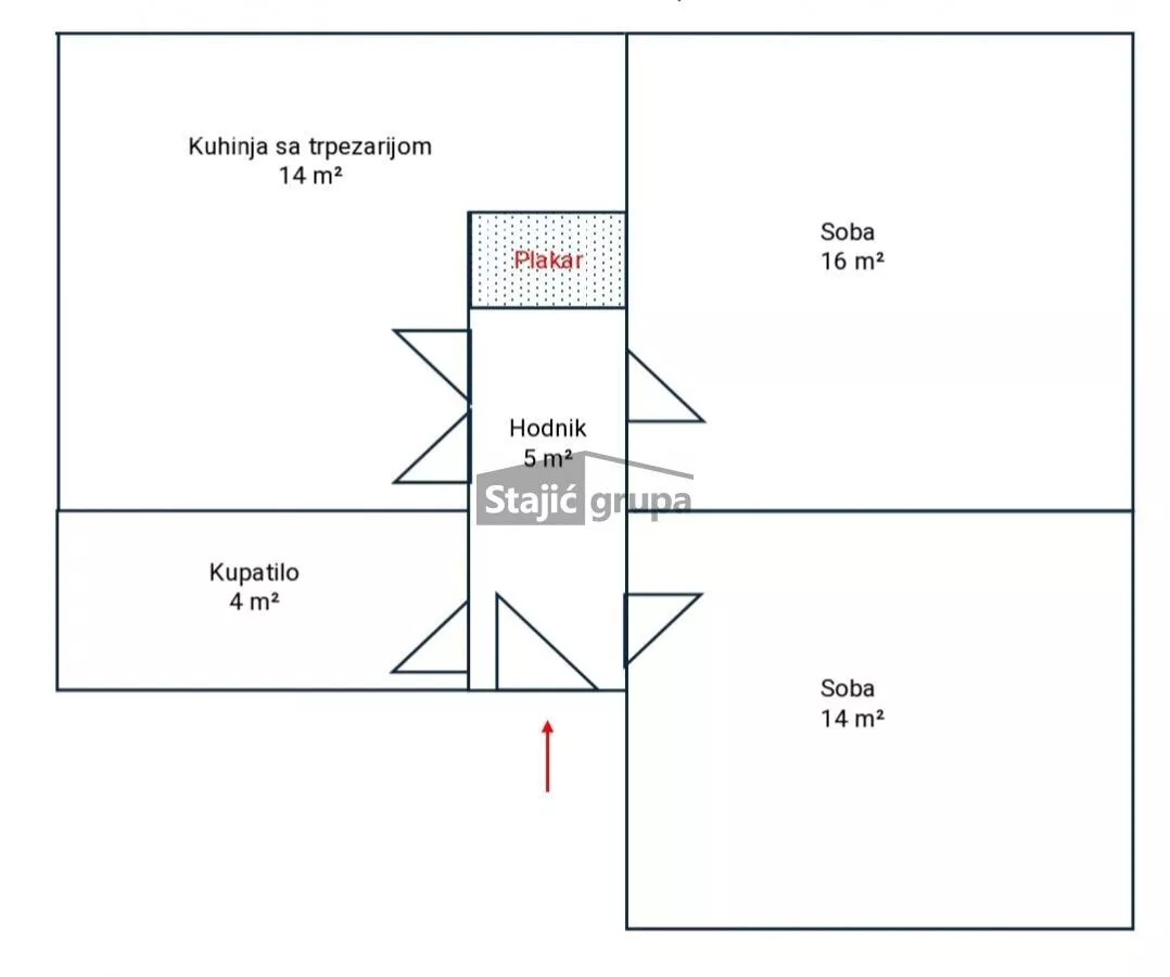
Prostorije: predsoblje, dnevna soba sa kuhinjom i trpezarijom, dve spavaće sobe, kupatilo, hodnik.
Agencijska provizija 2%.
*Sačuvaj oglas uz belešku i primaj obaveštenja o njihovom pojeftinjenju ili pojavljivanju sličnih
Prikaz stana na mapi
Parkovi u blizini
- Park Sava Kovačević29 min
- Dečje igralište30 min
- Dečje igralište36 min

Obeležja kulture u blizini
- Ičkova kuća13 min
- Livnica Pantelić15 min
- Spirtina kuća15 min

Škole/Fakulteti/Vrtići u blizini
- Osnovna škola (Osnovna škola Gavrilo Princip)6 min
- Srednja škola (Srednja politehnička škola Politehnika)7 min
- Vrtić (Dečiji vrtić Zvrk)5 min
- Fakultet (Visoka zdravstvena škola strukovnih studija u Beogradu)11 min

- Bolnica (Hirurška ordinacija Renova)8 min
- Klinika (Poliklinika Dr Sci. Hadžagić)11 min
- Teretana (Teretana Muscle factory gym)5 min
- Prodavnica (Aman market)4 min
- Restoran (Restoran Sloga)4 min
- Kafana (Kafana Biblioteka kod Majora)27 min
- Taksi stajalište (Taxi stanica)16 min
- Autobuska stanica (OŠ „Gavrilo Princip”)5 min
- Banka (Alta Banka Altina)6 min
- Pošta (Pošta Beograd 83)4 min
Kontakt oglašivača
Stambeni krediti

- Period otplate od
96 -360 meseca
- NKS 4.75%
EKS 5.74%
Fiksna kamatna stopa
- Bez troškova obrade kredita
stranici kreditnih kalkulatora
Keš krediti
Period otplate
13 meseci
