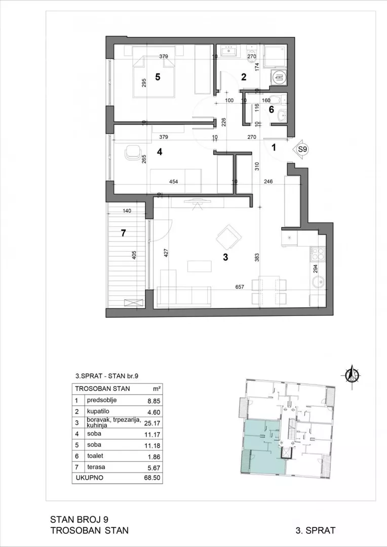
Trosoban stan na prodaju, Rade Končara, 191.800€, 68m²
Beograd, Zemun opština, Gornji Grad
Prikaži mapuŠifra oglasa: 4zida-1051Oglas ažuriran: 15.04.2026.




191.800 €
2.821 € / m2
68 m²
3 sobe
1/4 sprata
- Etažno grejanje
- Novo
- Prostorije: kupatila (2)
- Opremljenost: Prazno - interfon, klima
- Oglas oglašava agencija pod reg. brojem 2123
- 1 lift
- Godina izgradnje: 2026.
- 1 telefonska linija
Opis oglasa
Odlična novogradnja od pouzdanog investitora.
Rok zavrsetka Oktobar 2026 godine.
Na cenu se dodaje 10% pdv-a.
Kupci prvog stana imaju povrat pdv-a.
Pogodan za kreditne kupce.
Cena garažnog mesta je 18000 sa pdv.
Cena parking mesta 12 000 sa pdv.
Za razgledanje pozovite 062... (prikaži broj telefona)
Agencijska provizija 2%
*Sačuvaj oglas uz belešku i primaj obaveštenja o njihovom pojeftinjenju ili pojavljivanju sličnih
Prikaz stana na mapi
Parkovi u blizini
- Park Sava Kovačević11 min
- Dečje igralište17 min
- Park Jelovac18 min

Obeležja kulture u blizini
- Ičkova kuća9 min
- Livnica Pantelić11 min
- Kula Sibinjanin Janka Gardoš11 min

Škole/Fakulteti/Vrtići u blizini
- Osnovna škola (Osnovna škola Petar Kočić)7 min
- Srednja škola (Specijalna srednja škola Veljko Ramadanović)12 min
- Vrtić (Dečiji vrtić Povratak prirodi)10 min
- Fakultet (Kriminalističko policijski univerzitet)4 min

Zdravlje
- Bolnica (Hirurška ordinacija Renova)7 min
- Klinika (Poliklinika O2)5 min
- Teretana (Fitness club Pump It Up)4 min
Hrana i piće
- Prodavnica (Market Mona)2 min
- Restoran (Restoran Dubočica)3 min
- Kafana (Kafana Biblioteka kod Majora)8 min
Prevoz
- Taksi stajalište (Taxi stanica)2 min
- Autobuska stanica (Rada Končara /Dom Zdravlja/)2 min
Ostale ustanove
- Banka (Eurobank Direktna)9 min
- Pošta (Pošta Beograd 100)9 min
Kontakt oglašivača
▾Reklama▾
Krediti OTP banke
Bez troškova obrade kredita
NKS 4.50% - EKS 5.74%
Period otplate 96 -360 meseca
Saznaj više
Prikazana rata odnosi se na maksimalni period otplate. Kalkulator je informativnog karaktera.
* Nakon isteka 5 godina, prelazi se na varijabilnu kamatnu stopu
Osiguranje domaćinstva online
Osiguraj svoje domaćinstvo u slučaju požara...


