Dvosoban stan na prodaju, Novogradska, 152.000€, 56m²


























152.000 €
2.714 € / m2
- Centralno grejanje
- Prostorije: kupatilo, terasa
- Oglas oglašava agencija pod reg. brojem 1347
- Zgrada poseduje: podrum
- 1 telefonska linija
Opis oglasa
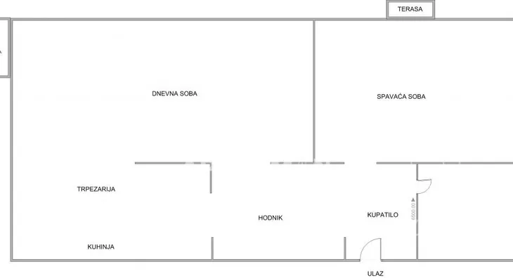
Zemun, Gornji grad bliže Prvomajskoj, funkcionalan dvosoban stan koji se sastoji od hodnika, kupatila, kuhinje sa trpezarijom, dnevne sobe sa izlaskom na terasu na kojoj je ostava i spavaće sobe sa izlaskom na terasu. Grejna 49m2. Stanu pripada podrum, zgrada je bez lifta.
Kontakt telefon 060... (prikaži broj telefona) . Hvala Vam na pregledu oglasa. Broj agencije u Registru posrednika 1347. Mapa je informativnog karaktera, ne prikazuje tačnu lokaciju nekretnine.
Agencijska provizija 2%
*Sačuvaj oglas uz belešku i primaj obaveštenja o njihovom pojeftinjenju ili pojavljivanju sličnih
Prikaz stana na mapi
Parkovi u blizini
- Dečje igralište10 min
- Park Kalvarija10 min
- Park Sava Kovačević12 min

Obeležja kulture u blizini
- Ičkova kuća4 min
- Livnica Pantelić5 min
- Kuća porodice Karamata6 min

Škole/Fakulteti/Vrtići u blizini
- Osnovna škola (Privatna osnovna škola Kosta Vujić)9 min
- Srednja škola (Pravno birotehnička škola Dimitrije Davidović)5 min
- Vrtić (Dečiji vrtić Palčić)5 min
- Fakultet (Visoka zdravstveno-sanitarna škola strukovnih studija VISAN)4 min

- Bolnica (Kliničko bolnički centar Zemun)5 min
- Klinika (Poliklinika Intermed plus)11 min
- Teretana (Akademija Snage)2 min
- Prodavnica (Aman market)2 min
- Restoran (Restoran Slow food ABC)5 min
- Kafana (Gustav Pab)9 min
- Taksi stajalište (Taxi stanica)11 min
- Autobuska stanica (Novogradska)3 min
- Banka (Banca Intesa)7 min
- Pošta (Pošta Beograd 81)4 min
Kontakt oglašivača
Krediti OTP banke
Saznaj više
Prikazana rata odnosi se na maksimalni period otplate. Kalkulator je informativnog karaktera.
* Nakon isteka 5 godina, prelazi se na varijabilnu kamatnu stopu


