Dvoiposoban stan na prodaju, Gornji Grad, 148.000€, 53m²


























148.000 €
2.792 € / m2
- Etažno grejanje
- Renovirano
- Prostorije: kupatilo
- Uknjiženo
- Oglas oglašava agencija pod reg. brojem 1288
- 1 garažno mesto
- 1 parking mesto
- Zgrada poseduje: podrum
- 1 telefonska linija
Opis oglasa
Renoviran, uknjižen stan u mirnom delu Zemuna
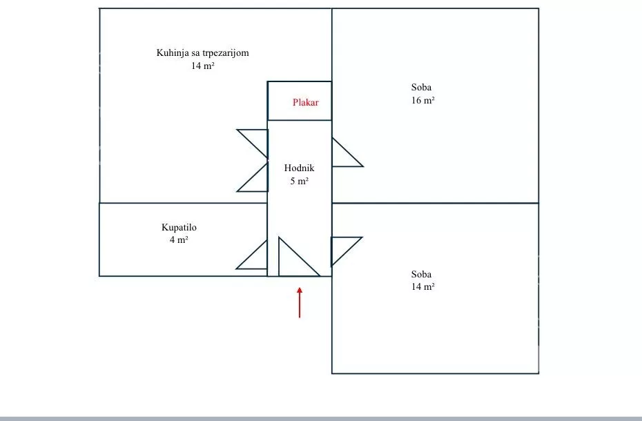
U mirnom delu Zemuna, okružen zelenilom i bez gradske gužve, prodaje se uknjižen stan od 53 m², koji je u potpunosti renoviran i odmah uselјiv. Zgrada je uredna i redovno održavana, a sam stan se prodaje sa nameštajem rađenim po meri, uključujući kuhinju sa trpezarijom.
Stan se sastoji od dve spavaće sobe, kupatila i kuhinje sa trpezarijom, a uz njega dolaze i podrum, garaža i parking mesto.
Lokacija je izuzetno praktična – železnička stanica je udaljena svega 2 minuta hoda, a u blizini se nalaze škola, vrtić i supermarketi, što ovaj stan čini idealnim za porodičan život.
Uknjižen 1/1 – moguća kupovina putem kredita.
Agencijska nadoknada iznosi 2%.
.
*Sačuvaj oglas uz belešku i primaj obaveštenja o njihovom pojeftinjenju ili pojavljivanju sličnih
Prikaz stana na mapi
Parkovi u blizini
- Dečje igralište23 min
- Park Sava Kovačević31 min
- Dečje igralište31 min

Obeležja kulture u blizini
- Ičkova kuća16 min
- Livnica Pantelić17 min
- Spirtina kuća17 min

Škole/Fakulteti/Vrtići u blizini
- Osnovna škola (Osnovna škola Gavrilo Princip)5 min
- Srednja škola (Srednja politehnička škola Politehnika)6 min
- Vrtić (Dečiji vrtić Radosnica)5 min
- Fakultet (Visoka zdravstvena škola strukovnih studija u Beogradu)9 min

- Bolnica (Hirurška ordinacija Renova)8 min
- Klinika (Poliklinika Dr Sci. Hadžagić)10 min
- Teretana (Fitness centar Vulkan Gym)6 min
- Prodavnica (Market Izvor)4 min
- Restoran (Restoran Sloga)10 min
- Kafana (Kafana Biblioteka kod Majora)22 min
- Taksi stajalište (Taxi stanica)8 min
- Autobuska stanica (Zemun (Novi Grad))4 min
- Banka (Alta Banka Altina)4 min
- Pošta (Pošta Beograd 83)4 min
Kontakt oglašivača
Krediti OTP banke
Saznaj više
Prikazana rata odnosi se na maksimalni period otplate. Kalkulator je informativnog karaktera.
* Nakon isteka 5 godina, prelazi se na varijabilnu kamatnu stopu






















