Troiposoban stan na prodaju, Futog, 120.000€, 65m²






120.000 €
1.846 € / m2
- Grejanje na gas
- Novo
- Prostorije: terasa
- Opremljenost: Prazno - internet
- Oglas oglašava agencija pod reg. brojem 1573
- Kablovska
- 1 telefonska linija
Opis oglasa
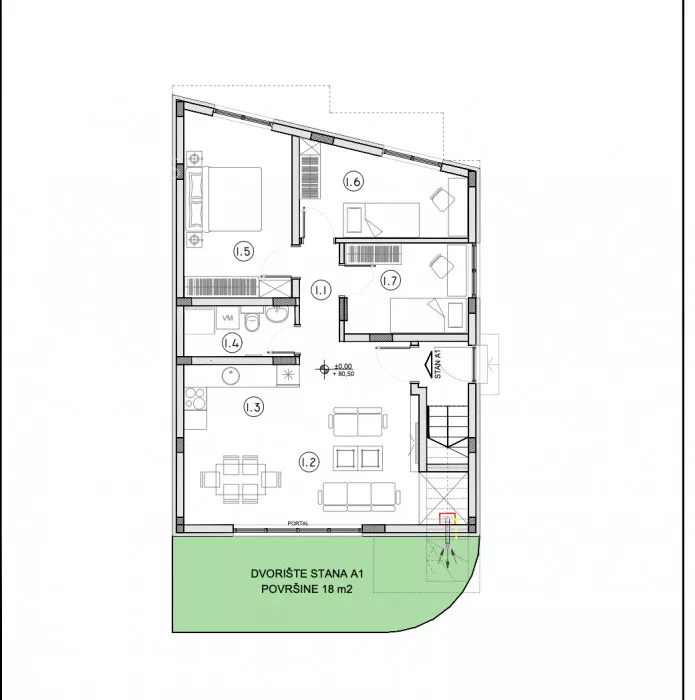
FUTOG, 65m2, TROIPOSOBAN plus 18m2 dvorišta OPREMA: Svi stanovi će imati radijatorsko grejanje na gas (svaki stan poseduje zaseban kotao); Fasadna izolacija objekta će biti debljine 10cm preko klima blokova; Pregradni zidovi objekta prema stepeništu će biti izvedeni od Termo blokova debljine 20 cm; Svi stanovi će biti opremljeni sigurnosnim ulaznim vratima domaće proizvodnje modernog dizajna; Unutrašnja sobna vrata će biti izvedena od belog medijapana domaće proizvodnje; Spoljna stolarija će biti izvedena kao šestokomorna PVC stolarija zastakljena niskoemisionim IZO-staklo paketima. Spoljna boja stolarije će biti antracit siva a unutrašnja bela. Stanovi će posedovati velike višekrilne portale; Podovi dnevne sobe i spavaćih soba će biti obloženi hrastovim parketom I klase tipa Tarket; Ulazni hodnici, stepeništa, kupatila i kuhinje će biti obloženi keramičkim pločicama I klase; U okviru toaleta će biti ugrađeni ugradni "Geberit" vodokotlići i RIMLESS konzolne WC šolje sa sporospuštajućim daskama; Sve sanitarije u objektu će biti izvedene I klase renomiranih proizvođača; U kupatilima će biti ugrađene standardne tuš kabine i step-in tuš kabine; Na terasama i prilaznim stepeništima ispred ulaza u objekte će biti ugrađena protivklizna keramika; U okviru svakog stana će biti izvedena priprema za ugradnju klima uređaja; CENA: Mogućnost kupovine parking mesta. 80% završena zgrada, useljiva 04.2026. Cena 120.000eura sa PDVom + 3% posrednička naknada. Za više informacija, možete nas kontaktirati na 063... (prikaži broj telefona) ili 021... (prikaži broj telefona) , agencija za nekretnine "Šćepanović i saradnici", upisana u Registar posrednika pod brojem 1573, Bulevar oslobođenja 78, Novi Sad. ID oglasa: 44084.
*Sačuvaj oglas uz belešku i primaj obaveštenja o njihovom pojeftinjenju ili pojavljivanju sličnih
Prikaz stana na mapi
Obeležja kulture u blizini
- Dvorac Hadik-Kotek7 min
- Mađarska reformatorska crkva sa zgradom parohijskog doma21 min
- Dvorac Eđšeg31 min

Škole/Fakulteti/Vrtići u blizini
- Osnovna škola (Osnovna škola Miroslav Antić)6 min
- Srednja škola (Poljoprivredna škola Futog)7 min
- Vrtić (Dečiji vrtić Biberče)6 min
- Fakultet (Protestantski teološki fakultet)24 min

- Bolnica (Opšta bolnica New Hospital)23 min
- Klinika (Poliklinika Consilium)23 min
- Teretana (Fitness studio Top Form)20 min
- Prodavnica (Expeto market)6 min
- Restoran (Restoran Kurjak)15 min
- Autobuska stanica (Futog - Rade Kondića - Industrijska)6 min
- Banka (Erste Bank)5 min
- Pošta (Pošta Futog 21408)5 min
Kontakt oglašivača
Krediti OTP banke
Saznaj više
Prikazana rata odnosi se na maksimalni period otplate. Kalkulator je informativnog karaktera.
* Nakon isteka 5 godina, prelazi se na varijabilnu kamatnu stopu


