Dvosoban stan na prodaju, Farmaceutski fakultet, 138.000€, 45m²
























138.000 €
3.067 € / m2
- Stan u zgradi
- Etažno grejanje
- Novo
- Prostorije: kupatilo, terasa
- Uknjiženo
- Oglas oglašava agencija pod reg. brojem 1871
- Parking u dvorištu zgrade
- Zgrada poseduje: lođa
Opis oglasa
Firma KEY REAL ESTATE je u prilici da Vam ponudi izuzetan stan u novogradnji na Voždovcu – u blizini Farmaceutskog fakulteta!
Stan se nalazi u modernoj zgradi završenoj 2024. godine, u mirnom i prijatnom okruženju, na odličnoj lokaciji koja pruža idealan balans između urbanog života i komfora.
Stan je svetao, funkcionalan i odlično organizovan, sa veoma dobrim rasporedom prostorija koji omogućava maksimalnu iskorišćenost prostora i prijatan svakodnevni život.
U neposrednoj blizini zgrade nalaze se fakulteti, marketi, apoteke, restorani, kafići, prodavnice, kao i autobuska stajališta, što ovu lokaciju čini izuzetno praktičnom za život.
Kvalitet gradnje i oprema:
Tokom izgradnje korišćeni su materijali visokog standarda – aluminijumska stolarija, tarkett parket, granitne pločice i kvalitetna završna obrada.
Stan poseduje potpuno novu kuhinju izrađenu od medijapana, dok se u spavaćoj sobi nalazi ugrađeni plakar.
Grejanje je etažno preko sopstvenog kotla, što omogućava potpunu kontrolu i niske mesečne režijske troškove.
U stanu je ugrađen i klima uređaj.
Raspored prostorija:
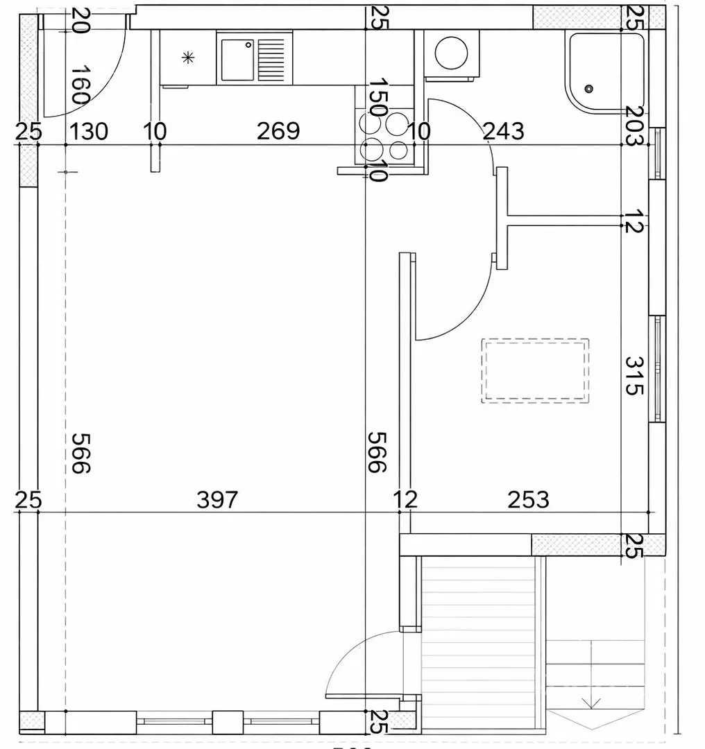
Stan poseduje prostranu dnevnu sobu spojenu sa trpezarijom i kuhinjom, izdvojenu spavaću sobu, kupatilo i funkcionalan ulazni deo. Stan je veoma svetao i prijatan za boravak.
Dodatne pogodnosti:
U cenu stana ulazi parking mesto u ograđenom dvorištu zgrade, kao i kompletno nova kuhinja i ugradni plakar.
Zgrada je uredna, kvalitetno građena i nalazi se u tihom delu kraja, dok su sve važne saobraćajnice i sadržaji na dohvat ruke.
Stan je uknjižen, sa potpuno urednom dokumentacijom.
PRODAJE SE KOMPLETNO NAMEŠTEN I ODMAH JE USELJIV!
Provizija na kupovinu ovog stana je u skladu sa opštim uslovima poslovanja oglašivača i iznosi 2% od ugovorene cene.
Br. u registru psorednika 1871
Prilikom gledanja bilo koje nepokretnosti iz naše ponude obavezno potpisivanje zapisnika o gledanju iste.
*Sačuvaj oglas uz belešku i primaj obaveštenja o njihovom pojeftinjenju ili pojavljivanju sličnih
Prikaz stana na mapi
Parkovi u blizini
- Banjička šuma45 min
- Miljakovačka šuma48 min
- Park Jove Ilića50 min

Obeležja kulture u blizini
- Stara mehana u Kumodražu6 min
- Spomen park Jajinci7 min
- Rodna kuća vojvode Stepe Stepanovića9 min

Škole/Fakulteti/Vrtići u blizini
- Osnovna škola (Osnovna škola Jajinci)5 min
- Srednja škola (Srednja škola Vasa Stajić)13 min
- Vrtić (Predškolska ustanova Cvetić Srećko)4 min
- Fakultet (Univerzitet u Beogradu Farmaceutski fakultet)6 min

- Bolnica (Centar za imunološka istraživanja Branislav Janković)5 min
- Klinika (Poliklinika Nera)11 min
- Teretana (Fitness studio Fit On)7 min
- Prodavnica (TSV Diskont)5 min
- Restoran (Restoran Oaza)8 min
- Kafana (Kafana Tores)16 min
- Taksi stajalište (Taxi stanica)15 min
- Autobuska stanica (Jajinci /Dom Zdravlja/)7 min
- Tramvajska stanica (Saobraćajni Fakultet)39 min
- Trolejbuska stanica (Banjica 2)22 min
- Banka (Erste Bank)10 min
- Pošta (Pošta Beograd 89)9 min
Kontakt oglašivača
Krediti OTP banke
Saznaj više
Prikazana rata odnosi se na maksimalni period otplate. Kalkulator je informativnog karaktera.
* Nakon isteka 5 godina, prelazi se na varijabilnu kamatnu stopu


