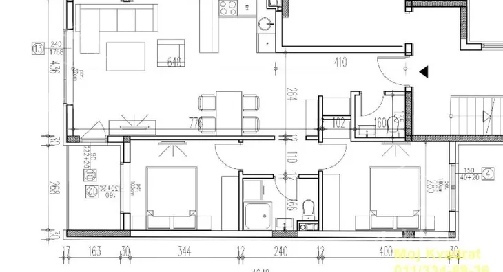
Trosoban stan na prodaju, Ljube Nedića, 183.215€, 68m²






























183.215 €
2.694 € / m2
- Stan u zgradi
- Novo
- Prostorije: terasa
- Opremljenost: Prazno - interfon, kanalizacija
- Oglas oglašava agencija pod reg. brojem 167
- 1 garažno mesto
- 1 lift
- Kanalizacija
- Godina izgradnje: 2025.
- 1 telefonska linija
Opis oglasa
Voždovac, Dušanovac - Ljube Nedića
3.0, 68m2 (terasa), 4/7, toplotne pumpe, lift, telefon, interfon, garaža
Ponuda stanova različitih struktura u zgradi u izgradnji, savremenog stambeno-poslovnog objekta.
Zgrada se gradi sa savremenim i modernim materijalima, obezbeđujući vrhunski kvalitet stanova. Lokacija je pogodna za sve koji žele brz pristup auto-putu i ostalim delovima grada.
Akcenat je stavljen na energetski efikasna rešenja i udobnost stanovanja.
Prizemlje zgrade je rezervisano za komercijalni prostor, dok se na višim spratovima nalaze funkcionalni stanovi. Ova kombinacija može biti atraktivna za one koji žele da spoje stanovanje sa blizinom poslovnog sadržaja.
Mogućnost kupovine garažnog mesta na tri podzemna nivoa, pruža dodatnu pogodnost za sve buduće stanare.
Cena je prikazana bez uračunatog PDV-a. Postoji mogućnost povrata PDV-a za kupce prvog stana.
Isti tip stana imamo i na drugim spratovima.
Sukcesivan način plaćanja:
- 40% sada;
- 40% na ukrovljenju;
- 20% na 80% izgrađenosti objekta.
Rok za završetak radova je april 2026. godine.
Građevinska dozvola.
Agencijska provizija 2%.
Agent Snežana Krstić: 065... (prikaži broj telefona) (licenca br. 4106)
*Sačuvaj oglas uz belešku i primaj obaveštenja o njihovom pojeftinjenju ili pojavljivanju sličnih
Prikaz stana na mapi
Parkovi u blizini
- Bajronov park15 min
- Park Šumice16 min
- Park mira Jelena Šantić19 min

Obeležja kulture u blizini
- Kuća Flašar7 min
- Spomenik oslobodilaca Beograda 1806. godine7 min
- Spomenik Internacionalnim brigadama8 min

Škole/Fakulteti/Vrtići u blizini
- Osnovna škola (Osnovna škola Vojvoda Mišić)4 min
- Srednja škola (Geološka i hidrometeorološka škola Milutin Milanković)5 min
- Vrtić (Dečiji vrtić Mila Jevtović)4 min
- Fakultet (Univerzitet Singidunum)6 min

- Bolnica (Klinika za fizikalnu medicinu Saint James)4 min
- Klinika (Poliklinika Antamedica)6 min
- Teretana (Klub za dizanje tegova i aerobik Pit Gym)9 min
- Prodavnica (Minimarket Kole)3 min
- Restoran (Restoran Malo korzo)4 min
- Kafana (Kafanica Kod Slobe)5 min
- Taksi stajalište (Taxi stanica)7 min
- Autobuska stanica (Prešernova)3 min
- Tramvajska stanica (Bože Jankovića)9 min
- Trolejbuska stanica (Kruševačka)16 min
- Banka (Raiffeisen Bank)4 min
- Pošta (Pošta Beograd 23)4 min
Kontakt oglašivača
Krediti OTP banke
Saznaj više
Prikazana rata odnosi se na maksimalni period otplate. Kalkulator je informativnog karaktera.
* Nakon isteka 5 godina, prelazi se na varijabilnu kamatnu stopu






















