Dvoiposoban stan na prodaju, Dušanovac, 180.460€, 64m²




















180.460 €
2.820 € / m2
- Grejanje na gas
- Orijentacija ka: severoistok
- Oglas oglašava agencija pod reg. brojem 331
- Godina izgradnje: 2026.
Opis oglasa
Stambeni objekat u izgradnji u Vojvode Skopljanca kod Dušanovačke pijace. Zgrada sa malim brojem stanova.
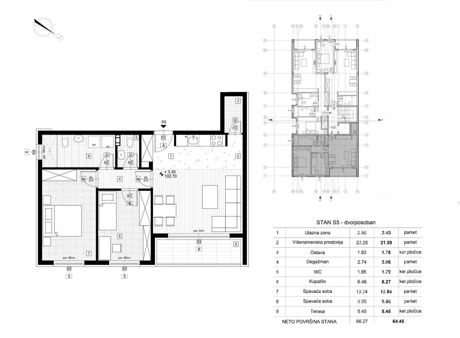
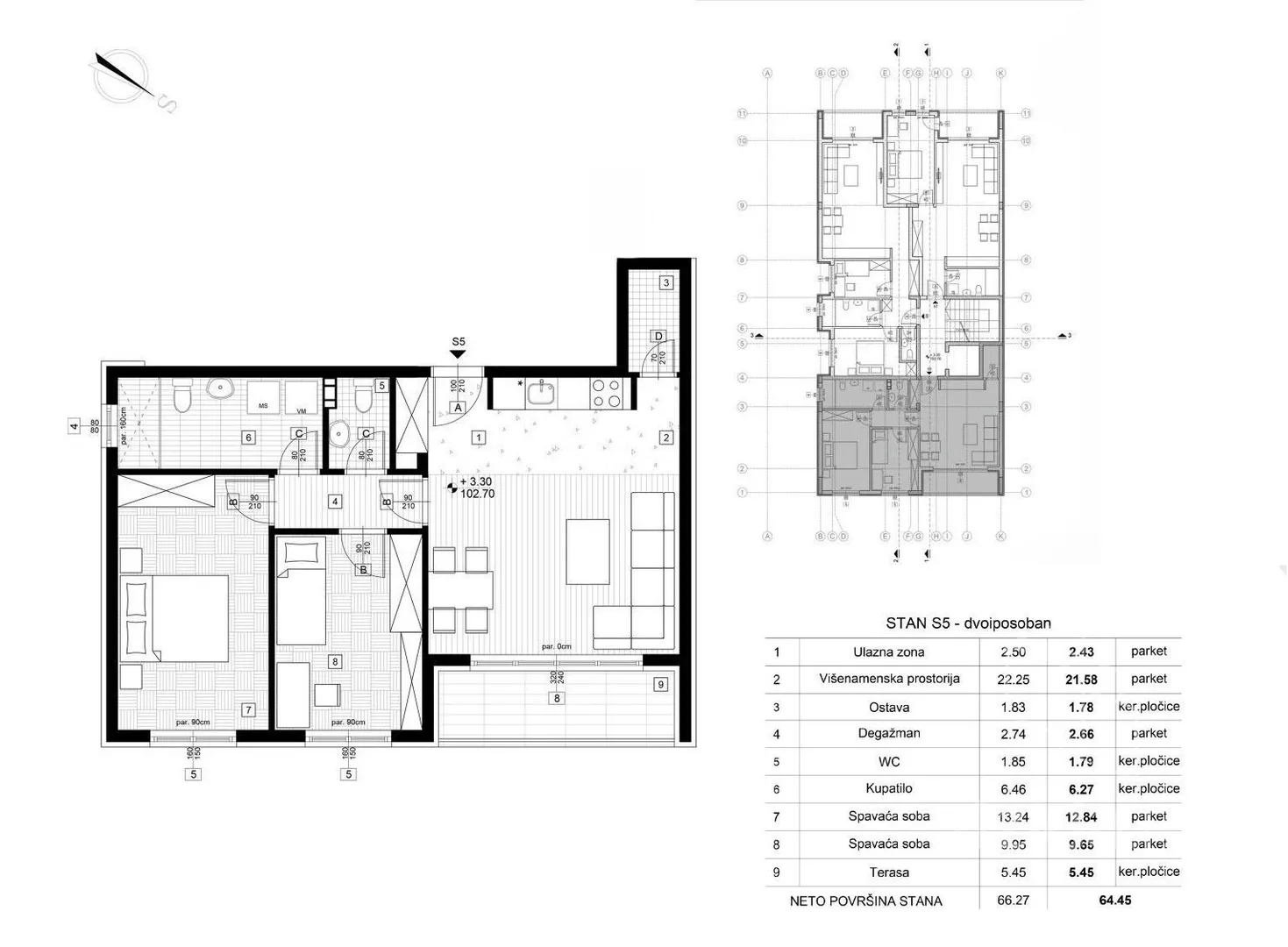
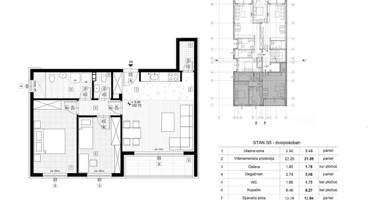
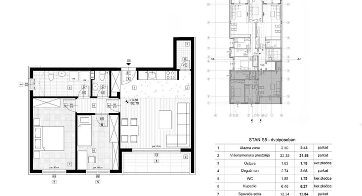
Stan od 64,45 m2 u potkrovlju bez značajnijih kosina. Dnevni boravak sa trpezarijom povezan sa kuhinjom i terasom. Dve spavaće sobe, kupatilo i toalet. Iz stana se pruža pogled ka Hramu Sv. Save.
Rok završetka septembar 2026.
Prodajna cena je prikazana bez PDV-a. Mogućnost kupovine parking mesta.
*Sačuvaj oglas uz belešku i primaj obaveštenja o njihovom pojeftinjenju ili pojavljivanju sličnih
Prikaz stana na mapi
Parkovi u blizini
- Bajronov park13 min
- Park Šumice18 min
- Park Jove Ilića22 min

Obeležja kulture u blizini
- Spomenik Franše Depereu5 min
- Kuća Flašar7 min
- Spomenik oslobodilaca Beograda 1806. godine8 min

Škole/Fakulteti/Vrtići u blizini
- Osnovna škola (Osnovna škola Veselin Masleša)5 min
- Srednja škola (Geološka i hidrometeorološka škola Milutin Milanković)5 min
- Vrtić (Dečiji vrtić Mila Jevtović)4 min
- Fakultet (Fakultet za projektni i inovacioni menadžment)6 min

- Bolnica (Klinika za fizikalnu medicinu Saint James)6 min
- Klinika (Poliklinika Antamedica)6 min
- Teretana (Klub za dizanje tegova i aerobik Pit Gym)7 min
- Prodavnica (Market Jelena)3 min
- Restoran (Restoran Malo korzo)5 min
- Kafana (Robin Hood Pub)7 min
- Taksi stajalište (Taxi stanica)11 min
- Autobuska stanica (Ljubićka (Univerzitet Singidunum))3 min
- Tramvajska stanica (Bože Jankovića)8 min
- Trolejbuska stanica (Kruševačka)20 min
- Banka (Banca Intesa)4 min
- Pošta (Pošta Beograd 23)5 min
Kontakt oglašivača

Krediti OTP banke
Saznaj više
Prikazana rata odnosi se na maksimalni period otplate. Kalkulator je informativnog karaktera.
* Nakon isteka 5 godina, prelazi se na varijabilnu kamatnu stopu

